660套住宅,龙岗新盘紫和嘉园66-98平户型曝光,月底入市?
扫描到手机,新闻随时看
扫一扫,用手机看文章
更加方便分享给朋友
近日,【家在】网友爆光了龙岗紫和嘉园户型图,据了解项目已封顶,展厅开放中。
项目将推出660套住宅房源,户型为66㎡、89㎡、94㎡、98㎡的2房-4房户型,有消息称5月下旬将入市 。
以下为此次将推出66-98㎡2房-4房户型图
C户型 66㎡两房两厅一卫
A户型 89㎡三房两厅两卫
D户型 94㎡三房两厅二卫
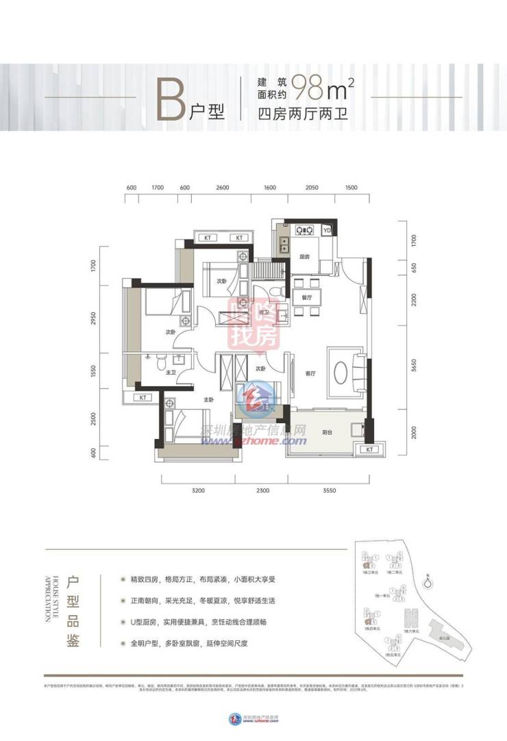
B户型 98㎡四房两厅两卫
附平面落位图:
紫和嘉园位于龙岗区盐龙大道和龙城大道交汇处北侧。
项目总占地约2.5万㎡,总建面约11万㎡,容积率3.2,总户数932户,停车位700个,共2栋,其中1栋共六个单元,为28-30层高层建筑,由社区底商和住宅组成,一至五单元是可售商品住宅(共660套),为建面约66-98㎡2-4房,2栋为12班幼儿园。
地铁方面:近地铁16号线盛平站,可快速通达大运中心和坪山中心;【21号线龙城枢纽】距地铁21号线龙城枢纽站(规划中)直线距离约2.2km(百度地图直线测距));
商业方面:项目自带商业,周边3公里范围内有万科里,世茂百货,万科广场等商业体。
休闲娱乐: 项目周边三馆一城(公共艺术与城市规划馆、科技馆、青少年宫、深圳书城龙岗城)、红花岭低碳环境生态园、让您的闲暇生活变得丰富有趣。
来源:深圳房地产信息网
声明:本文由入驻焦点开放平台的作者撰写,除焦点官方账号外,观点仅代表作者本人,不代表焦点立场。


