136批客户选308套房!远洋天著准现房7月30日选房
扫描到手机,新闻随时看
扫一扫,用手机看文章
更加方便分享给朋友
刚刚,远洋天著公布了入围诚意名单,共有136批客户入市,项目可售套数308套,入围比例1:0.44。
远洋天著本批房源将于7月30日10点正式选房,户型面积段为99-121㎡,备案均价约8.38万/㎡。
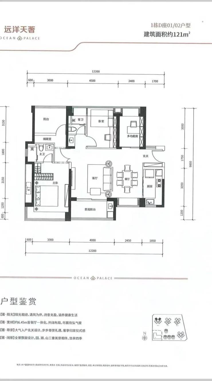
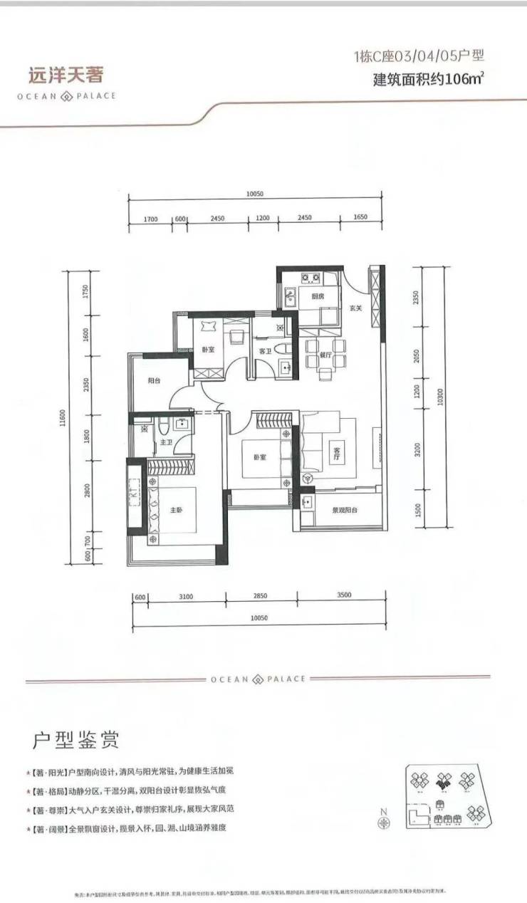
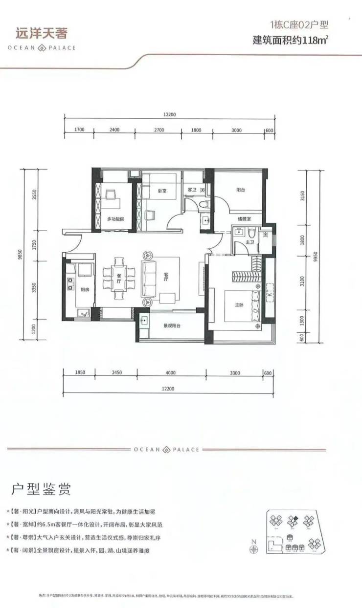
本次远洋天著将推出的户型产品,属于众冠股份有限公司的回迁代售单位,房源项目东区的1栋D座和C座,户型有建面约106㎡/108㎡/121㎡三个面积段的3-4房,目前已经是准现房单位,预计今年年底可办理房产证。
据悉,本批将推房源看需提前预约,现场需验证意向购房者有300万(含股票、基金等资产证明)。
*本批房源所处楼栋位置
*本批房源户型平面图
本批房源的户型图也已经流出,有兴趣可以提前了解。
项目介绍
远洋天著为众冠时代广场的二期产品,小区出入口距离5号线大学城站D出口约两三百米距离。经地铁5号线大学城一站到西丽,可换乘7号线;三站可达深圳北,可换乘4/6号线。
远洋天著占地面积3.9万㎡,建筑面积24.4万㎡,容积率4.67,绿化率40%,规划总户数为1542户,停车位1340个。
远洋天著项目共7栋超高层、4栋小高层住宅产品,分东西区开发。其中西区3栋楼于2020 年分两批入市,均实现“日光”,所推户型为建面约99-162㎡产品,备案均价约8.38万/㎡。西区已于2022年年底交付,据报道,项目交付品质非常不错,在同期交付项目中口碑甚好。
而东区,就是本次将推楼栋所在小区,由4栋超高层、4栋小高层组成,大部分为回迁房。
项目配套
教育:远洋天著东区花园配建有一所公立幼儿园;项目周边有南二外集团平山小学。平山小学2019年并入南二外,于2022年重建为54班九年一贯制学校。(具体入学以当年区教育局公示为准)
商业:项目一期自带逾5万㎡的益田假日里,该商场2019年9月已开始营业,连接地铁大学城,二期远洋天著有4千多平的底商,而与项目一站之隔的西丽,还有老牌商场西丽天虹。
另外,同样是一站之隔的塘朗,有塘朗城6万㎡大型集中式购物中心,还有下半年即将开业的宝能城10万㎡环球汇商业。因此,项目周边的商业配套也相对完善,能满足业主的购物需求。
*宝能环球汇效果图
综合来说,远洋天著的加推,给意向购房总价预算在800-1000万的改善群体有了新选择,这个项目可入吗?大家可以一起来看看它的优劣:
优势:从地理位置上看,地处西丽重点打造的大学城片区,且临近塘朗山、西丽湖等风景区,规划布局较好;从产品自身看,西丽片区新房供应量少,远洋天著以三年前的价格卖准现房,所见即所得,市场竞争力还是较强;从交通方面看,项目为地铁口物业,又邻近深圳北站高铁站,及规划中的西丽高铁站,同时也毗邻多条主干道,占有一定优势。从配套方面看,商业配套相对完善,自身+周边商业逾25万平,能满足业主需求。
劣势:本小区回迁房占比较大,且停车位相对而言略有不足,对未来居住舒适度或有一定的影响。
声明:本文由入驻焦点开放平台的作者撰写,除焦点官方账号外,观点仅代表作者本人,不代表焦点立场。


