339套住宅,限价4.4万/㎡,深房光明里83-115平户型图曝光
扫描到手机,新闻随时看
扫一扫,用手机看文章
更加方便分享给朋友
4月4日,家在网友爆料了光明凤凰城片区新盘深房·光明里的户型图,主力户型为83-115平单位,住宅商品房共339套,限售价4.4万/㎡
项目参数:
占地:约10721平
总建面:约81680平(含地下不计容)
容积率:规5.0
住宅:36105平(含4800平可售安居型商品房)
车位:700+(地下2-3层)
裙房商业:15000平(3-4层)社区社康中心:1500平
社区菜市场:1000平公共开放空间:540平(占地)
限高:100米
普通商品房售价:约44000(装修另计)
安居商品房售价:约22000(装修另计)
项目位于光明中心区中部区的凤凰镇板块,周边有光明区行政大厅、城市广场、明心园、凤凰学校等,属于多部门共管严管地带,高颜值片区。
附近还有光明大第、中海寰宇时代、深房传麒山等多个大型住宅区;
以南近连片的高端产业园区,区域聚集了地方具有代表性的龙头企业和重大项目,其代表有招商局光明科技园、宝新科技园、欧菲光总部研发中心等。
项目目前有6号线地铁凤凰城站,未来在建地铁13号线在项目东南方向设置同观路站。
项目旁边,地铁13号线新设置站台及出入口的需要,凤凰学校改造西大门、东大门,以完善顺畅的校区出行及安全,同时提升校园及周边高颜值配套。
项目地块为深房集团在深圳2021年9月28日第二批集中供地以底价96500万竞得的光明A511-0039地块。
块总用地面积10721.07㎡,总建筑面积81685㎡,其中计算容积率建筑面积53605㎡(住宅36105㎡,安居房4800㎡,物业服务用房100㎡,商业15000㎡,公共配套设施2500㎡)。
包含3栋塔楼(100米),地下室3层,商业3层局部四层。
初始配建不少于4800㎡的出售型安居型商品房。该宗地普通商品住房销售均价不得高于44600元/㎡,安居型商品房平均售价不得高于22100元/㎡、最高售价不得高于23200元/㎡。
2021年拿的地,目前这个进度真的算很慢了。
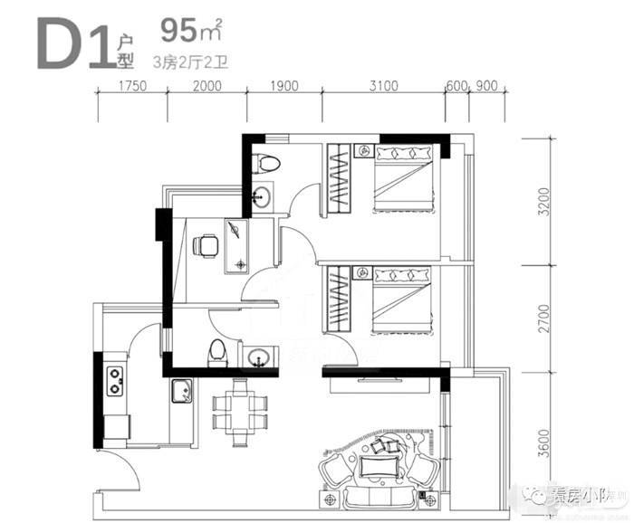
附户型图:
80㎡三房一卫两种户型
95㎡三房两卫
115㎡四房两卫
来源:深圳房地产信息网
声明:本文由入驻焦点开放平台的作者撰写,除焦点官方账号外,观点仅代表作者本人,不代表焦点立场。


