建面约18万平,龙岗区第二中医院规划公示
扫描到手机,新闻随时看
扫一扫,用手机看文章
更加方便分享给朋友
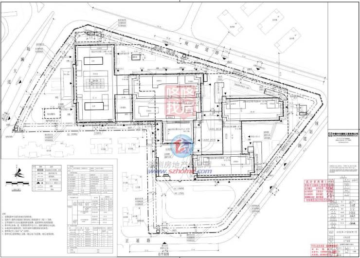
2月14日,深圳市规划和自然资源局龙岗管理局发布了龙岗区第二中医院(暂定名)总平面图的通告。
龙岗区第二中医院(暂定名)位于龙岗区坂田街道坂澜大道与稼先路相交处东南侧,用地面积41863.41平方米,用地单位为深圳市龙岗区卫生健康局。
深圳市规划和自然资源局龙岗管理局已核发该项目的《深圳市建设工程规划许可证》(深规划资源建许字LG-2023-0009号)。
项目总建面约18万平,其中医疗用房66394平,养老综合用房40487平米,员工宿舍3000平米。
龙岗区第二中医院新建工程坐落在坂田街道龙船窝片区的一片山林里,东临规划道路益团路,西接坂澜大道,周边用地现状以居住、工业用地为主,总用地面积41863平方米,总建筑面积183344平方米,总投资额12.39亿元。
项目拟新建一栋21层住院楼、两栋12层的养老院和一栋6层的门诊室,并附有5层医技楼、3层养老裙楼、2层会议中心,地下结构分3层地下室、停车位1200个,建成后将成为一所以针灸、推拿、康复、“治未病”为特色,集基本医疗、高端健康、产业扶持服务于一体的三级甲等综合性中医院,可提供医疗和养老床位各500张。
来源:深圳房地产信息网
声明:本文由入驻焦点开放平台的作者撰写,除焦点官方账号外,观点仅代表作者本人,不代表焦点立场。


