654套住宅,龙岗又一新盘要来了!78-180平3-4房,户型图曝光
扫描到手机,新闻随时看
扫一扫,用手机看文章
更加方便分享给朋友
家在网友@传信息爆料,龙岗又有一新住宅楼盘要来了。
该项目为万科金域学府(原万科翰邻城3期),共654套住宅,目前已获得建设工程规划许可证。
金域学府4栋(宗地号 G01020-0208)项目,位于龙岗区龙城街道回龙埔社区规划二路西侧,建设用地面积15055.9平方米,用地性质为二类居住用地;
新建建筑1栋,建设规定总建筑面积为59539平方米,其中住宅58420平方米,办公1000平方米,物业服务用房119平方米。
本项目申报新建住宅、办公建筑 1 栋,其中一、四单元均 33 层、二单元 34 层,三单元 27 层。由深圳市万科回龙埔房地产开发有限公司开发建设。

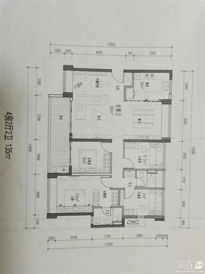
同时,网友还曝光了该项目将推的户型图(具体以官方公布为准):
据悉,万科翰邻城一期于2015年入市,推120-190平4-6房、88-400平复式房源,均为精装修交付,已全部售罄。
来源:深圳房地产信息网
声明:本文由入驻焦点开放平台的作者撰写,除焦点官方账号外,观点仅代表作者本人,不代表焦点立场。


