深圳超体旧改建设“加速”,福田中心大盘今年有望入市
扫描到手机,新闻随时看
扫一扫,用手机看文章
更加方便分享给朋友
深圳两大位置超好、超级体量旧改项目传来新进展。

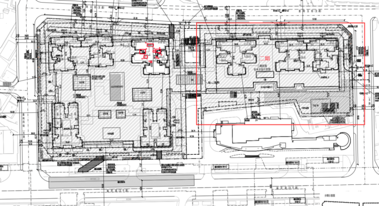
日前,福田管理局公示皇岗村改造一期(暂定名)一期一标段、二标段总平图修改公告。意味着,这座福田中心超体旧改迎来实质性进展。

所公示修改内容主要涉总平面图和技术经济指标修改,修改后的具体数据指标如下:
一标段:
建设用地面积约3.1万㎡,总建面约22.5万㎡,容积率5.07,计容建面约15.9万㎡,规划机动停车位1266辆。
其中,住宅约10.2万㎡,商业约4.1万㎡(地上+地下)

共建1栋5个单元,均为超高层楼体,其中1、2单元47层。一标段的修改示意在1-4单元及连廊广场。

二标段的修改示意主要是5单元部分数据的微调。
公示的经济指标总建面约3.3万㎡,容积率1.05,计容建面约3.3万㎡,其中,住宅约3.1万㎡。


本次公示中没有提及的二期地块,规划有3个单元楼,均46层。预计有约7万㎡住宅。

皇岗村改造项目,位于福田福民路与皇岗二街交汇处西北角,紧邻深圳地铁7号线皇岗村站,地处深圳中心的核心腹地。

凭借优越的地理位置、超700年悠久历史以及惊人的经济实力,皇岗村早就“未拆先富”,也被称为深圳“第一村”。
或许正因为如此,“深圳第一村”的旧改之路一度陷入漫长的拉锯战。
2010年,《深圳市福田区皇岗村改造专项规划》获批,规划总建面约200万㎡,拟建设福田中心大型居住综合社区。
但因改造涉及体量庞大、利益分配及产权纠葛复杂,规划推进一直十分缓慢。
搁置近10年后直至2020年,皇岗村旧改突然低调启动拆迁。
2023年6月,项目实施主体明确,由卓越集团与皇岗实业股份公司合作,进程开始加速。
8月,皇岗村旧改专项规划修改草案公示,一期规划开发建设用地3.14万㎡,拟建20.3万㎡住宅、商业及服务业约6万㎡(含地下)。

2024年,皇岗村改造项目正式进入地基建设阶段,“深圳第一村”建设摁下了“加速键”。
从网友爆料的施工进展来看,项目部分楼栋主体已经出地,预计最快年底可以入市,一改福田新房供应紧缺的局面。
一期对外出售的商品房具体数据有多少,还需要进一步官宣公示。
而皇岗村本身作为一个超级旧改,除了一期调整规划后,规划范围内其余村没有动工迹象,是否意味着不再纳入旧改呢?
2023年年底,有网友就此问题咨询福田管理局,有关部门答复称,除公示的一期修改草案外,未涉及修改的内容以原专项规划通知为准。

不过,当前的市场环境,皇岗村旧改项目的二期、三期或许需要调整规划,开发商才有动力继续开发。

自从本土旧改大户“佳兆业”出险后,其旗下一众在规划的旧改项目前景渺茫。
近期,备受市场关注的布吉南门墩项目“去向”终于明确!
深圳公共资源交易中心公布《龙岗区布吉街道南门墩城中村改造项目意愿征集阶段服务项目中标(成交)结果公告》,中标公司为深圳市天健城市发展有限公司。
值得注意的是,“南门墩旧改”已经调整为“南门墩城中村改造项目”,意味着项目将 由城市更新转为城中村改造。

天健此次中标服务内容包括沟通调研、开展意愿征集、舆情评估以及物业权利人户数合适等9项工作,服务期限为合同签订之日起12个月内。

这也意味着这个立项17年的旧改项目,将转为城中村改造模式,继续推进。
南门墩旧改历程如下:
2008年,南门墩片区城市更新单元为《深圳市城市更新改造项目2008年度实施计划》项目;
2010年,结转至《2010年深圳市城市更新单元规划制定计划》;
2013年,范围调整经批准后被列入《2013年深圳市城市更新单元计划第二批计划》;
2016年,项目规划(草案)公示,规划计容建面约63万㎡;
2017年7月,更新单元规划获批;
2020年,修改单元规划公示,一期正式确认实施主体,完成范围内的全部搬迁补偿安置签约工作;
2021年,一期用地拆...
后因开发商出险而导致项目搁置,直至如今转为城中村改造项目。
布吉南门墩项目位于龙岗区布吉街道,龙岗大道与铁东路交汇处,紧邻深圳东站和3号线、5号线及14号线换乘站布吉站,佳交通便捷,地理位置优越。
根据项目2020年修改的规划公告,项目开发建设用地面积约68828.1㎡,规划计容建面约63.6万㎡。

其中,住宅建面约40万㎡(含4.2万㎡保障房),商业、办公及酒店约14.2万㎡,商务公寓约6.4万㎡,公共配套约1.9万㎡(包括18班幼儿园、24班初中)。

后续项目是否会重新调整规划,将以官方最新公示为准。
声明:本文由入驻焦点开放平台的作者撰写,除焦点官方账号外,观点仅代表作者本人,不代表焦点立场。


