990套房源,福田绿景尚悦府户型曝光,主打110-143平的3-4房
扫描到手机,新闻随时看
扫一扫,用手机看文章
更加方便分享给朋友
日,家在网友爆料了福田绿景尚悦府的户型图,此项目户型主打110-143平的3-4房(附户型图)。
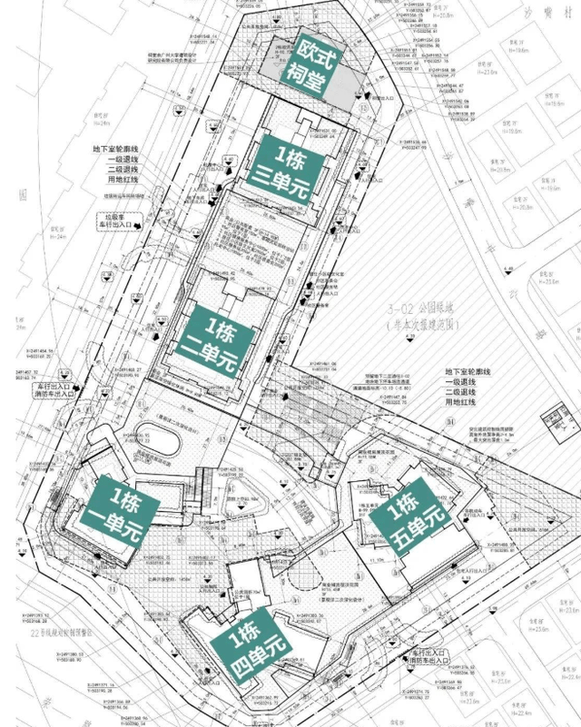
绿景尚悦府位于沙尾福荣路北侧,是绿景集团主导的沙嘴村旧改二期项目,目前紧锣密鼓施工中,主楼体尚未出地面,据工程概况牌显示,项目预计2024年7月底竣工。
绿景尚悦府建设用地面积约1.76万㎡,总建面约16.4万㎡,计容总建面约10.89万㎡,容积率到6.2,规划停车位881辆,楼体建设为地下4层,地上最高为32层。
项目规划的物业类型有住宅、商业及生活公众配套,住宅方面主要以回迁房为主。
绿景尚悦府共规划990套房源,其中商品房住宅85套,回迁房住宅905套。



项目配套方面,项目邻近沙嘴路与福荣路交汇处,西侧为好景豪园小区;东侧是沙嘴三坊;北侧是项目一期,已建成的绿景红树湾一号小区。
距离地铁7号线约1公里左右(百度地图测距);商业方面,项目自带有1.16万㎡的商业,同时一期的绿景佐阾红树林购物中心已经运营,该商场接近7万㎡,完全能够满足业主的日常生活需求。另外,项目一期北侧即是建设中的金地环湾城,该项目规划有购物中心,未来也能丰富片区商业。
附户型图:
项目所在的片区为大金沙片区,大金沙旧改是深圳航母级旧改之一,包含四大城中村(下沙、上沙、沙嘴、沙尾)+三大工业区(上沙工业区、金地工业区和沙尾工业区)+一个旧住宅区(金地花园等)。
大金沙片区规划方向为,预留充足地下车位。规划总车位9.25万个,其中居住停车位3.85万个,商业办公5.4万个。
规划区居住总人口约13万人,教育设施包括1所初中、4所小学、10所幼儿园。医疗卫生设施将有7个社区健康服务中心。
目前已动工的有上沙村、金地工业区和沙嘴村。
来源:深圳房地产信息网
声明:本文由入驻焦点开放平台的作者撰写,除焦点官方账号外,观点仅代表作者本人,不代表焦点立场。


