724套住宅,宝中都市茗荟花园2期规划公布!已是现楼?
扫描到手机,新闻随时看
扫一扫,用手机看文章
更加方便分享给朋友
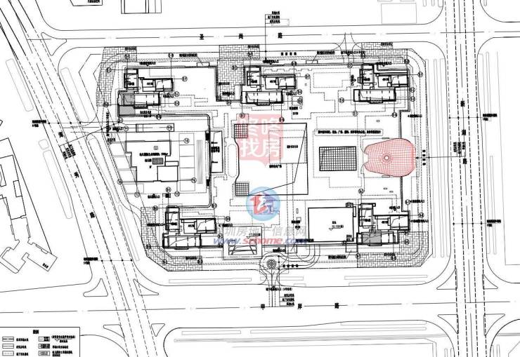
宝安的都市茗荟花园(二期)《建设工程规划许可证》及总平面图已正式对外公告。
二期建设用地面积32919.92平米,总建面约20.4万平,计容建面12.8万平。总户数724户,其中90平以下的户型有543户;项目配套有裙楼商业16000平米。
项目共有5栋住宅,最高楼层43层。
都市茗荟花园在2019年8月备案房源位于一期ABCD栋,共413套,均为住宅产品,均价约10.9万/㎡,总价在448-5071万/套,目前已售罄。
项目二期是由1栋A、B、C、D、E五座及底层商业组成,和一期类似也配备有幼儿园、游泳池,但二期是呈现凹字型排列,中间部分为城市公共广场和商业休闲街道,使得小区花园并不大。
二期占地面积约为3.3万平米,与一期一路之隔,总建面约20万平方米,容积率3.82,含住宅8.8万平米,商业1.6万平米(附菜场),其余为幼儿园、城市公共通道、地下车库和设备用房等。项目区别于新锦安壹号公馆的大户型和壹方中心的公寓,多以刚需户型为主。
据了解,户型为86-143平的3-5房。

都市茗荟花园二期早已封顶,这个项目从当初还是期房的时候就传言要入市,现在3-4年过去,房子都熬成现房了,开发商还没拿新房预售证,成为远近闻名的捂盘王。
曾经传“喝茶费”上百万,到如今,新规后的户型出来后,许多产品设计已吊打前几年的产品。
此前就有传言称此项目的户型不符合官方的要求,过不了官方的审核,从传出来的户型图可以看出,有个别户型没有餐厅(户型具体以开发商信息为准)
从区域来看,都市茗荟二期整体面貌不错,前海宝中核心区域中心公共各种配套齐全,与老牌豪宅熙龙湾一路之隔。到壹方商业中心也步行仅300米。周边和学区内教育资源丰富,属于【海天学校】学区内。未来会承接前海核心桂湾金融行业和腾讯等高端就业人群,片区未来有成长性。
居住纯粹,纯商品房小区,没有人才房和政府公租房等房源,部分户型可以全视角看深圳地标,宝安摩天轮和欢乐港湾公园景观。而且离地较近,步行约300米。
已经封顶几乎是现售,即买即收房。没有等待和空置期。
来源:咚咚找房
声明:本文由入驻焦点开放平台的作者撰写,除焦点官方账号外,观点仅代表作者本人,不代表焦点立场。


