深圳多个项目规划公示!坝光产业孵化大厦总平面图来了
扫描到手机,新闻随时看
扫一扫,用手机看文章
更加方便分享给朋友
深圳规自局发布坪山、大鹏多个产业、住宅项目平面图及工程规划许可证的公示。
其中,大鹏坝光产业孵化大厦项目,建筑面积32000㎡,将建研发用房,厂房,商业用房等。另一个住宅项目东山海滨名苑重新取得规划许可证,项目建筑面积36330㎡,其中住宅35280㎡,将建4栋住宅。
位于坪山的光弘科技智能园区项目,总用地及建设用地面积均为53001.09㎡,总建筑面积201463.29㎡,将建厂房、食堂、宿舍、商业等。
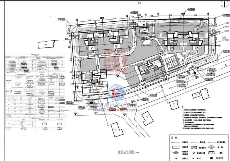
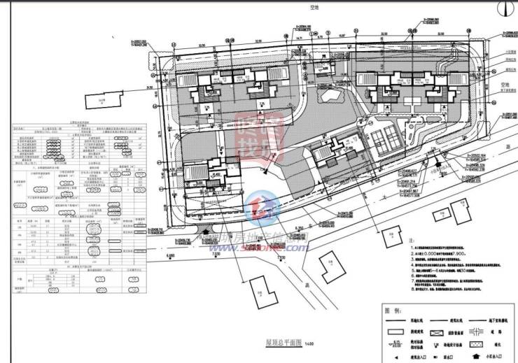
1、大鹏坝光产业孵化大厦,建设项目许可证总平面图公示
深圳市鹏远置地有限公司开发建设的坝光产业孵化大厦项目(宗地号G15401-1530)位于大鹏新区葵涌街道坝光片区。
经深圳市规划和自然资源局大鹏管理局审查,同意核发该项目《建设工程规划许可证》(建字第4403072023GG0091349号)。根据相关规定要求,现将《建设工程规划许可证》及总平面图予以公布。
项目用地面积10686.09平方米,该项目允许建设计规定容积率建筑面积32000平方米[其中研发用房21200平方米,厂房(无污染生产)8500平方米,商业用房2100平方米,生活服务配套用房200平方米]。
建设工程规划许可证:
主要经济技术指标:
平面图:
据了解,坝光产业孵化器及创新创业园(DY03-06、DY03-07地块)项目是坝光首个政府投资建设的产业项目,是片区产业集聚空间载体,是推动片区生物产业发展的加速剂,其建设具有重要意义。
2、东山海滨名苑一期,重新取得建设工程规划许可证
东山海滨名苑一期(G17301-8325号宗地)项目位于大鹏新区南澳办事处东大路北侧,由深圳市大鹏新区南澳办事处东山社区居民委员会开发建设。
项目用地面积15854.03平方米,该项目于2023年11月14日重新取得《深圳市建设工程规划许可证》[建字第4403072023GG0101386(改1)号]。该项目允许建设计规定建筑面积36330平方米,其中住宅35280平方米,物管用房100平方米,社区健康服务中心800平方米,垃圾生态化处理设施150平方米。
现根据《中华人民共和国城乡规划法》第四十条及相关规定要求,将本次审定的《深圳市建设工程规划许可证》及总平面图予以公布。
建设工程规划许可证:
总平面图:
3、光弘科技智能园区项目,总平面图公示
光弘科技智能园区项目(宗地号G14311-8039)位于坪山区坑梓街道丹梓北路和规划中村路交会处西南角,由深圳光弘通讯电子有限公司建设。
项目总用地及建设用地面积均为53001.09㎡,总建筑面积201463.29㎡,土地用途为普通工业用地,将建厂房、宿舍、食堂等。
该项目于2023年11月7日取得《建设工程规划许可证》(建字第4403102023GG0036320号)。依据《中华人民共和国城乡规划法》相关规定,现对该项目的总平面图予以公布。
主要经济技术指标:
总平面图:
来源:深圳房地产信息网
声明:本文由入驻焦点开放平台的作者撰写,除焦点官方账号外,观点仅代表作者本人,不代表焦点立场。


