宝安新盘河东骏濠园将封顶,网友爆料有1000多套住宅,小户型为主
扫描到手机,新闻随时看
扫一扫,用手机看文章
更加方便分享给朋友
据了解,位于宝安西乡的河东骏濠园项目目前准备封顶,展示中心正在装修,预计离入市也近了。网友爆料称估计有1000多套住宅,可能以小户型为主。
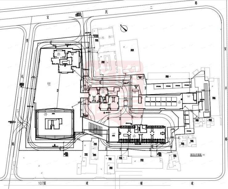
5月6日,深圳市规划和自然资源局宝安管理局关于河东骏濠园(A109-0845)项目总平面图修改公示的通告;
“河东骏濠园”(宗地号A109-0845)项目用地位于宝安区西乡街道,用地面积19270.86平方米,容积率5.55,于2019年3月取得《建设工程规划许可证》。
此次主要修改内容如下(详见图中云线圈示部分):
1、地上停车位数量由198个调整为228个,地下停车位数量由837个调整为807个,调整后总车位数不变。
2、根据设计及测绘规范对相关面积指标划归进行微调,并结合预查丈对面积指标进行修正,调整后技术经济指标中地上核增指标减少1596.73㎡,地下核增指标增加862.74㎡,其他相关面积指标作相应调整。
3、2栋(功能为公寓、办公、商业)调整立面装饰线条宽度,取消十一层屋顶花园处曲线线条装饰,总平面图作相应调整。
经核查,修改后仍符合规划要求。
项目规划为多元的商住综合体,覆含住宅、公寓、办公、商业等产品。总建筑面积160313.25㎡,由一个三层地下室、一栋5层的商业裙房以及地上4栋塔楼组成。其中1栋塔楼A座31层,1栋塔楼B座31层,2栋29层,3栋33层,4栋3层为独立幼儿园。
从主要经济技术指标上看,项目规划住宅约3万㎡,分布于1栋B座、1栋裙房、3栋。公寓约1.3万㎡,办公约4.6万㎡,商业约1.3万㎡。绿化率30%。
河东骏濠园项目位于西乡街道河东社区,宝民二路以南,望达二路以东,107国道以北,宝丰路以西。
位置从整体上来看,西南向宝安中心区,东北向尖岗山片区。辐射3公里范围公建配套丰富,生活氛围浓厚。
地铁方面。项目目前周边并无地铁站点,但与在建地铁12号线“流塘站”相临。地铁12号线预计于2022年年底开通(仅供参考,具体开通时间以官方通告为准)。届时,从项目出发,可以通过12号线方便抵达蛇口、南山中心区、机场片区。并方便在坪洲、洪浪北与1、5号线换乘。
周边旧改。项目周边规划旧改项目较多,且以大型城中村社区为主。项目一路之隔,西乡街道107发展带河东片区城市更新单元由佳兆业操盘。据佳兆业方面介绍,未来项目将建成集金融办公、大型现代商业、五星酒店、特色城市主题公园、高尚住宅等功能配套服务完善的标志性城市综合体。
其二具有代表性的是107发展带翻身片区城市更新单元,由福昇地产操盘,规划为商住综合体,体量中等。
项目东北方面分布以工改为主的中等体量旧改,改造方向都以商住为主。
来源:深圳房地产信息网
声明:本文由入驻焦点开放平台的作者撰写,除焦点官方账号外,观点仅代表作者本人,不代表焦点立场。


