总670套房源,特发香阅四季园户型图曝光!89-126平3-4房
扫描到手机,新闻随时看
扫一扫,用手机看文章
更加方便分享给朋友
特发香阅四季园又有新动静了,此项目是2021年第二批集中供地所拍地块,也是特发地产排名前列在深圳拍地的项目,建成后普通商品住房销售均价不得高于51000元/平方米。
近日,网友爆料了特发香阅四季园项目的户型图,主要为89-126平的3-4房为主;价格方面,项目毛坯限价5.1万/㎡,周边新盘住宅约5.8万/㎡,二手房挂牌价较高破8万。
项目后侧即为石芽岭公园,一路之隔处为石芽岭学校,周边还有多所学校,上下学方便,但是项目距离地铁站较远,出行不是很方便。
根据规划,项目占地约1.37万㎡,总建面约6.15万㎡,由3栋建筑组成,其中1栋为2层商业,2栋分为四个单元,安居房位于2栋一单元,自持租赁房位于2栋二单元,商品房位于2栋三单元和四单元,3栋则为一所6班幼儿园。
项目于今年4月取得建设工程规划许可证,5月底取得建设工程施工许可证,建成后将提供670套房源(保障房180套),套内小于90平412套,占比87.66%。

规划许可证
交通方面,距在建中的14号线约600米(百度地图测距);项目距离3号线大芬站直线距离约1公里(百度地图直线测距)。
商业方面,项目自带1栋2层商业楼,能满足基本的日常需求,除此周边多为成熟社区,能共享其商业资源。距离项目最近的大型商场在约1公里处,有沃尔玛购物广场、星都里商业中心、东部星悦天地等。
项目毛坯限价5.1万/㎡,目前周边新房住宅约5.8万/平,二手房挂牌价约6.16-8.74万/平之间。
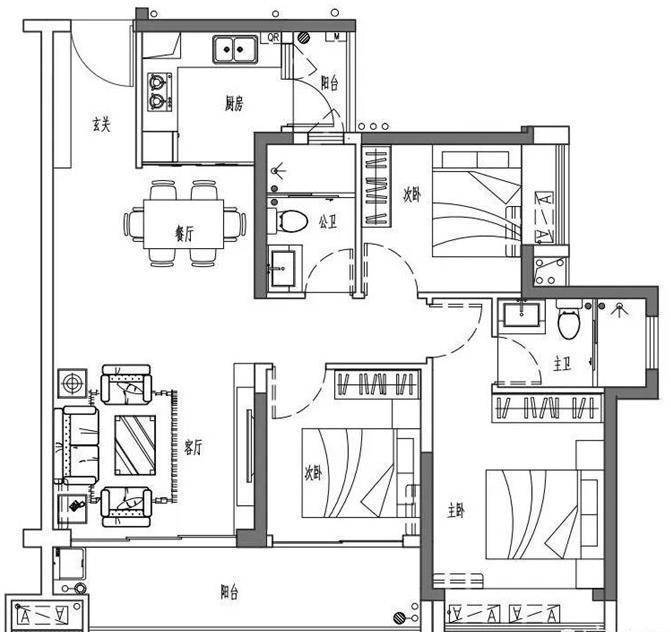
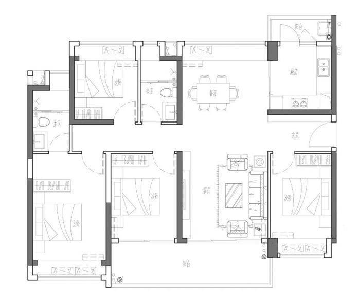
附户型图:
约126平4房2厅2卫
约96平3房2厅2卫
约89平3房2厅2卫
来源:深圳房地产信息网
声明:本文由入驻焦点开放平台的作者撰写,除焦点官方账号外,观点仅代表作者本人,不代表焦点立场。


