有盘6月卖,有盘转租赁?宝中“神盘”最新进展来了
扫描到手机,新闻随时看
扫一扫,用手机看文章
更加方便分享给朋友
上周,我们写了深圳几个核心板块的二手豪宅量升价起,其中就有提到宝中片区。
作为宝中的标杆豪宅楼盘,像熙龙湾、壹方中心玖誉等项目,在3月份均有不同程度的回暖,感兴趣的朋友,可以戳链接了解详情:溢价310%、价格创新高!深圳有钱人开始抢房了
但区别于二手市场的活跃,新房市场倒显得相对平淡。
以区域内目前仅此在售的新房越秀瑞樾府为例,项目2023年8月份入市,时隔开盘已有半年之久,仅卖了187套住宅,去化6成左右。
*图源丨深房查
新房成交惨淡,一方面是越秀瑞樾府所处的片区非宝中核心区位,且项目约一半商品房(305套,取证302套)、一半保障性租赁房(280套);
另一方面,也是主要因素,片区在售的新房非常之少,供应量是决定成交量的基本盘。
当然,第二个问题可能在今年会得到解决。据悉,宝中今年有多盘入市,其中限价盘鸿荣源胤璇、中铁阅臻府开盘概率较大,而泰华梧桐林居、都市茗荟花园二期也都有新的进展。
鸿荣源胤璇仅131套可售住宅
网传5月份或面市
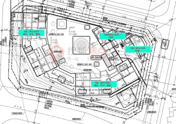
鸿荣源胤璇,原为宝中A004-0175商住地块,是鸿荣源于2021年以底价30.94亿元,住宅限售均价8.55万/㎡,拍下的商住用地,建成后物业类型包括住宅(含只租不售人才房)、办公、酒店及商业等。
该项目是宝中位置最好的限价新盘,加上周边同地段的鸿荣源壹方玖誉,二手房成交价13-14万/㎡,远高于项目限价,也让其备受市场关注。
鸿荣源胤璇由1栋4个单元的高层及超高层组成,其中1栋1/2单元为办公、酒店及商业,层高50-54层;3/4单元均为33层高的住宅。
鸿荣源胤璇住宅总建面共计2万㎡,其中包括18000㎡可售商品房,2000㎡只租不售的人才房。
具体到户型比例来看,可售住宅有131户,网传户型建面约117/123/127/189平㎡4-5房,两梯三户及两梯两户配置,具体以开发商官宣为准;
另外还有17套只租不售人才房。
*项目效果图
据@深圳房地产信息网报道,项目目前已经在装修样板房了,此前也有网友爆料,项目最快5月份或能面市,看来是大概率的事了。
*搜狐焦点网友2024年2月18日实拍
纯大户型+核心地段+价格倒挂红利,是鸿荣源胤璇的绝对优势,当然项目也有不足,如项目整体的体量小,地块用途较多,难以形成居住的氛围等。
中铁阅臻府推629套住宅
首批预计6月份入市
中铁阅臻府是深圳首宗竞现房销售的地块,有近一半面积的住宅需得等现房才能卖。
项目总占面约1.5万㎡,总建面约11.1万㎡,规划容积率5.4,规划车位710个,共计629套住宅,限价8.86万/㎡。
也就是说,今年能卖的住宅只有300多套,剩余300多套需等2025年现房发售。
据悉,今年首期将推1-1栋和1-2栋约319套住宅,其中包括95㎡3房116套,108㎡4房145套,109㎡4房29套,138㎡4+1房29套。

目前中铁阅臻府展示空间及异地样板间已开放,最快6月份或能入市。
同样是限价盘,那么难免就会有对比。从价格上来看,中铁阅臻府是宝中限价最贵的楼盘,中铁>越秀>鸿荣源。
当然中铁也是这几个限价盘中唯一一个有100㎡以下户型的住宅,所以上车总价会比较小,但居住可能就没有那么纯粹,另外深圳将取消“7090政策”,面积较小的户型,现在看可能是优势(总价较低),但未来的流通性可能就没有那么好了。
另外从地段上来看,中铁相对处于宝中的边缘位置,因此区域内一些医疗、商业、景观配套,需得驱车前往,便利性较差。
再一个硬伤应该就是交通了。鸿荣源是宝华地铁口项目,越秀距离宝体也还算较近,而唯独中铁不近地铁。
目前宝中片区已经汇集了1/5/11号线,在建的有15号线,都距离项目较远,且短期内片区内可能不会有新的地铁规划,所以业主的轨交通勤相对不便利。
当然,项目的户型确实可圈可点,据悉整体的实用率都较高。
都市茗荟二期推724套住宅
外立面已装好 园林即将完工
鸽了又鸽的宝中“鸽王盘”都市茗荟二期,每年都有入市的消息传来,但却没有切确消息。
如今,项目外立面建好了,园林也即将完工,期房快要变成了现房了,能等来入市吗?
都市茗荟二期建设用地面积约3.3万㎡,总建面约20.4万㎡,总户数724户,网传户型为87-117-120-143-162㎡,具体以开发商官宣为准。

*效果图
据了解,二期由1栋A、B、C、D、E五座及底层商业组成,其中A、C、D座为43层,B、E座为41层,均为3梯4户的设计,另外小区内配备有幼儿园、游泳池等。
都市茗荟二期与一期一路之隔,一期于2019年底取得了现售许可证,并在住建局官网公示,一期备案房源位于一期ABCD栋,共413套,均为住宅产品,均价约10.9万/㎡,总价在448-5071万/套。
据贝壳网显示,目前都市茗荟一期挂盘均价在13.8w/㎡。
而在前段时间,一期有2套239㎡4+1房三卫的二手笋盘在售,1A栋低楼层挂盘2699万(原备案价2887万),1B栋高楼层挂盘2750万(原备案价备案2876万),但目前均还没成交。
二手房都低于备案价挂盘了,说明在市场面前,业主也不得不低头。
基于此情况下,若二期今年要卖,大概或可参考一期的备案价格,甚至会更低一些,具体以备案情况为准。
泰华梧桐林居约4482套住宅
楼栋即将封顶
宝中的另一个“老妖盘”泰华梧桐林居,进度也有刷新,据@深圳房地产信息网显示,项目楼栋即将封顶。
泰华梧桐林居位于宝安中心区,宝安大道与新安西路交汇处,靠近地铁1、5号线地铁口,出行便捷。
原名为泰华海逸世家,后改为现在的名字。一共有两期,目前一期施工中,预计2024年完工12月完工。
根据规划,项目用地面积约9.6万㎡,总建筑面积约61.8万㎡,其中住宅38.8万㎡,商业3.43万㎡,容积率6.2,幼儿园面积2970㎡。层高最高53,绿化40%,车位3081个。
*项目效果图
*项目平面图
项目总计4482套住宅,一直没有开盘的消息,有传闻这些房源传将全部作为自持长期租赁房,不再考虑对外发售。因为泰华在宝中的另一个项目,泰华梧桐聚落花园,就是作为酒店公寓在招租中,但具体如何,我们还是等待开发商官宣吧。
另外值得一提的是,泰华梧桐林居是2003年签订的用地合同,目前产权年限缩水严重,到手仅剩50年产权。
综合整合:深圳焦点深圳、深圳房地产信息网
声明:本文由入驻焦点开放平台的作者撰写,除焦点官方账号外,观点仅代表作者本人,不代表焦点立场。


