仅244套商品房住宅!中南珺悦名都今年能卖吗?
扫描到手机,新闻随时看
扫一扫,用手机看文章
更加方便分享给朋友
深圳西部核心,除了宝中,还有与南山接壤的新安。
当前,新安片区在售有万科大都会、大悦铂悦苑的尾盘住宅产品。
接下来,又有什么新项目值得大家期待呢?
前两年接近入市的勤诚达云邸以及规划动工的勤诚达大二期,受开发商影响或暂被搁置,入市时间成谜。
大家可以期待的是目前已经动工的珺悦名都,项目与万科大都会、中粮大悦城相邻。

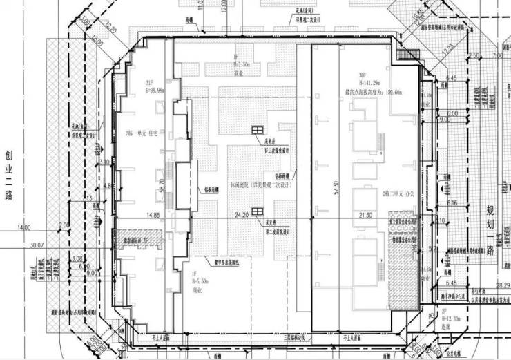
珺悦名都原为宝城25区及新安25区城市更新项目一期C项目,位于宝安区新安街道前进一路与裕安二路交汇处南侧,由两个地块组成。
项目由中南建设旗下深圳市金中盛投资有限公司开发。(ps:6月24日st中南发布公告称将于15个工作日内摘牌)
据悉,深圳市金中盛投资有限公司的大股东为湖信中盛投资合伙企业。信达地产于2023年2月共同参与认购的大股东芜湖信中盛投资合伙企业,总认缴规模为31.51亿元,投资建设珺悦名都。

信达地产纾困珺悦名都的建设,项目在建设上有一定的资金保证。
珺悦名都总占面约1.13万㎡,总建面约14万㎡,规划包括办公、住宅、商务公寓、商业等多元业态在内,规划377套住宅房源,但普通商品房仅244套,而办公+商务公寓规模近6万㎡。
两宗地的规划信息如下:
01地块(A007-0585宗地)总建面约6.9万㎡,含住宅建面约1.5万㎡、办公约2.3万㎡、商务公寓约0.9万㎡,容积率10.5。本地块规划住宅总户数约203户(包括商品住宅70户,保障性住房116户,回迁房房17户)。
02地块(A007-0586地块)总建筑面积7万㎡,住宅建面约1.7万㎡,办公及相关配建物业约3.1万㎡,商业2031㎡。本宗地规划住宅总户数174户。
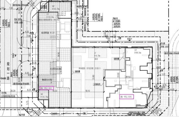
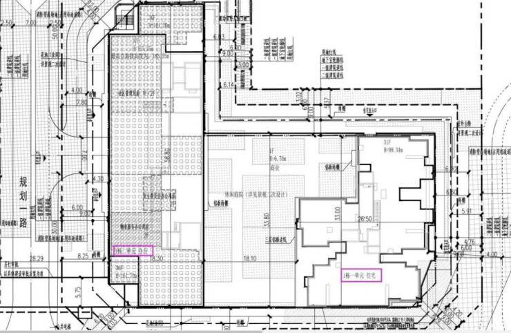
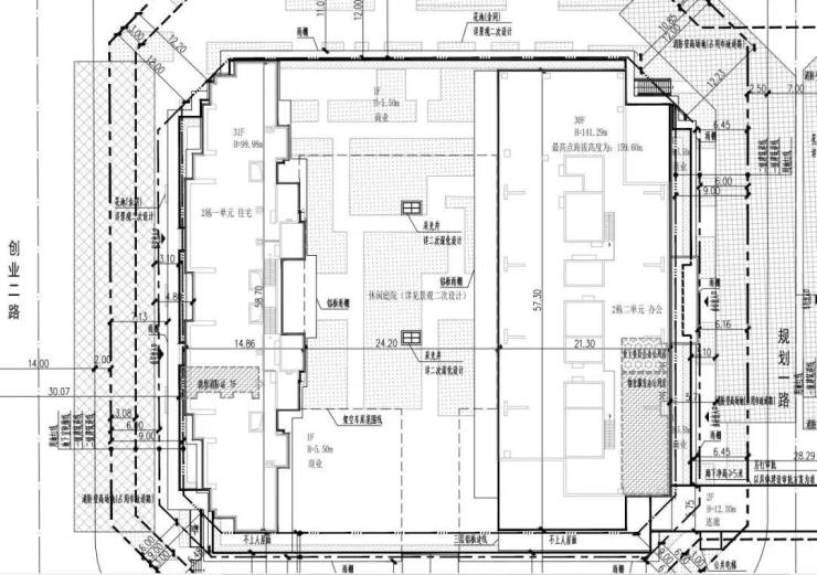
两宗地均为1栋办公+1栋住宅楼组成。其中01地块住宅楼31F,办公楼37F;02地住宅楼31F,办公楼30F。
图|平面图,左为01地块,右图为02地块
整体来看,珺悦名都的规模不大,但物业类型颇多,且相对而言各物业不集中,难以形成有效的居住氛围。而且项目普通商品房的数量较少,未来居住人群不太纯粹。
6月,@血拼深圳楼市 实地走访发现,珺悦名都在施工阶段,不过较去年年底网友曝光的工地图没有太多的实质性进展,进度相对缓慢。根据之前的项目公开资料,支护工程将在6月竣工。

珺悦名都地块处于围合阶段,其中01地块桩基础施工阶段,但现场还在平整土地阶段,02地块还在施工前期,部分建筑尚未拆除。
图|珺悦名都现场实拍
珺悦名都地处新安老城区的集中改造板块,周边已经有建成/在建的万科、中粮项目,但周边仍有待规划改造的板块影响整体的城市面貌和道路规划。
不过,珺悦名都周边居住氛围浓厚,且近宝中,生活、市政配套上比较完善。
轨道交通:珺悦名都距离地块5/12号线灵芝站直线距离约400米不到。经这两条地铁线可以快捷通达宝中、前海、南山中心等核心板块。
商业方面:珺悦名都相邻的中粮大悦城带16万平商业mall(在建中)。直线距离1公里范围内还有中洲π mall、勤诚达K+、宝安万达广场等大型商业配套,稍远处还有海雅缤纷城以及壹方城,商业配套十分丰盛。
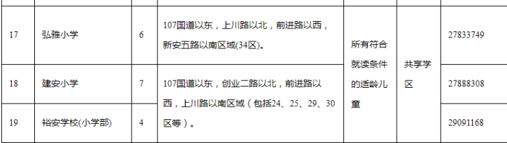
教育方面:珺悦名都一墙之隔有新办学的裕安学校。根据2024年招生范围,项目所在片区的小学共享学区为裕安学校(小学部)/建安小学/文汇学校;初中是新安中学的单享学区。(具体入学以当年区教育局公示划分为准)


图|源于宝安教育局
此外,项目在项目步行可达范围内还有灵芝公园、宝安区中医院等市政配套。
至于价格方面,万科大都会、中粮大悦城均属于片区标杆项目,当年两盘的开盘备案均价分别为9.3万/㎡、8.8万/㎡可供参考。未来珺悦名都的售价需要结合当时市场情况而定,周边项目可供参考。
综合而言,珺悦名都地处宝安老城区,周边居住氛围浓厚,生活配套较充足,且为大改造项目的后期产品,有较好的居住环境。不过,项目自身商品房占比较少,与办公楼一同,未来人员较复杂,难以有纯粹的居住环境和社区生活。
你觉得这个项目如何呢,欢迎评论留言~
声明:本文由入驻焦点开放平台的作者撰写,除焦点官方账号外,观点仅代表作者本人,不代表焦点立场。


