香蜜湖住宅新盘规划调整!今年有望入市,首推923套住宅?
扫描到手机,新闻随时看
扫一扫,用手机看文章
更加方便分享给朋友
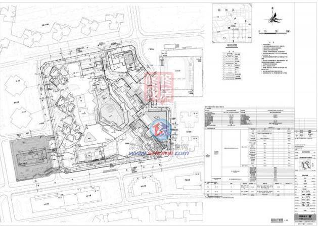
6月26日,深圳市规划和自然资源局福田管理局公示新世界香蜜四季家园项目总平面图修改。
调整1栋一、二、三单元层数及建筑高度,其中1栋一单元层数由43层改为41层,建筑高度由148.50m改为142.20m。1栋二、三单元层数由43层改为44层,建筑高度由145.50m改为148.65m等内容。
具体调整详见云线圈注部分,上述调整后,总平面图仍符合《建设用地规划许可证》(地字第440304202100023号)及相关规定要求。
新世界香蜜四季家园位于福田景田片区香梅路与新闻路交汇处东北角,与香蜜二村仅一路之隔,前身为华泰小区旧改。
目前已建设多层,此前传首批将推出923套商品房住宅,但具体的入市时间还未定。
该项目于2010年纳入城市更新计划,但2021年4月才正式启动开工奠基仪式,至今,此项目已历经14年。
项目占地约4.11万㎡,建筑面积约46.68万㎡,从网上披露的信息来看,商品房主力户型面积段为107㎡-238㎡三至五房;回迁房主力户型70㎡-95㎡两至三房。
这个项目也是今年最有可能入市的项目。
项目所处位置地理条件优越,距离9、11号线约500米(百度测距),双地铁加持交通便利,东面的新闻路和景田路上烟火气及居住氛围浓厚,周边集合多个深圳知名地标,如深圳高尔夫、五洲宾馆、报业大厦、香蜜湖等。
华泰小区始建于1984年,距今已经有三十七年的历史。早在2005年福田区政府就正式认定华泰小区为“旧城区”,并于2010年纳入城市更新计划,是深圳第一批纳入城市更新改造计划的旧改项目。
项目涵盖臻品住宅、高端公寓、星级酒店、商业MALL等顶级业态,全球顶尖设计团队加持,打造对标世界的高端综合体。
住宅部分有9栋建筑,其中5栋为商品房,1栋保障房和3栋回迁房。
其中1栋5单元是商务公寓,6-8单元为面积段约70-95㎡2-3房的回迁房,商品房集中在下图右侧。另外配套一所9班幼儿园,5万㎡的商业和4000㎡的公共开放空间,机动车位2681个。
项目自带5万平商业,家门口就能满足基本的日常生活及购物需求。周边还有香蜜湖沃尔玛、香蜜湖1979文化新天地、福田山姆会员店、京基滨河时代中心城广场、皇庭广场、星河cocopark、购物公园等大型购物中心。
来源:咚咚找房
声明:本文由入驻焦点开放平台的作者撰写,除焦点官方账号外,观点仅代表作者本人,不代表焦点立场。


