629套住宅!宝中限价盘更名“阅臻府”,户型曝光
扫描到手机,新闻随时看
扫一扫,用手机看文章
更加方便分享给朋友
宝中中铁限价宅地有名字了!
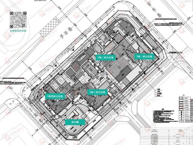
日前,宝中A001-0212宗地的工程规划许可证对外公布,项目命名为“阅臻府”,用地单位是深圳诺德宝中置业有限责任公司。
根据规划,项目总建面111526.42㎡,计容积率建面87631.33㎡,其中包括:住宅71050㎡(现房销售面积约35500㎡),商业5500㎡,幼儿园2200㎡,托育机构500㎡,社区健康服务中心1400㎡,社区老年人日间照料中心1500㎡,物业服务用房150㎡。

中铁阅臻府共规划4栋住宅,层高31-37F,幼儿园靠近兰宝街道、兰滨路交汇处。
中铁阅臻府共629户住宅,无保障房,网传产品面积约94-108-138㎡3-4房户型。
因项目规定近一半的住宅需现房销售,故2024年或先推出300多套,剩余300多套房源待建成后
现房发售。
阅臻府位于深圳市宝安区新安街道,项目是近几年来,宝中推出的第四块宅地(前三块分别被鸿荣源、南通亚伦、越秀竞得),商品房住宅限价8.86万/㎡。
项目于今年8月2日挂牌出让,由于地理位置优越,且重新挂牌后,剔除了办公面积,因此在竞拍前,就有房企把价格报至封顶价,拍卖当天只竞“现房销售面积”,该地块吸引了22家房企,最后中铁摇号获得。
该地块是深圳首块采用竞“现房销售”的宗地,开创了竞现房销售面积的先河。
价格方面,该宗地块毛坯限价8.86万/平,与去年出让的越秀瑞樾府持平,但比鸿荣源宝中地块还要高3100元/平。
二手住宅方面,宗地周边的深业新岸线、高发西岸花园等05/06年建成的小区房,指导价在8.84万/平,目前挂牌价11-12万/平左右。
地块北面是海韵学校、深航福利房深航假日名居,西面就是大铲湾,南面是湾区产业投资大厦,东面为新安中学(集团)高中部。
区位和配套都算不错,但离地铁站有点远,距离5号线宝安站,以及建设中的15号线步行都超过1公里。
声明:本文由入驻焦点开放平台的作者撰写,除焦点官方账号外,观点仅代表作者本人,不代表焦点立场。


