申购倒计时!光明人才房发车,总价156万起
扫描到手机,新闻随时看
扫一扫,用手机看文章
更加方便分享给朋友
光明可售型人才房再发车。本批房源的线上申请认购时间为:2024年8月9日18:00至2024年8月13日18:00。
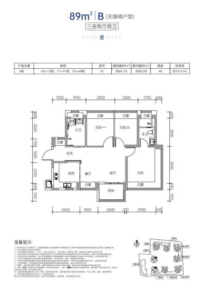
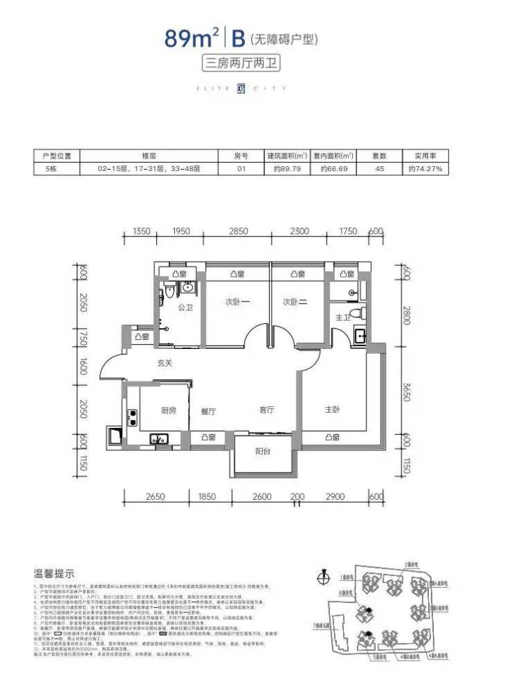
8月9日,光明住建局公示润珑苑配售通知公告,润珑苑本批次配售房源共315套,其中:建面约69㎡的两房户型共90套;建面约89㎡的三房户型225套(含45套无障碍住房)。配售均价为24294元/㎡,据悉,建面约69㎡两房总价约156万起,建面约89㎡3房总价约215万起,预计交付时间为2026年6月30日。
有意向的申请人可进入深圳市住房和建设局官方网站—政务服务—服务主题—住房保障服务—面向人才配售住房申请(“住房保障个人服务窗口”上方)填报申请信息,线上提交申请材料。
这也是润珑苑第三批取得预售许可的房源,加上期间剩余房源的配售,今年润珑苑共有4次发车。本批房源以三房为主,两房房源相对较少。

润珑苑还有1栋、2栋、6栋房源待配售,约1005套房源。从户型分布来看,5栋、6栋以89㎡三房为主,1栋、2栋以69㎡2房为主。

项目介绍:
润珑苑位于光明区凤凰街道东明大道以北,振发路以临近在建地铁13号线月亮路站。
润珑苑占地面积3.47万㎡,总建筑面积32.83万㎡,其中,可售型人才住房建面约20.45万㎡,共规划2705户。另容积率6.5,规划机动停车位2810个。
润珑苑共规划8栋住宅楼及1栋12班幼儿园,主推户型为建面约65-90㎡的2-3房,建面约65-70㎡共1906户、85-90㎡共799套。

润珑苑设计为围合式小区,小区规模尚可,整体而言舒适较高,根据公示的项目规划,小区除了5栋、6栋为四梯七户外,其余楼栋均为四梯八户。
户型图如下:
深圳购买可售型人才房的条件如下:

声明:本文由入驻焦点开放平台的作者撰写,除焦点官方账号外,观点仅代表作者本人,不代表焦点立场。


