1717亩!福田“大金沙片区”重建规划曝光.
扫描到手机,新闻随时看
扫一扫,用手机看文章
更加方便分享给朋友
来源:深圳地产通
原标题:【深圳“新旧改航母“】福田1717亩“大金沙”拆除重建
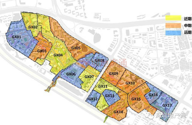
福田大金沙片区可改造区域主要包括四大城中村、三大工业区以及旧住宅区等十二个小功能区域。
其中,四大城中村即沙尾村、沙嘴村、上沙村和下沙村,三大工业区即上沙工业区、金地工业区和沙尾工业区,旧住宅区包括金地花园等。
大金沙片区可改造区域总占地面积为114.5公顷,现状总建筑量约为362.06万平方米。可搬迁总建筑面积约为343.28万平方米,其中:
下沙村70.62万平方米,
上沙村133.84万平方米,
沙嘴村36.47万平方米,
沙尾村38.76万平方米。
更新后,大金沙片区在总建筑面积中包含住宅350万平方米,产业商业办公面积412万平方米。

现 状


规划模式
以城市更新带动产业优化,大金沙在产业布局上将走出“产城一体化”发展之路。
立体规划小区设施,把道路、广场、街巷进行竖向分区实现人车分流,这是一大创新。
大金沙在改造规划中推出“高地广场”,即改变平面触地式的广场形态,依托大型建筑物修建净空式的空中聚集场地。高地广场分别位于面向滨海的两条景观廊道路上,在网络状的空中街巷两侧塑造高地平台广场。与高地广场相关联的还有“空中街巷”“屋桥”等。利用“空中街巷”,塑造鱼骨状活力轴带,并串联起地铁站点与主要公共空间。
开发地下空间,预留充足地下车位。规划总车位9.25万个,其中居住停车位3.85万个,商业办公5.4万个。
规划区居住总人口约13万人,教育设施包括1所初中、4所小学、10所幼儿园。医疗卫生设施将有7个社区健康服务中心。
轨道交通将成为该片区主要的出行方式,结合轨道站点分布,构建鱼骨状的慢行系统,同时建设零换乘的自行车存取点。
总体城市设计与节点规划











总体规划







声明:本文由入驻焦点开放平台的作者撰写,除焦点官方账号外,观点仅代表作者本人,不代表焦点立场。


