折后约355万/套起!宝安鸿荣源珈誉府将加推818套房源,开盘优惠曝光
扫描到手机,新闻随时看
扫一扫,用手机看文章
更加方便分享给朋友
鸿荣源珈誉府官宣7栋、8栋已获批预售许可证,本次共推出818套房源。

鸿荣源珈誉时尚花园本次共推出818套住宅,房源位于7栋一单元及二单元、8栋,主推户型为建面约76-105㎡3-4房,备案单价约5.05-6.14万/㎡,整体均价约5.5万/㎡,备案总价约383万-647万/套。
目前,鸿荣源珈誉府发布“已取证”宣传海报,宣传称折后单价最低4.65万/㎡起,总价354-597万/套之间,预计8月26日上线I深圳。(具体价格以深圳房地产信息平台最终公示为准)。
据透露,本次开盘的折扣优惠为,查档99折+冻资99折+开盘99折+认购96折+准签99折,整体综合约92折(具体以案场公示为准)。
7月8日鸿荣源珈誉府首批开盘,推出1401套房源,开盘当天卖出1183套,去化高达84.4%,是今年深圳单盘开盘售出套数最多的项目!如今时隔1个多月又推出第二批产品。
项目简介
鸿荣源奥特莱斯项目位于地铁11号线塘尾站,与华强城一路之隔,项目总建面达到130万㎡,规划住宅建筑面积约70万㎡平方米,商业、办公及旅馆业建筑面积约46万㎡,并配建一所63班九年制学校。
鸿荣源珈誉府分为8个地块进行开发,项目总货量近8000套,项目率先动工的04-12南地块1区,地块上盖共计9栋住宅,主推建面约75㎡、85㎡、93-95㎡、109㎡、150㎡、180㎡户型。除

项目部分户型图如下,目前样板间开放中,可预约看房。
【76㎡三房一卫】
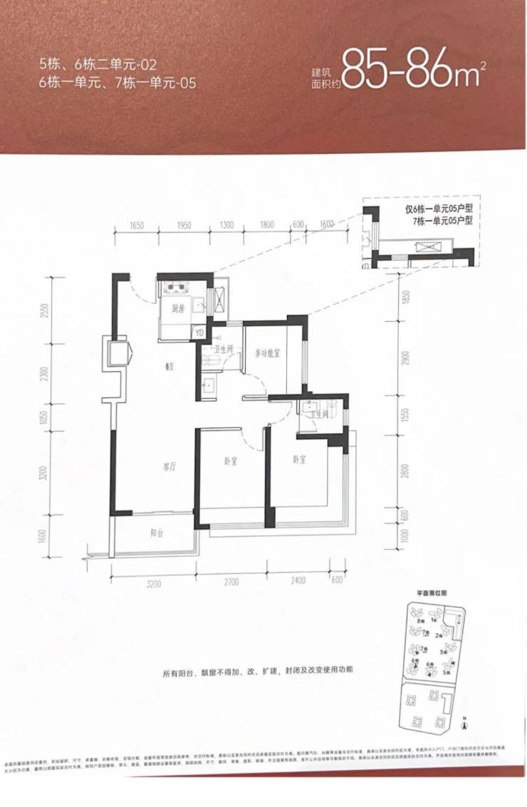
【85㎡三房两卫横厅】
【85㎡三房两卫竖厅】
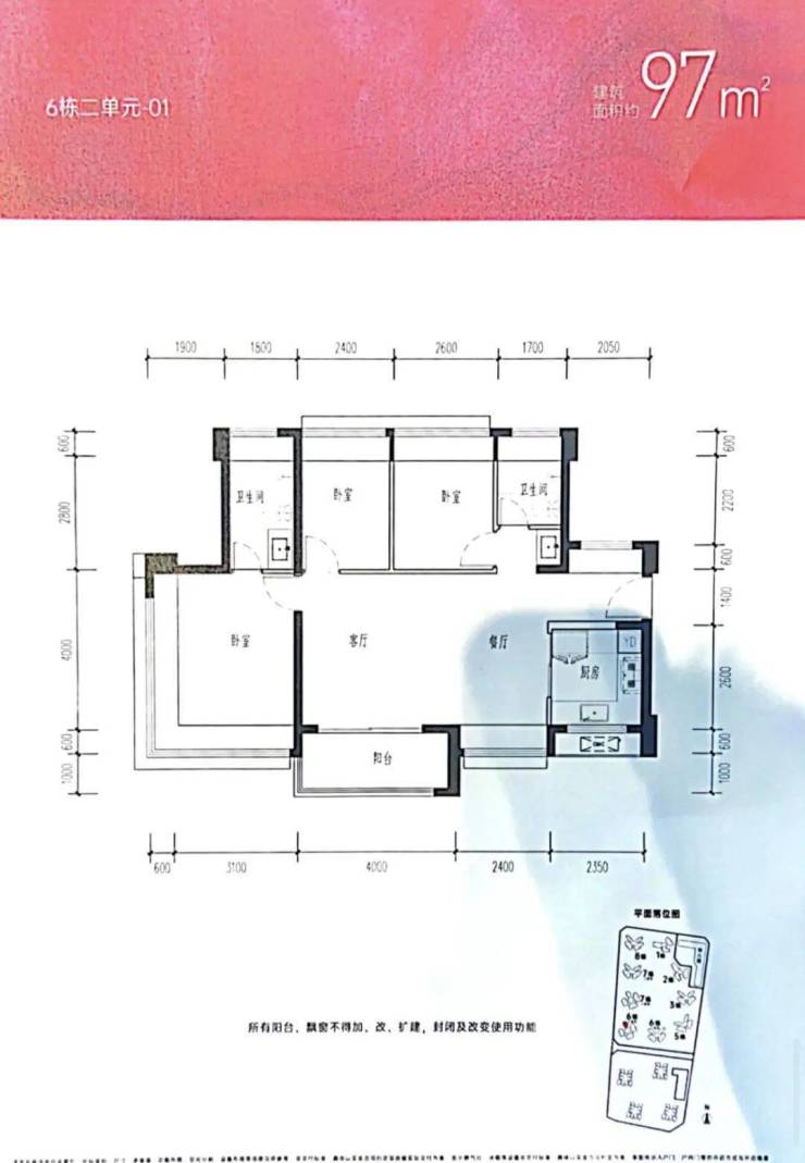
【97㎡三房两卫】
配套方面:
🚄交通配套:项目紧靠地铁11号线塘尾站,作为西部快线可快速通达宝安、南山、福田等核心区域。
🏢教育资源:项目配建有一所63班九年制学校及27班九年一贯制学校,还有36班高中,具体入学以当年区教育局划分为准。
🏬商业配套:项目自身规划有总建面约30万㎡的奥特莱斯商业,此外对面有华强城商业,一站地铁之隔还有万丰海岸城的商业配套。
声明:本文由入驻焦点开放平台的作者撰写,除焦点官方账号外,观点仅代表作者本人,不代表焦点立场。


