好消息,龙华多个旧改传来较新进展,看看有没有在你家附近...
扫描到手机,新闻随时看
扫一扫,用手机看文章
更加方便分享给朋友
日前,龙华区城市更新和土地整备局发布关于观澜街道君子布君新片区更新项目、大浪街道潭罗村片区更新项目的专规草案公示,以及大浪街道鸿发工业区更新项目实施主体确认的公示。
01
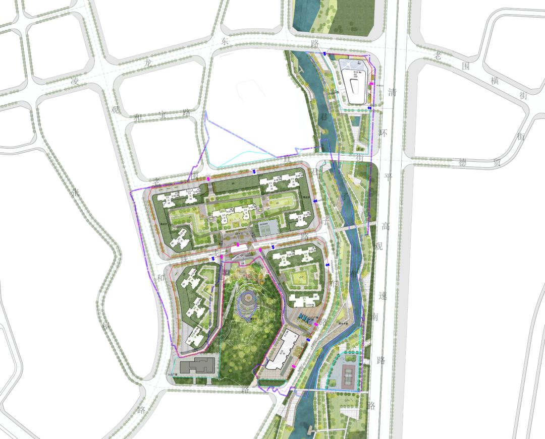
君子布君新片区城市更新单元
龙华区观澜街道君子布君新片区城市更新单元规划项目已列入《2015年深圳市城市更新单元计划第三批计划》,申报主体为深圳市锦泰长基房地产开发有限公司。
该项目位于龙华区观澜街道东部,紧邻城市主干路环观南路。更新单元用地面积102981.3㎡,拆除范围用地面积101043.3㎡,开发建设用地面积54922.4㎡,规划容积为324970㎡。通过城市更新拆迁工作,向政府无偿移交大量土地用于德风学校扩建、道路扩建、君子布河道治理等,土地移交率达45.6%。
其中,住宅266750㎡(含公共租赁住房23800㎡),商业、办公及旅馆业建筑43240㎡;
公共配套设施14980㎡(含幼儿园3900㎡、占地面积3600㎡、不少于12班,公交首末站4600㎡,社区健康服务中心1000㎡,老年人日间照料中心750㎡,文化活动室1000㎡,社区管理用房300㎡,社区警务室100㎡,社区服务中心400㎡,邮政所120㎡,环卫工人作息房10㎡,再生资源回收站60㎡,公共厕所60㎡,小型垃圾转运站200㎡,公共充电站700㎡,社区级公共配套用房1780㎡)。另配建社区体育活动场地占地面积1500㎡,物业服务用房按照《深圳经济特区物业管理条例》予以核定。

关于开发商

该项目申报主体为深圳市锦泰长基房地产开发有限公司,成立于2010年,是一家以城市更新为主,并逐步向物业投资、兴办实业等产业多元化发展的民营企业。公司主要推进深圳观澜城市更新项目。

02
潭罗村片区城市更新单元
潭罗村片区城市更新单元规划项目已列入《2017年深圳市城市更新单元计划龙华区第四批计划》。
项目位于龙华区大浪街道布龙路与华繁路交汇处东北侧。更新单元用地面积133459.4㎡,拆除范围用地面积为133437.9㎡,开发建设用地面积77678.8㎡,贡献率41.8%,规划容积为537355㎡。
其中,住宅366930㎡(含保障性住房 66040㎡),商业、办公及旅馆业建筑150000㎡,公共配套设施20425㎡(含12班幼儿园3900㎡、占地3600㎡,9班幼儿园3000㎡、占地2700㎡,公交首末站5000㎡,社区健康服务中心1000㎡,老年人日间照料中心1200㎡,文化活动室1500㎡,社区管理用房300㎡,社区警务室100㎡,党群服务中心(含便民服务站)850㎡,地下公共充电站1100㎡,社区级公共配套用房2475㎡)。另配建社区体育活动场地占地面积4000㎡,物业服务用房按照《深圳经济特区物业管理条例》予以核定。

关于开发商

项目申报主体为深圳市星广源房地产开发有限公司,查询工商信息获知,该公司为星河集团全资控股子公司。
星河控股集团成立于1988年,旗下现有地产、产业、商置、金融、物业等五大版块,业务涉及地产开发、城市更新、商业运营、酒店管理、物业服务、金融投资、产业运营等多元领域,已成为国内大型综合性投资集团,集团资产总规模超1000亿元。自2004年起涉足城市更新行业,属于最早涉足该行业的公司之一。现已完成开发的更新改造类项目主要包括有星河国际、星河盛世、星河传奇、星河银湖谷、星河天地、星河荣御、星河智荟等;
官方信息显示,星河集团已布局珠三角、长三角和中西部三大都市圈,开发面积累计超5000万㎡,土地储备面积逾3300万㎡。目前星河在深圳及周边共计运作50多个城市更新项目,其中有30多个已入市销售,累积更新面积超过1000万㎡,包括星河大靓花园旧改、星河新屯旧改、潭罗村片区旧改、光明大丰安片区旧改、稳健工业园旧改等。
03
鸿发工业区城市更新单元
龙华区大浪街道鸿发工业区城市更新单元列入《2016年深圳市城市更新单元计划排名前列批计划》,申报主体深圳市鸿万邦实业有限公司,2018年8月完成专规公告;现拟确认实施主体为深圳市鸿德丰投资发展有限公司,属于业主自改。
鸿发工业区城市更新项目位于龙华区大浪街道,西侧紧邻城市干道大浪南路,东侧紧邻城市支路新桥塘工业区二路(规划路名为正盈路)。
更新单元用地面积13956.4㎡,拆除用地面积13956.4㎡,开发建设用地面积10046.3㎡,计容建筑面积(含地下经营性建筑面积)45140㎡,容积率5.0。
其中,厂房(无污染生产)16120㎡,产业研发用房15480㎡(含创新型产业用房1860㎡),产业配套用房11480㎡(含配套商业2000㎡、配套宿舍9480㎡),公共配套设施2060㎡(含公交首末站1000㎡,社区级公共配套用房1000㎡,公共厕所60㎡)。
来源:深圳市城市更新网
声明:本文由入驻焦点开放平台的作者撰写,除焦点官方账号外,观点仅代表作者本人,不代表焦点立场。


