总套数666户,王母正龙花园项目规划公布
扫描到手机,新闻随时看
扫一扫,用手机看文章
更加方便分享给朋友
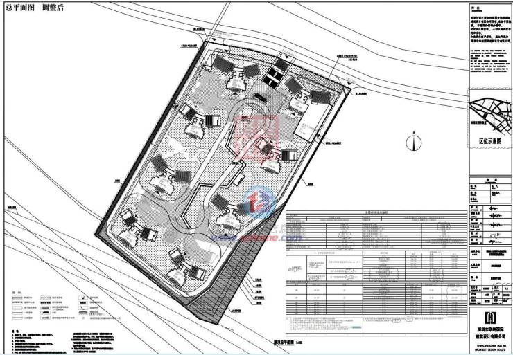
3月17日,大鹏公布了王母正龙花园项目《深圳市建设工程规划许可证》及总平面图的通告
王母正龙花园项目位于深圳市大鹏新区大鹏办事处王母社区G16501-8026号宗地,用地面积23948.07平方米,共8栋,允许建设规定建筑面积72254平方米,建筑功能为住宅、商业、文化活动室、物业服务用房、垃圾收集点、社区老年人日间照料中心。
经深圳市规划和自然资源局大鹏管理局审查,同意变更该宗地项目《深圳市建设工程规划许可证》[详见建字第 4403072025GG0057594(改1)号]。根据《中华人民共和国城乡规划法》第四十条及相关规定要求,现将本次审定的《深圳市建设工程规划许可证》及总平面图予以公布。
王母正龙花园项目位于深圳市大鹏新区坪西路北侧,项目总占地面积约2.39万平方米,总建筑面积101595.69平方米,其中地下室面积27625平方米,由8栋22层住宅组成,合同工期846日历天,计划2025年完工,合同造价约3.24亿元。
王母正龙花园是深圳市大鹏新区大鹏办事处涉及户数最多、面积最大的统建楼工程,设计总套数666套,规划居住人数约2500人,共惠及居民148户,是大鹏办事处重大民生项目。
来源:咚咚找房
声明:本文由入驻焦点开放平台的作者撰写,除焦点官方账号外,观点仅代表作者本人,不代表焦点立场。


