推337套119-175平户型,价格8字头?福田湾尚庭玺预计年中开盘
扫描到手机,新闻随时看
扫一扫,用手机看文章
更加方便分享给朋友
近日,家在深圳网友爆料,福田湾尚庭玺家园预计年中要开卖了,共376套住宅(含保障房),预计对外出售有337套住宅,户型为建筑面积约119-175㎡,价格估计8-9万/平。
该项目前身为水围旧改,分为南北地块。其中:
北地块湾尚庭玺住宅共376套,套内面积小于90平的302户,占比比例80.75%。
南地块湾尚骏玺住宅共321套,其中保障房150套,套内面积小于90平的319户;商品房171套,套内面积小于90平的169套,占比98.83%。
项目简介
湾尚庭玺骏玺家园原为水围村旧改,位于福田区福田街道,福强路和皇岗公园一街交汇处,距离地铁福民站约500-800米左右。总建筑面积近24万㎡,集住宅、商业等功能于一体的综合社区。
开发建设用地面积约2.4万㎡,计容建面约15.5万㎡,其中:
住宅7.3万㎡(含保障性住房9640㎡);
商业、办公及旅馆业建筑合计5.4万㎡;
商务公寓1.2万㎡(含人才公寓2370㎡);
公共配套设施1.6万㎡(9班幼儿园建筑面积3000㎡)。
项目主要由三个地块构成,分别是位于水围街和水围二街西南交汇处的01-01;福强路和皇岗公园街东北交汇处的02-01和02-02两地块。
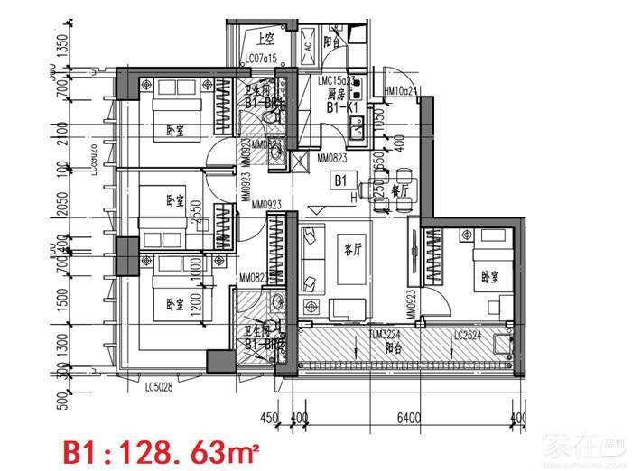
户型图
建筑面积约122㎡户型
建筑面积约123㎡户型
建筑面积约124㎡户型
建筑面积约128㎡户型
声明:本文由入驻焦点开放平台的作者撰写,除焦点官方账号外,观点仅代表作者本人,不代表焦点立场。


