与豪宅为邻,1公里内7条地铁线...这个可售型人才房真香!
扫描到手机,新闻随时看
扫一扫,用手机看文章
更加方便分享给朋友
近两年,深圳楼市可谓是可售保障房元年,除了当前热卖的安居型商品房、可售型人才房,马上又有配售型保障房来接棒。
由于安居房和人才房不在新批建设用地,未来可售保障房市场独留配售型保障房,以至不少在建的棚改、旧改类项目配建的保障房一时半会让购房者难以明确未来将以哪种物业类型配售,这其中就包括位于罗湖中心的船步街棚改建设的可售保障房项目,这个项目规划将建约1500套可售保障房,有不少自媒体猜测其已经变更为配售型保障房。
不过,近期罗湖城市更新和土地整备局公示的一则官方公告中心显示,船步街棚改在建的是出售型人才房,规划总建面108409㎡,规模不小。想要购入罗湖人才房的同学悬着的心终于可以放下了~(具体以项目最终配售公告为准)


罗湖船步街棚改棚改项目位于南湖街道,东至和平路,西临布吉河,南接滨河大道,北近嘉宾路。于2021年1月公示项目规划(草案)。

整个项目改造用的面积约10.7万㎡,开发建设用地约6.7万㎡,整体容积率8.9,规划容积建面约59.5万㎡。其中,住宅约39.7万㎡(除还迁住宅外其余均为人才住房),商业、办公及旅馆业建筑17.8万㎡及约1.94万㎡的公共配套设施(含21班幼儿园)、社区活动体育活动场地4000㎡。

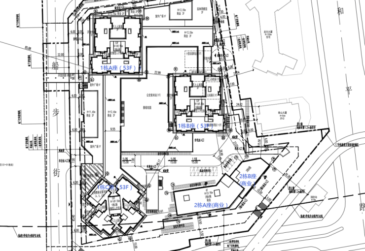
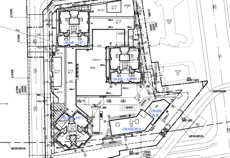
从船步街棚改项目地块划分来看,共有11个小地块组成,其中主要由01-01、02-01两宗二类住宅+商业用地和A-01一宗教育设施用地组成。
这两宗宅地中,左侧01-01地块主要以回迁房为主,可售型人才房在右侧的02-01地块。
下面我们重点来看看将配售的02-01地块的人才房项目。
船步街棚改人才房项目占地面积约2万㎡,总建面约18.6万㎡,容积率6.78,计容建面约13.3万㎡。其中,出售型人才住宅总建面约10.8万㎡,商业0.8万㎡,另有少量回迁住房、土地整备安置用房,规划机动停车位1486个。

项目共由1栋3单元的超高层楼体及1栋商业楼组成。根据对公示的草案规划图和最新的总平面图来看,楼体的高度从原规划的66F调整至53F,原规划在本地地块的写字楼调整“出局”了,紧靠春风路高架桥一侧的那栋楼规划为商业。该地块建成比较纯粹的的人才房小区和商业。

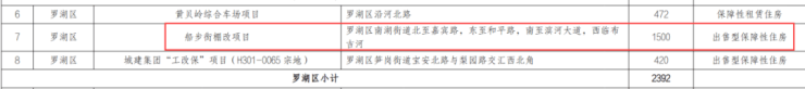
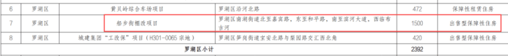
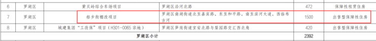
船步街棚改项目人才房能提供多少套可售人才房项目呢,早在《深圳市住房发展2023年度实施计划》就有公示,届时将配售1500套房源人才房房源。


日前,@血拼深圳楼市 前往船步街棚改项目现场实探,发现项目目前多地块联合施工中,现在正在积极施工中。
其中,人才房地块已经在进行基坑作业、桩基作业,在做地下室车库阶段,回迁房、教育用地在平整土地、打桩阶段。工程计划竣工时间2025年12月。

如果项目施工进度快的话,预计年底或者2025年上半年配售,关注罗湖人才房置业可以盯紧了。
毕竟,船步街棚改项目的地段位置优势相当突出。

船步街棚改项目地处罗湖蔡屋围商圈,蔡屋围商圈是深圳商圈界的“老大哥”,汇聚了深圳早期最完善、最尖端商业、市政配套。

在船步街棚改项目直线距离1公里范围内有罗湖火车站、罗湖口岸、深圳大剧院、地王大厦、京基100、万象城等,在这里可以说是能享受比较全面的生活。临近有幸福里、中海天钻等区域标杆豪宅楼盘,地段品质可见一斑。
地铁方面,船步街棚改项目位于地铁9号线鹿丹村、人民南站之间,距离两个地铁口之间的不行距离分别在500米、400米左右。在紧邻项目的和平路上,在建有地铁17号线嘉宾站,未来属于三地铁口物业,直线距离1公里范围内还有地铁1号线、3号线、2/8号线、在建11号线二期(红岭南站)、5号线西延线。轨道覆盖密度颇高,未来通达全城也是十分便捷。
除此之外,自驾方面紧靠滨河大道、深南大道、出行上直线距离仅700米左右有深圳火车站、罗湖口岸,无论是自驾通达全城或是过港、通往全国也十分方面。
商业配套方面,也是十分成熟。高端消费一路之隔有万象城,稍远步行可达的国贸、金光华广场及京基100综合商业,接地气的东门商业也在直线1公里范围内。强大的商业配套,消费可不要太方便了。
教育方面,船步街棚改项目现阶段所处学区小学学区为翠竹教育集团滨河小学和翠竹教育集团罗湖小学,初中学区为桂园教育集团罗湖中学、滨河实验中学,同项目也将新建九年制义务学校,未来具体的学区划分以当年区教育局最终公示为准。
综合来说,船步街棚改项目在罗湖的位置是无可挑剔的,不过呢,项目整体而言社区公共活动空间较小,属于超高层产品且紧邻主干道、高架桥,整体舒适度可能会略有影响。
当然后期还需看项目的户型设计布局,让我们一起期待一下吧。
声明:本文由入驻焦点开放平台的作者撰写,除焦点官方账号外,观点仅代表作者本人,不代表焦点立场。


