“千人抢房”场面再现!深圳又一个日光盘即将登场
扫描到手机,新闻随时看
扫一扫,用手机看文章
更加方便分享给朋友
“千人抢房”场面再现,深圳又一个“日光盘”即将诞生!
368套房源,1587批客户冻资!龙华红盘中建壹品·湖北文旅·鹏宸云筑(下文称鹏宸云筑)公示了诚意登记名册,相当约4批客户抢1套房!
鹏宸云筑首推3栋、5栋368套湖山美宅,产品为建面约80-124㎡的2-3房,备案价约6万/㎡,开盘惊喜优惠88折,折后均价仅5.3万/㎡,带品质装修交付!

鹏宸云筑究竟有什么样的魅力,让无数挑剔的买房人纷至沓来?
在当前市场环境,能被购房者普遍认可的热盘(尤其是日光盘),都具有这两个共性:一是核心地段的稀缺产品,如今年福田香蜜湖、龙华深高北片区的新盘;二是超高性价比的产品,如光明凤凰城、龙岗大运中心的热盘。
作为今年深圳预定的第五个日光盘,鹏宸云筑是今年龙华梅林关唯一一个预售入市的纯新盘,稀缺性自然无需多言。
而其高性价比的产品:超靓的户型设计、突出的价格优势、独特的社区风格,可以说,在当前的市场上没有对手。
这也正是TA能圈粉无数的主要优势!
01
超靓+全向阳设计
户型“进化”到next level
优秀的居品向来格外抢手。
毫不夸张的说,大部分的准业主倾心于鹏宸云筑,始于TA超靓的户型!
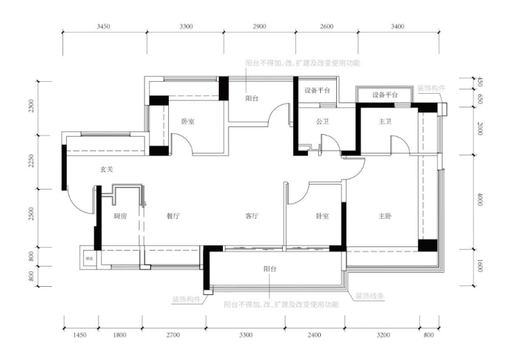
鹏宸云筑有建面约81/91/105/124㎡4个面积段可选,覆盖刚需上车、改善置业全维需求。其中,建面约81/91㎡的户型为经典竖厅设计,建面约105/124㎡的户型为阔绰横厅布局。
建面约81㎡2房2卫(A户型)是项目推售面积最小的户型,也是价格最亲民的产品,但设计却不失大气。
细说起来,本户型有5大亮点。
🔺尺度开阔
客厅开间达3.4米,这在小面积段户型中非常少见;阳台进深达1.6米,动区生活空间LDK-B一体化设计,加大公区采光面的同时,视觉感观更阔绰。
🔺双阳台、多飘窗
双阳台、多飘窗的设计,飘窗进深达80公分,其中,主卧、次卧均有270°双飘窗设计;厨房带飘窗,更进一步提升户型使用率。
🔺双卫一步到位
市面上小户型能做到双卫设计的产品相对较少,而该项目81㎡做到2卫,大大满足了刚需客户的空间使用需求。
🔺收纳功能强大
设计巧妙地预留了鞋柜和冰箱位,确保了收纳空间的有序与高效。客厅的进深达到4.35米,为业主规划了舒适的会客区域。
🔺灵动的可成长户型
户型室内的承重墙不多,可以根据家庭需求进行调整空间。

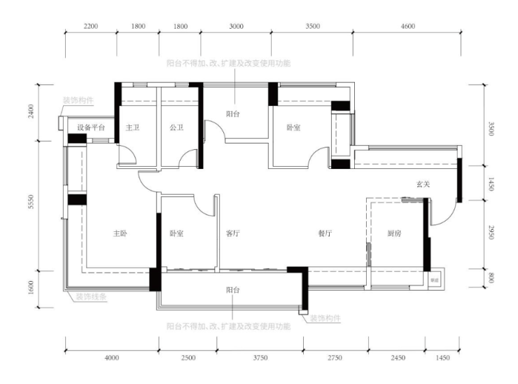
如果预算宽裕一些,可以考虑建面约91㎡的B户型。
该户型是建面81㎡户型的PLUS版,各生活功能区更为阔绰。
值得注意的是,91㎡比81㎡更具“成长性”,如开阔的餐厅空间,可根据家庭生活需要隔断或布置成书房,或者儿童玩乐空间。

对户型尺度要求更高的购房者,可以重点关注建面约105㎡(C户型)和124㎡(D户型)的产品。
这两个户型的格局相似,建面约124㎡的户型是105㎡户型的PLUS版。
这两个户型同样有5大亮点。
🔺独门独户私密性好
这两个改善户型在属于独门独户设计,相对而言,独立的入户空间能更好的保障业主生活的私密性。
🔺开阔的玄关空间
从独立入户进门,进深80公分的超长玄关飘窗(105㎡长3.45米、124㎡长4.6米),显得空间特别透亮开阔。这个空间业主可随心安排,做收纳或是布置一处入户小花园。
🔺双阳台,双面采光通透对流
户型设计为双阳台布局的对流空间,阔景景观阳台(105㎡开间约5.7米、124㎡开间约6.25米)空间感十足,且户型采光通透性更好。
🔺多飘窗
该户型共设计了多处飘窗,包括厨房、餐厅、卧室、卫浴、玄关等空间均带有飘窗,户型的使用率得到进一步提升。其中,主卧、次卧均有270°的“L”型飘窗。
🔺灵动的“可成长”空间
想要这么大的面积但不需要这么多房间,户型也可以实现灵活布局。例如,客厅和次卧之间是非承重墙,可以打通加大客厅的空间,或者随心安排做其他布置。
图| 建面约105㎡户型图


熟悉楼市的购房者都清楚,房产证上的户型面积计算,飘窗不计面积,阳台面积是一半计入。
而鹏宸云筑的户型设计,善用飘窗和阳台,大大增加了业主的实际使用空间;各功能间开阔的采光面,为业主打造户户向阳的优质居所。
可以说,在当前的市场上,鹏宸云筑的户型已经进化到next level。
02
折后均价5.3万/㎡入手梅林关
倒挂1万/㎡+的超高性价比之选
被鹏宸云筑优质户型所吸引的购房者,看到价格后,更是毫不犹豫的选择买入!
毕竟,当前市场上,核心地段的高性价比产品太少了。
鹏宸云筑备案价约6万/㎡,折后均价仅5.3万/㎡,带品质装修交付。其中,大户型带一线品牌精装,小户型全屋柜体交付(具体以合同约定为准)。
这个价格性价比有多高?项目不仅有低于市场预期的惊喜开盘价,与片区内次新二手房相比,价格优势更为明显。
在深圳中轴核心的梅林关片区内,次新二手房房价在普遍7-8万/㎡,而均价仅5.3万/㎡的鹏宸云筑,与其对比倒挂空间保守超过1万/㎡!
比如,与项目临近的万科深国际和颂轩小区,目前二手房挂牌均价在7.3万/㎡左右。
图|源于贝壳找房
同板块的龙光玖龙玺,表现更为强劲。据二手房平台显示,当前小区二手房挂牌均价8.9万/㎡,11月的成交均价在7.8万/㎡。
就最新成交价来看,与鹏宸云筑的均价价差高达2.5万/㎡!
据行舟深房数据,11月龙光玖龙玺共成交3套二手房,分别82㎡的3房总价615万、89㎡的4房总价735万、114㎡的4房总价885万。
与上述3套成交户型建面相近的产品,鹏宸云筑户型折后总价与龙光玖龙玺的二手房成交总价价差最高超200万!
鹏宸云筑的折后总价区间如下:
建面约81㎡2房2卫,折后区间397-452万;
建面约91㎡2房2卫,折后区间449-490万;
建面约105㎡3房2卫,折后区间519-597万;
建面约124㎡3房2卫,折后区间644-670万。
如此看来,鹏宸云筑诚意满满的定价,绝对是购房者入住深圳中轴核心区不容错过的超值入场券!
那鹏宸云筑各产品对比,有没有最优选呢?
先来看看各户型的价格表。通过项目总价分布表对比不难发现,3栋、5栋部分同户型产品存在一定的价差。
比如,5栋03户型比3栋03户型(81㎡)便宜30万左右;
而同为105㎡的产品,5栋06户型比3栋01户型最高便宜40-60万不等!
再来看看楼栋落座。项目本批首推的3栋、5栋,在小区的落座如下图:3栋在小区边位,东侧挨华南路,5栋位于小区中心位置。
相对来说,5栋不临交通干道,更加静谧;小区中心位置园林景观视角更优,宜居性更高。
03
古韵与现代艺术糅合
打造独具特色的岭南美学
近年来,全国掀起以中式审美为特色的“国潮风”,国潮元素的产品出现在各行各业。如今,“国潮风”也吹进了深圳楼市。
鹏宸云筑由中建壹品和湖北文旅强强联手开发,一个拥有世界级房屋建造技术,一个擅长筑景为家。两大国匠发挥专长,将古韵和现代艺术糅合,创新匠造现代新中式设计风格,给深圳人带来了独具岭南美学的诗意人文空间。
不同于其他小区千篇一律的设计,鹏宸云筑的新中式风格园林着实让人眼前一亮。
🔴现代豪宅化立面,简雅轻奢
鹏宸云筑的楼体外立面采用现代简约的玻璃幕墙,品质比肩深圳湾豪宅立面。
🔴龙华首个岭南美学主题园林,独具韵味
鹏宸云筑将古朴的金属搭配通透的现代材料,将现代高奢和岭南复古元素相结合,为深圳人呈现出轻盈通透、大气精美的岭南园林。
鹏宸云筑的园林以“岭南风尚,山水雅集”的设计理念,借鉴可园,打造了一轴一环八境的“岭南胜景,鹏宸八境”新岭南风格园林景观。飞虹桥—叠水瀑布—林下步梯—临风亭依次排布,一步一景,让业主感受多重景观的优质生活体验。
同时,项目在设计中充分考虑到了儿童玩乐的需求,打造了独具岭南文化的“醒狮少年”主题的儿童乐园。
喜欢古风摄影的年轻业主,下楼随时随地就可以拍出绝美国风大片。

看过鹏宸云筑,不得不佩服开发商精准把控了购房者所追求的品质生活,将每个年龄层次的舒居需求都考虑到位,喜欢恢弘大气的、或是轻奢简约的、或是古典国风的,都能在鹏宸云筑得到共鸣。
当然,百闻不如一见,强烈推荐各位购房者去项目现场感受那份岭南神韵之美。
项目将于12月14日本周六盛大开盘,让我们期待超千人抢房的盛况再现!
见证2024年深圳又一个“日光盘”的诞生!
声明:本文由入驻焦点开放平台的作者撰写,除焦点官方账号外,观点仅代表作者本人,不代表焦点立场。


