前海云海湾花园发布声明,正处于销售筹备期!“减配”为不实信息
扫描到手机,新闻随时看
扫一扫,用手机看文章
更加方便分享给朋友
5月28日,位于前海的深业云海湾花园发布不实信息严正声明。
声明称,项目启动销售宣传后,有个别单位和个人通过网络平台等方式发布本项目不实信息。发布本项目疑似“减配”、“造价成本低”等不实信息,并通过标题诱导、内容炒作误导公众,已对本项目的声誉产生严重负面影响。
声明表示,项目正处于销售筹备期,普通商品住房毛坯均价为9.2万/平,具体预售价以审批及公示为准;
项目不存在“内部认购”、“优先选房”等情况。
云海湾项目此前已开放展示中心,根据声明,应该快要入市了,目前已经处于销售筹备期。
项目共8栋住宅,总1141套住宅房源,其中5栋为商品房共637套,其余3栋均为人才房504套,主打户型为:约106-108-115-143-180㎡ 3-4+1房。
深业云海湾位于桂湾片区三开发单元03街坊,项目用地于2021年11月25日深圳三轮土拍中,由“深业+盐田人才安居”联合体以总价86.6亿元竞得,与天健集团拿下的前海T201-0157宗地相邻。
商品住宅限售均价9.2万/㎡,人才房最高限售5.8万/㎡,均为毛坯价格。
项目土地面积为51350.36㎡,建面为210040㎡。其中容积率总建筑面积不超过210040㎡,其中住宅190000㎡、商业10000㎡、公共配套设施10040㎡。
交通配套方面,最近地铁为15 、11号线,前方站直线距离1公里,地图显示所需约16分钟,此外开车前往各区都比较便捷。
商业配套方面,项目自带1万平商业,周边多为开发建设项目,商业配套相对缺乏,日常购物需求可前往龙海商业广场,地图显示,步行距离约为1.2公里左右,也可步行华润前海万象城距离1.6公里,所需时间约为18分钟左右。此外,可前往前海壹方城,自驾车辆约为10分左右。
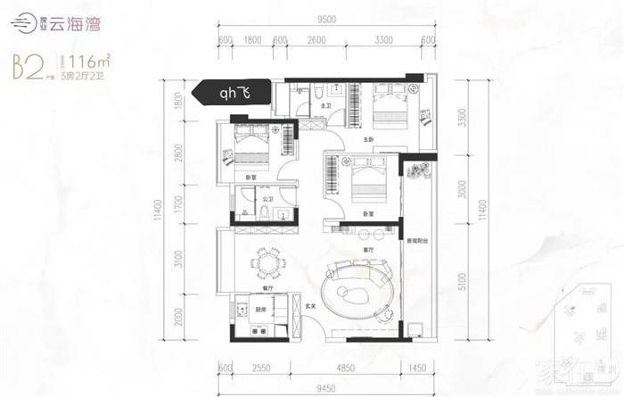
附户型图:
A1户型106平3房2厅2卫
A2户型108平的3房2厅2卫
B1竖厅116平的3房2厅2卫
B3横厅116平3房2厅2卫
B2横厅南北通透,116平3房2厅2卫
C户型143平的4房2厅2卫
183平的4+1房2厅3卫
来源:深圳房地产信息网
声明:本文由入驻焦点开放平台的作者撰写,除焦点官方账号外,观点仅代表作者本人,不代表焦点立场。


