金华燕花园108平现代简约风格装修设计案例
扫描到手机,新闻随时看
扫一扫,用手机看文章
更加方便分享给朋友
1. 基本信息
项目地址:深圳市福田区
户型: 4 室 2 厅
装修风格:现代简约风格
项目面积:108平
兴趣爱好:喝茶看书看电影,需要投影仪家庭影院
常住人口:三口之家
2.预 算
设计费:¥32400
施工费:¥160000(半包)
3.设计故事
该业主是之前业主介绍过来的,对设计要求比较高比较看重效果,平面方案碰了两次确认敲定,设计汇报一次通过比较满意。因家里有施工队,施工这块一直犹豫不定,最后看过我们几个工地之后选择了我们。
4. 设计亮点
房间和卫生间空间都比较紧凑,通过划分其他空间使卫生间和房间满足日常需求。
厨房异形离餐厅比较远,直接把原来卧室跟厨房位置调换。
过道和入户区域光线较暗,厨房做成玻璃隔断,房间做成玻璃推拉门引进光线。
【原始结构图】
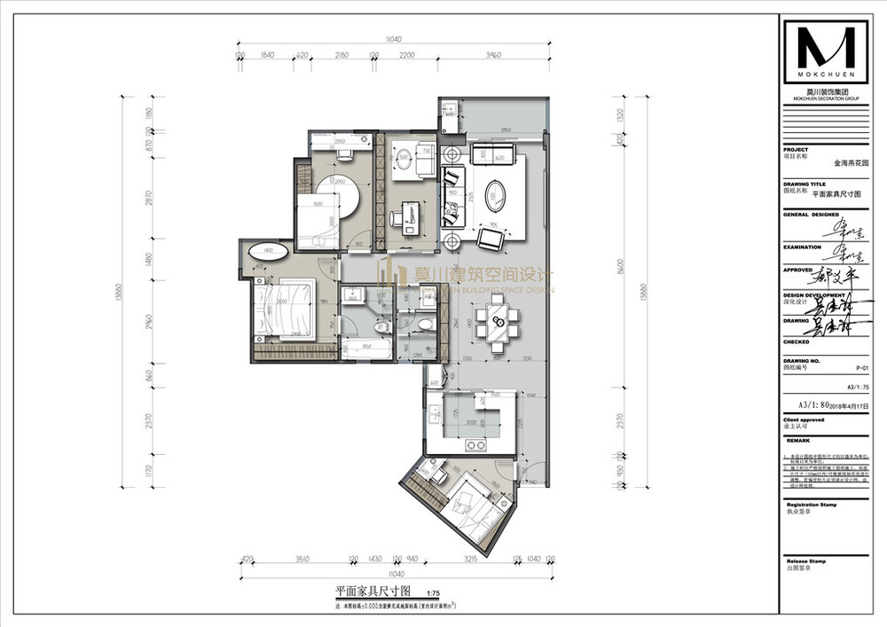
【平面布置图】
4.区域空间
【客餐厅】
厨房和原房间对调,与客餐厅连接,半开放厨房非常大气,整体更加开阔,厨房使用时关闭推拉门,不使用时打开与客餐厅成为一体,厨房上方梁位和客餐厅梁位整体连接成L形做一条天花走边更加整体美观。
【主卧】
主卧保留L形窗户,较大化保留采光通风,衣柜把斜角包进去更加方正美观,因主卧空间较局促,衣柜门采用玻璃推拉门使空间延伸不会显得压抑。
【小孩房】
【次卧】
【书房】
【卫生间】
【阳台】
声明:本文由入驻焦点开放平台的作者撰写,除焦点官方账号外,观点仅代表作者本人,不代表焦点立场。
