效果图曝光!港中大(深圳)医学院规划来了,总建面达55万平
扫描到手机,新闻随时看
扫一扫,用手机看文章
更加方便分享给朋友
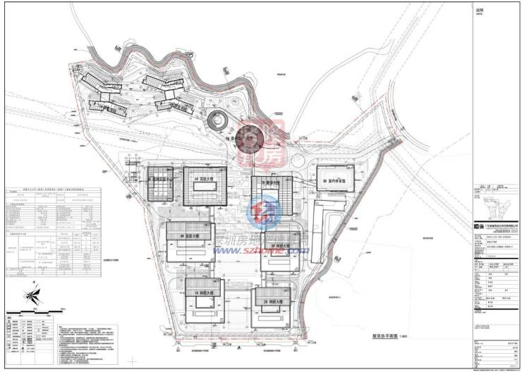
近日,11月4日,香港中文大学(深圳)医学院项目南园总平面图对外公告。
根据规划显示,港中大(深圳)医学院项目(南园)总建面约41万平,计容建面约33万平,主要建筑为教育及辅助用房,宿舍等。
此项目选址龙岗区国际大学园内,可研批复为招生规模6000人,总建筑面积为551918平方米,主要建设内容为教室、实验实习用房、图书馆、室内体育用房等。
香港中文大学(深圳)医学院是深圳市“十四五”规划期间建设的重要民生工程,项目位于龙岗区国际大学园。校园主要建设内容包括教学楼、科研实验楼、图书馆和行政楼、室内体育馆、学生书院等。
今年初,深圳建筑工务署发布了香港中文大学(深圳)医学院项目的设计方案。
此设计由广东省建筑设计研究院有限公司/gmp International GmbH/筑博设计股份有限公司/HKS Architects完成。
△项目俯瞰图
设计尊重自然,合理利用地形,通过建筑与山水的融合,校园空间由城市向自然逐渐过渡,打造和谐共生的生态校园;利用廊道串联建筑单体,化零为整,促进校园公共交往,塑造脉络相连的有机校园;将科技、智慧、绿色的理念融入项目设计全过程,采用多种低碳措施,创造绿色低碳的山水校园。
绿色低碳设计
由于项目位于深圳市重点区域建设片区,根据《深圳市重点区域建设工程设计导则》相关要求并结合项目实际情况,项目绿建星级按楼栋设置如下:1-7栋(科研楼、实验楼、教学楼)、9栋图书馆和行政楼、18栋科研大楼按照绿色建筑三星级进行设计;8栋室内体育馆、10-17栋学生书院、教师宿舍按照绿色建筑二星级进行设计。作为整个项目的焦点,9栋图书馆和行政楼以近零碳建筑作为目标进行设计。
校园建筑整体采用多种绿色低碳策略,按照“被动优先、主动优化”的设计原则,重点运用低能耗围护结构选型、可控自然通风设计、校园热环境评价技术等被动式设计手法,结合高效机组及节能设备、校园智能化综合服务系统、水资源综合利用、绿色建材及绿色产品等主动式技术手段,以及光储系统、太阳能光热等可再生能源综合利用系统,将绿色低碳理念融入设计建造的多个维度。
△项目采用的绿色低碳策略
提升围护结构热工性能
科研大楼屋面采用遮阳格栅和保温隔热材料跟反射隔热涂料,不仅对屋面起到了隔热效果,也对第五立面进行美化;立面虚实结合,彩色格栅不仅作为遮阳构件,也活跃了校园氛围,透明围护结构部分采用Low-E中空玻璃,有效降低传热系数,提升隔热效果。
△南园沿国际大学园路效果图
2. 可控自然通风设计
场地设计注重岭南气候特点,建筑底层架空及庭院式布局,体现良好的风向引导、微气候调节作用;优先利用平面布局,呼应场地室外风环境,在楼栋中庭形成拔风效应,促进大中庭过渡季的自然通风;在部分教室、办公室等小空间区域优先利用室内三联控系统,从单一的纯空调系统发展为通过“自然通风+机械通风”“机械通风+空调通风”两项系统来控制和调节室内环境,逐步走向更轻盈更低碳的活动方式。
3. 校园热环境评价
基于WBGT热环境评价体系,对项目室外环境的热安全和热舒适性进行模拟评估。校园的中央山水绿化中轴结合两侧骑楼柱廊,外部生态环境结合建筑灰空间对热浪加以过渡,促进整个校园与生态环境和谐共生。
△山水绿化中轴两侧灰空间
4. 绿色环保建材及绿色产品
项目整体优选绿色建材、可再循环材料、高强度建材,不仅有助于绿色建筑品质的提升,也有助于降低建材生产运输阶段隐含碳排放。
△绿色建材减少碳排放
5. 太阳能综合利用系统
项目在7栋教学大楼、9栋图书馆和行政楼、13-15栋学生书院、18栋科研大楼屋面铺设光伏组件,并设置了光储充一体化系统、光储直柔系统、太阳能热水系统,综合利用太阳能资源。
在7栋教学大楼、18栋科研大楼屋面设置光伏发电,光伏发电接入变压器后,将优先供给该变压器下端负载白天使用,多余电量将储存后应用于充电桩。
同时在9栋图书馆和行政楼屋面利用屋面光伏建筑一体化设计(BIPV),实现了建筑与电网的友好互动,产生了较好的经济效益。
6. 校园智能化综合服务系统
项目南北园楼宇智能化系统集中控制建筑设备,最大程度地提高了建筑内部品质和舒适度;智慧校园平台采用模块化中台和校园可视化操作系统,降低资源需求和运营成本。
7. 高效机组及节能设备
根据校园建筑分布广泛、功能多样的特点,选用高性能暖通机组,照明产品、变压器、水泵、风机等设备均满足国家现行有关标准的节能评价值2级的要求,降低项目运行过程中设备的能耗。
8. 水资源综合利用
校园整体对水资源进行综合利用,根据场地高差及地理位置特殊性设置雨水回用系统,同时采用节水器具、节水灌溉等,降低运行水耗。
△水资源综合利用系统示意
设计从能源低碳化、建筑低碳化、碳管理平台等三大方面实现图书馆和行政楼“近零碳”建筑设计目标。
能源低碳化
本建筑在屋面采用了太阳能光伏建筑一体化技术(BIPV),将太阳能光伏组件作为建筑部品集成到屋面天窗非采光区域,实现了发电和遮阳共举,尽最大可能利用屋顶空间,同时改善了中庭大面积天窗带来的热辐射。配合采用光储系统及直流供电设备,所发电量就地消纳,打造真正自发自用、具有负荷调节能力的光储直柔建筑。
2. 建筑低碳化
该部分主要为兼顾室内环境健康舒适的被动式建筑设计。
室内外舒适性自然通风
基于室内温度场均匀度、人员长期停留空间舒适性的考虑,利用内部中庭热压通风,结合屋面天窗开启扇,创造由外向内、由下而上自然流动的风环境,提高整栋建筑内部气流舒适性,并在过渡季减少制冷通风能耗。
图书馆室内建筑外区由有韵律感的锯齿状外立面包围,利用外立面表皮设置规律分布的采光窗,同时形成建筑自遮阳,与建筑功能的单元式自习桌充分结合,提供了均匀有效的室内光环境。
△图书馆立面遮阳
图书馆通高中庭的采光由天窗提供,圆形天窗采用阶梯状环形分布,设置高侧窗,将自然光温柔地漫反射至中庭螺旋楼梯及周边区域,有效避免了大面积透明天窗带来的过热及眩光问题。
因为校园位于夏热冬暖气候区,在夏季、过渡季,室内环境的校园热舒适性需求较高,会给空调制冷带来较大的压力,空调制冷能耗也成为整体校园运营能耗的主要构成部分。热环境独立调节系统技术充分融入校园的岭南传统建筑设计构思,根据空间尺度不同分别设置机械调风装置,从单一的纯空调制冷送风系统发展为机械调风—空调制冷送风相结合,调节室内局部热环境。
智能采光调光控制技术
整体科研、教学楼栋天然采光区域人工照明灯具随采光照度实时调节。根据室内照度自动调节室内照明强度,实现照明系统动态启停,降低照明能耗。
3. 碳监测管理平台
碳监测管理平台提供了一个集中的数据管理系统,使得碳排放数据更加透明和可追溯。这有助于清晰地了解排放源,实时监测建筑内部碳排放水平,通过精确的碳排放数据量化环境影响,对建筑全生命周期的节能进行管控,同时帮助识别节能减排的潜在机会,制定有效的减排措施,并监测这些措施的实施效果,为制定减排目标和更新迭代技术策略提供依据。
香港中文大学(深圳)医学院从校园规划出发,自上而下充分融入绿色低碳理念;因地制宜,结合科技手段进行富有岭南特色的设计创新;采取系统性绿色低碳措施,使医学院校园与周边环境和谐共生,为医学院师生提供良好的学习、科研环境,创建更利于身心健康发展的活力校园,致力成为绿色低碳校园的典范。
来源:咚咚找房
声明:本文由入驻焦点开放平台的作者撰写,除焦点官方账号外,观点仅代表作者本人,不代表焦点立场。


