南山安居房认购名单公示 3640套房源共369批家庭入围
扫描到手机,新闻随时看
扫一扫,用手机看文章
更加方便分享给朋友
南山安居房山樾湾本批配售共369户家庭入围。
日前,南山住建局公示山樾湾〔2025〕014号批次配售审查结果,本批共有387户家庭认购,最终369户家庭合格入围。

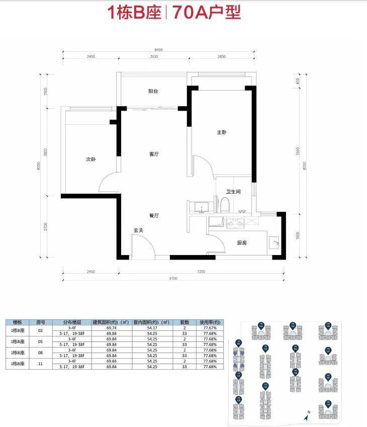
山樾湾本批配售3640套安居房,其中建面约70㎡的2房共2742套、建面约90㎡的3房共898套,配售均价约42640元/㎡。
项目简介
山樾湾花园位于前海妈湾片区,紧邻月亮湾大道,项目距离在建的地铁15号线西部物流站约890米(地图测距)。
项目用地面积约6万㎡,总建筑面积约58万㎡,共13栋塔楼,房源总数4900套,为纯安居型商品房,户型约70-90㎡2-3房。
项目70㎡的户型主要有经典竖厅和双龙抱珠两种格局可选;90㎡则均为普通竖厅格局。部分户型图展示如下:
山樾湾花园作为大社区,山樾湾花园小区内部配套有商业、泳池、园林等,整体的设施较为齐全,同时整体的区位,外部配套(小南山),轨交等各方面也都较为优异。
但项目周边有高架桥、码头,会有噪音污染,同时目前货柜车较多,路面灰尘较大。
声明:本文由入驻焦点开放平台的作者撰写,除焦点官方账号外,观点仅代表作者本人,不代表焦点立场。


