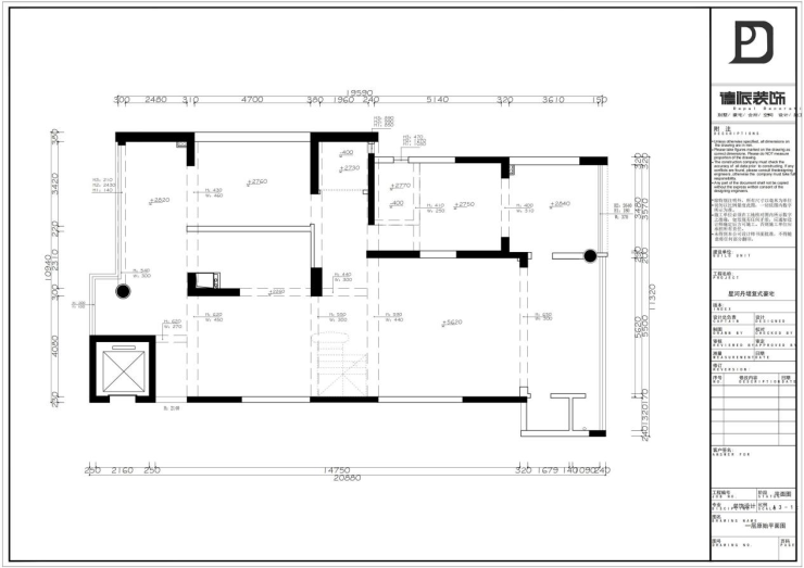
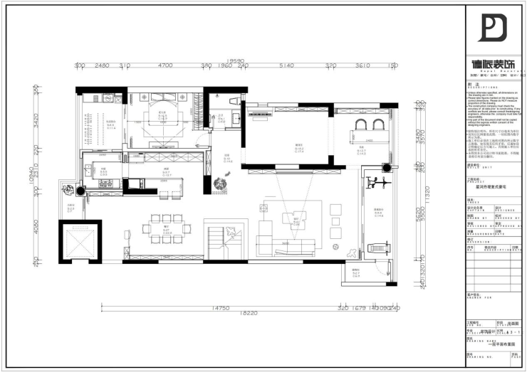
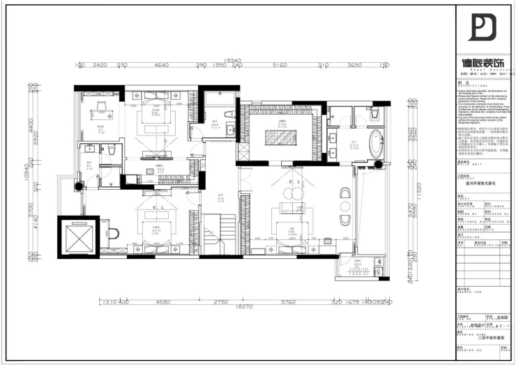
深圳星河丹堤,复式装修案例,户型图500平,现代轻奢风格
扫描到手机,新闻随时看
扫一扫,用手机看文章
更加方便分享给朋友

项目地点:星河丹堤
项目地点:深圳市龙华区
项目面积:500㎡
风格定位:现代轻奢风格
服务模式:一站式整装
整装团队:德派装饰&君尚软装&摩洛卡家居
设计理念
本案是一套面积为500平米的复式住宅,设计强调简洁、明晰的线条和优雅、得体有度的装饰。在硬装方面做减法,家具软装轻巧精致加以金属元素点缀,令整个空间更有层次,色调选用一些中性色,高级灰的运用使整个空间更加时尚高级,营造出温馨舒适的感觉。







客厅空间的米灰底色低调温暖,张弛有度,浅灰色大理石纹的地面提升了空间的整体质感。利落的线条搭配上舒适的软装,开阔的空间为整个设计带来自由闲适的感觉。
灰白色沙发搭配黑色玻璃组合茶几,沉稳大气,中和空间的清冷气质,蓝色单人沙发椅点缀其中,优雅绅士,高雅又耐看。

电视背景墙用石材与金属走边的护墙拼接来彰显空间的层次感,内嵌的金属柜每件装饰物都若有若无的展示着美感。

精致的生活源于对细节的执着,餐厅的设计结合了金属、皮质与大理石。简洁优雅的造型、奢华的材质拼接出一个优雅的就餐环境。
餐厅选择长的石材餐桌,既可以容纳一家人用餐的欢声笑语,也可以兼具夫妻二人的浪漫小资。餐桌椅用少量的金属材质点缀,凸显奢华质感且低调。
餐边柜区域重金属的质感烘托空间的氛围,打造出了空间的深邃感与高级感,丰富了空间的层次,储物柜玻璃镜面装饰无形中延伸视野,加上几何造型的垂感吊灯,让空间更具轻奢、精致的氛围。

书房、琴房、健身区处于同一个空间,多功能的设计将空间利用较大化。
黑白灰棕的搭配大气整洁,颜值与功能兼备,这也是家里使用频率非常高的一个空间。

过道和楼梯处于客餐厅中间,用线性灯和整体石材将整个客餐厅切割成两个规整的区域。过道通往老人房和书房,用金属黄铜材质的栅栏隔断做遮挡,绿植的装饰净化空气的同时也提升空间的美感,楼梯一角陈设钢铁侠雕像,让“科技改变未来”的意志融入空间。

主卧的设计沿用了业主想要的生活质感,采用轻奢的设计调性,背景墙面整齐的走线、看似随意却精心设计过的插花配色,整个空间如同翻开一本书娓娓道来,细节之处耐人寻味。
床头背景灰白色硬包与金属线条穿插与整体硬装相呼应,真皮材质床背,搭配柔软的床品,床尾棉麻弧形沙发与金属茶几的配搭,室内的奢雅与自然的静美达到了平衡舒适的境地,营造出治愈的舒睡空间。
主卧套房另设有衣帽间和主卫,我们希望赋予居者的是一种贴合个性需求的生活方式,无需过多干预,一束清丽的花、一抹梳理装扮的笑容,都能让身处其中的人获得感官上的便利与享受。

卫生间在设计上以极简风格为主线,大理石的花纹恰当好处地装饰了内部空间,巧用线条设计从视觉上拉伸空间。
干湿分离设计,用玻璃门作为隔断,优质阻隔水汽、不显压抑,既可保持沐浴之外的空间干燥卫生,又维持了卫浴空间的整洁美观,创造了宽敞明亮且井然有序的生活空间。

老人房的灰色床头凝聚着沉稳的质感,没有花哨的造型也没有浓厚的色彩,以床头金属灯饰点缀,用简单的搭配手法来带一种高级的视觉享受。墙上棕色的立体装饰画打破背景墙的单一性,没有特别跳跃突出的元素,但却处处充盈着恬静气息。卧室内搭配生活阳台区域,为老人提供了更便捷、安静的休息场域。

粉得柔美,白得纯净,是小仙女梦想中的小世界。
从踏入女孩房的那一刻起,脑海里便浮现了多功能的生活场景,视线和思绪都变得柔软起来。在软装配饰上选用象牙白、浪漫粉、月光灰,融入几何美学,辅以金属元素点缀,彰显女孩的柔美烂漫,让人如沐春风,闺蜜小聚、阅读闲聊,观景休憩,功能和情感之外,设计创造了额外的思考空间陪伴成长。

男孩房深邃的蓝色,搭配暖色灯光,与温柔的米白色空间碰撞,呈现出对比鲜明又和谐共生的视觉效果。
太空主题设计,巨大的月球、小行星、宇航员、火箭飞船等,所有的软装都让整体设计更加科幻时尚,营造出充满童趣与梦幻气质的空间体验。
定制柜体大量运用的弧形元素,营造统一而精致的细节,干净利落的线条组合,高饱和度的色彩搭配,勾勒渲染出精致又不失活力的儿童空间。
声明:本文由入驻焦点开放平台的作者撰写,除焦点官方账号外,观点仅代表作者本人,不代表焦点立场。
