深汕外国语学校规划公布,72班九年一贯制学校
搜狐焦点深圳资讯 2025-09-04 15:00:32
用手机看
扫描到手机,新闻随时看
扫一扫,用手机看文章
更加方便分享给朋友
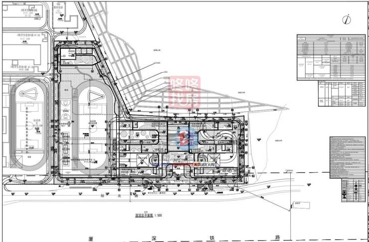
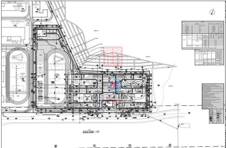
近日,深汕外国语学校(暂定名)项目《建设工程规划许可证》及总平面图对外公告。深汕外国语学校位于深汕特别合作区鲘门街道站北路北侧。项目用地面积约3.8万平,总建面约5.3万平。规划为72班九年一贯制学校,按照计…
近日,深汕外国语学校(暂定名)项目《建设工程规划许可证》及总平面图对外公告。
深汕外国语学校位于深汕特别合作区鲘门街道站北路北侧。
项目用地面积约3.8万平,总建面约5.3万平。
规划为72班九年一贯制学校,按照计划,于2024年9月投入使用。
据了,近年来,市区共投入约59.2亿元,建设8所基础教育新校,包括深圳中学高中园一园三校、市二高深汕实验学校、南外深汕西中心学校、市二高深汕学校、深汕实验学校、深汕外国语学校。
目前,深圳中学高中园一园三校、市二高深汕实验学校、南外深汕西中心学校、深汕实验学校已建成投用,市二高深汕学校、深汕外国语学校正加快建设。
2024年,深汕各级各类学校在校生总人数超过20000人。
来源:咚咚找房
声明:本文由入驻焦点开放平台的作者撰写,除焦点官方账号外,观点仅代表作者本人,不代表焦点立场。


