深圳“拆迁地图”盘点,你身边的这些人身价要暴涨
扫描到手机,新闻随时看
扫一扫,用手机看文章
更加方便分享给朋友
(来源:深圳住朋网、深圳地铁网、家在、香蜜二村旧改、深圳地产)
深圳是个弹丸小城,1996.85平方公里的土地上生活着2000万人,人口密度比香港还大。
深圳缺地,已经缺到了毫无退路的阶段,2018年共拍卖10宗居住用地,其中6宗“只租不售”。2017年全年仅供应了一块限售10年的商品房用地,而且这块土地上还同步配建了大量的人才住房。
由于可供开发土地极度紧张,城市更新,已然成为深圳土地供应的主要实现方式。
今年以来,深圳各区城市更新改造的消息不断,据不完全统计,2019年深圳已经有至少20个更新项目迎来新阶段。连最难拆的香蜜湖、白石洲等大型旧改项目也迎来了新进展。
未来,这里将有多少旧楼倒下,又会出现多少“千万富翁”,取得进展的旧改项目又分布在何处?下面让我们用一张图来直观的了解下。

较大旧改:白石洲旧改航母启动签约,明年底目标100%
较新进程:6月10日,白石洲绿景旧改正式开始签约。6月15日,白石洲城市更新项目(塘头村)签约启动动员大会举办。回迁户型和赔偿标准也陆续曝光。
项目位置:因其是许多“深漂”的排名前列个落脚点,所以备受关注,还有其优越的地理位置,一路之隔就是华侨城豪宅片区,南北纵横深圳“主动脉”深南大道,西至沙河东路,顺接科技园,东连欢乐谷、世界之窗等标志性建筑物。
项目位于南山区沙河街道沙河五村片区,东临华夏街,南临深南大道,西临沙河街,北临香山西街。

项目简介:白石洲共有4个旧改项目,包括沙河五村城市更新单元、深业世纪山谷城市更新单元、鹤塘小区-沙河商城改造项目、白石洲南区项目。
官方资料显示,项目定位为以居住商务功能为主导的城市综合体,计容总开发面积358万平方米,其中住宅建面共125万平方米,商务公寓112万平方米。

根据规划,其中有三分之一为住宅、人才公寓和保障性住房,均以小户型为主;三分之一为公寓,服务周边城市中心的高薪白领人群;三分之一为商业办公和酒店,提供多元化办公购物休闲体验。
拆赔方案:单层老祖屋补偿标准达到1:3.5,首层置换商务公寓较高可达到1:1.2,本地原村民住宅拆赔比1:1.03,其余基本按照1:1的产权置换赔付(商务公寓的产权为70年);
货币赔偿标准为2.8万/平,按时签约再奖励8万/栋,搬迁补助1万/栋。(具体以开发商最终确认为准)

回迁户型:这次曝光的户型来看,主要有80平的2房2厅1卫、120平的3房2厅2卫、160平的3-4房、180平的4房、275平的复式单位。

最贵旧改:香蜜二村香蜜二村公布规划,一路之隔房价已10万+/平
较新进程:6月4日,香蜜二村拆赔意见稿出现在小区公告栏,面向全体业主公示并征求意见,第二天,香蜜二村棚改项目概念规划也随之公布。
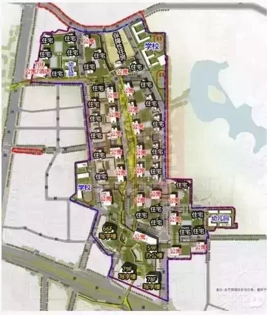
项目位置:香蜜二村位于香梅路与景田南路口,共16栋多层,户型方正,实用率较高,大部分为一梯二户的南北通透户型,有篮球场和健身设施等供休闲,近地铁1号线香蜜湖站、莲花文体中心、香梅市场等,交通生活便利。
项目简介:本次规划方案仅为初步意向方案,将规划一所幼儿园,另配建文化活动室、社区体育活动场地、社区健康服务中心,老年人托养中心、便民服务中心等公共配套设施。
从后面的规划图可以看到,小区规划四栋回迁房和两栋人才住房,回迁房靠近东南方向一字排开,较好的体现了南北通透的设计理念,也充分的保证了日照采光。


拆赔方案:
1、选择产权调换的:被搬迁房屋按建筑面积1:1.2进行调换,或被搬迁房屋套内面积1:1进行调换,二选一不得更改。
2、选择货币补偿:按本项目评估价值时点的市场评估价格给予货币补偿。(其他补偿类目见下表)

周边房价:香蜜二村与深圳传统豪宅区域香蜜湖片区仅仅一路之隔,周边是香蜜湖水榭花都、香蜜湖一号等中心区豪宅大盘,二手价格约在17万以上,而其所在的景田南片区,也不乏缇香名苑、橄榄绿洲、紫金苑、聚豪园、东方玫瑰花园等精致型花园楼盘,价格约7-9万左右。
香蜜二村本身的二手房售价也超8万/平。

较快旧改:华富村深圳棚改排名前列村正式动工,9天签约99.1%
较新进度:6月6日据家在深圳网友@围着火锅吃西瓜爆料,华富村已正式开工。作为深圳棚改排名前列村,华富村起了一个非常好的头,整个项目进度飞快。

据媒体报道,2017年8月,政府开始征集华富村改造意愿,9天就获得了99.1%业主的同意。同年9月,华富村启动签约,仅7天时间,签约率达到95%。
项目位置:华富村位于深圳中心公园东侧,南临华强北商圈,距离地铁7号线黄木岗站500米左右,交通便利,配套丰富,地理位置优越。

项目简介:华富村位于深圳中心公园东侧,南临华强北商圈,距离地铁7号线黄木岗站500米左右,交通便利,配套丰富,地理位置优越。
项目共规划15栋超高层住宅,1栋高端写字楼、1栋商业mall、2条沿街商业,1座54班九年一贯制学校和1座21班幼儿园。
拆赔方案:而且,华富村居民们爽快,补偿方案也比较豪气。福田城市更新局发布的补偿方案意见稿显示,这次的补偿将超过2.5个亿。
居民可选择5.5万元/平进行货币补偿,也可以选择套内面积1:1或建筑面积1:1.18两个回迁方案。
此外还有25平方米的购买优先权,其中13平方米按照9000元/平购买,剩余的12平方米则按照市场评估价的9折认购。
另外,早签约早交房较高还可获得17万元奖励。
回迁户型:这次曝光的户型来看,主要有100平的3房2厅2卫、115平的3房2厅2卫、120平的4房2厅2卫、125平的4房2厅2卫、130平的4房2厅2卫、135平4房2厅2卫、150平5房2厅2卫。
较高楼旧改:蔡屋围规划了两栋超高层建筑,预计2019年内动工
较新进度:京基地产蔡屋围城市更新统筹片区办公室工作人员称,项目在5月10日才启动私宅物业签约,目前签约进展顺利。预计2019年内动工。
项目位置:位于罗湖区桂园街道,主要包括蔡屋围城中村、晶都酒店、寰宇酒店、大剧院、农业银行、城建集团等区域。北侧为金华街、西侧为红岭南路、南侧为滨苑住宅小区、东侧为蔡屋围新十坊小区。
项目简介:整个片区面积约为31万平米,规划总建筑面积约260万平米,包括超甲级写字楼、大型商业、高星级酒店、高端住宅、公寓、教育文化配套等多种业态。
京基蔡屋围旧改,规划了两栋超高层建筑,其中一栋号称超过700米,中国排名前列、世界第二,另一栋也高过平安金融中心。不久前,深圳市规划和自然管理局否认批准深圳一些要创造中国纪录的摩天大楼,但京基对外公布的方案,仍然展示着700米+的雄姿。

拆赔方案:网络上流传着到一份《深圳市罗湖区蔡屋围统筹片区城市更新项目集资楼补偿标准》,房屋产权置换补偿标准为按建筑面积1:1的比例回迁住宅或公寓,阳台按全面积补偿面积,且未计入建筑面积的版阳台面积肌肤过渡期租金。
此外,该份《补偿标准》还公布了过渡期租金、搬迁补助费等共计8项补偿方案。

深圳旧改:影响未来房价的终极力量在寸土寸金的深圳,对于房企而言通过招拍挂拿地一方面是价格高,另一方面则是地少。据了解,近几年深圳每年都仅有1-2宗住宅用地出让,凡是宅地必遭疯抢,明显供不应求。然而,为了解决“土地荒”,不少房企开始插足深圳旧改市场。
深圳有1000多个城中村,几乎每个村都在或明或暗展开旧改肉搏战,深圳“城中村新政”在保护城中村的同时,客观上刺激开发商和村民加速旧改进程。因几乎没有新增居住用地供应,城中村旧改已经是深圳新房市场的主力军。
此外,深圳大力推行的保障房计划,对城中村旧改提出更高要求,每个项目都要求配建安居房、人才房(租赁为主、产权销售为辅),这起到两大左右:
1、影响房价和房租价格。按照规定保障性住房的售价和租金,以市场折扣价推出,安居型商品房5折,人才房6折。随着大量项目入市,无疑会起到平抑房价和租金上涨的超级力量。或许,假如房价有下跌压力,政府会放缓进度。
2、抬升旧改成本,最终向房价转移。羊毛出在羊身上,要求配建20%以上比例的保障房(总体要求,个别项目比例不同),使得开发商的成本有较大增加。这将导致两个结果,一是继续增加容积率,深圳的楼越盖越高;二是推动房价上涨。
一方面通过大量供应保障房抑制房价上涨,另一方面提高开发成本推动房价上涨,这形成深圳“房价升降难题”。这一矛盾,将强烈影响深圳房价走势。
一压一抬,最难受的是开发商。不过想必购房者也舒服不到哪里去……
声明:本文由入驻焦点开放平台的作者撰写,除焦点官方账号外,观点仅代表作者本人,不代表焦点立场。


