72㎡3房、89㎡4房!深圳“高拓”户型回归
扫描到手机,新闻随时看
扫一扫,用手机看文章
更加方便分享给朋友
2024年5月,新版《深圳市建筑设计规则》发布,在楼层高度、部分公共空间的面积计算及具体住宅设计等多个方面均有突破。
新规中,减少计入公摊的面积、对阳台及飘窗的建筑设计进行尺寸上的调整、住宅和宿舍的建筑高度要求不宜超过150米等规则。对于购房者而言,最直接的好处莫过于减少了住房的公摊面积,提高了户型居住的舒适度。
当前,深圳已有不少新盘项目已经释放了新规后设计的户型,网传户型使用率达到90%以上,甚至是100%。(具体以项目实际为准),这类少公摊,高使用率的户型或将成楼市新货的常态。
下面,先来看看已经按新规设计户型的新盘项目--金光华溪山禾玺首府、卓越前海未来城、中建鹏宸云筑、中建观玥。其中,金光华溪山禾玺首府已经开放展示中心及样板间,卓越前海未来城已经开放了展厅,中建鹏宸云筑、中建观玥尚处于咨询阶段....
以上4个项目涵盖了2-4房各阶段的刚需户型产品,对刚需置业在户型选择上有一定的参考意义。(部分项目户型图未标注尺寸)
◉2房1卫
上述4个项目中,只有卓越前海未来城有2房产品。
建面约63㎡2房格局也十分全面,玄关鞋柜、S形冰箱位、U形厨房、LDKB一体化设计,空间通透,两个卧室带有大飘窗,虽然没有标准尺寸,从设计区比例来看该户型的阳台、飘窗进深比较可观。

◉3房1卫
一步到位的3房产品,有2个项目房源,最低建面72㎡起
溪山禾玺首府-建面约72㎡:设计为客餐厅分离的通透户型,主卧3面飘窗,采光通透性加强的同时也提高了户型的实际使用空间;
卓越前海未来城-建面约76㎡:面积虽然比金光华的项目多4㎡,但在收纳空间设计细节上处理更好,预留S形冰箱位、电视背景板/电视柜位,在家具摆放上节省空间;卫生间三段式卫浴缓解高峰期仅1卫的不足;在卫浴外还有设备阳台,收纳日常清洁工具等;三个卧室的大飘窗加大了空间的使用面积。
*溪山禾玺首府
*卓越前海未来城
◉3房2卫
这个格局是刚需产品中的主力,4个项目都,其中中建鹏宸云筑的起步面积段79㎡起。
中建鹏宸云筑-79㎡。中建鹏宸云筑目前户型图尚未有正式官宣的释放,只能大概看个格局,79㎡的户型可以说经典紧凑实用型。
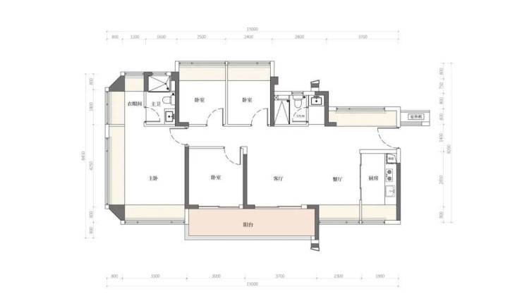
中建观玥-建面约80/89㎡。中建观玥最“坦荡”,带尺寸的户型图提前释放,3房2卫有80㎡、89㎡两个面积段可选,进深80公分飘窗、1.5米的阳台,LDKB一体设计,预留鞋柜、空调位,主卧双飘窗。其中,89㎡户型带有阔景阳台,开间达6.3米,两个卧室270度飘窗,实用空间更可观。
溪山禾玺首府-建面约82㎡。溪山禾玺首府同样是两个卧室双飘窗,除了阔景大阳台外,整体结构与中建观玥建面约90㎡的产品相近。
卓越前海未来城-建面约86㎡。卓越前海未来城的户型优势还是比较突出,相对其他三个项目来说面积大一点,空间感和结构上相对更合理。
*中建观玥-80㎡
*中建观玥-89㎡
*溪山禾玺首府82㎡
*中建鹏城云筑79㎡
*卓越前海未来城
◉4房2卫
这个结构是目前刚改的主力需求户型,上述4盘中仅中建鹏宸云筑有3个面积段可选。
中建鹏宸云筑-89/99/119㎡,有紧凑89㎡小4房,有舒适横厅阔景99㎡4房,有阔绰119㎡4房,供各阶段预算的购房者选择,其中119㎡的户型有独立的储物间,主卧宽敞的衣帽空间。
中建观玥-建面约118㎡,户型与中建鹏宸云筑的设计风格相似,室内除了阔景阳台(开间6.7米),基本每个空间都有飘窗,增强户型通透的同时,也大大提高了空间的实用空间。
溪山禾玺首府-建面约95㎡,阔景阳台设计,三个卧室有270度大飘窗,不过有个“多功能房”的空间相对较小,飘窗的存在或影响空间的整体使用,实际算是3+1房。
卓越前海未来城-建面约113㎡。开阔通透横厅、双阳台设计。除了日常的生活阳台,另一个阳台可以根据家庭需求灵活使用。

*溪山禾玺首府95㎡
*中建观玥-118㎡
卓越前海未来城-113㎡
高“拓展”户型再回归,空间主要来自阳台和飘窗,大家在置业选择时可以充分考虑日常生活动作,不用一昧的追求小面积,选择符合自身的高性价比的项目。
以上户型中你觉得哪个项目的设计更合你心意呢?欢迎评论区留言。
声明:本文由入驻焦点开放平台的作者撰写,除焦点官方账号外,观点仅代表作者本人,不代表焦点立场。


