政府投资,大空港旁!宝安又新增两所新校,建设规划获批
扫描到手机,新闻随时看
扫一扫,用手机看文章
更加方便分享给朋友
4月25日,宝安两所新学校同意核发建设工程规划许可证,并公布了总平面图。
分别为宝安区兴围学校和利锦小学。
据悉,利锦小学是宝安区重点建设项目,是由政府投资12935.314042万元兴建的一所公办学校。
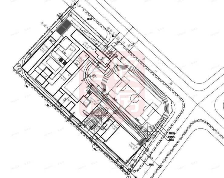
宝安区兴围学校为新建工程,位于区宝安区福永街道兴围社区怡安居与星航华府之间地块,拟建九年一贯制学校。
利锦小学,36个班公办小学
利锦小学项目用地位于航城街道,利达路与金乡三路交会处,用地方案号2017-00Z-0003。
项目用地单位为宝安教育局,共建2栋楼,其中教学综合楼为6层,宿舍楼为11层。
该学校总建筑面积29645.73㎡,计规定容积率建筑面积19876.11㎡,计容积率建筑面积2303 8.21㎡。
总平面图
利锦小学位于深圳市宝安区航城街道金乡一路与金乡三路交汇处,毗邻深圳前海经济开发区和“海洋新城、大空港、会展中心”叠加的“湾区新城”,系宝安区重点建设项目,是由政府投资12935.314042万元兴建的一所公办学校。
学校占地面积1.2万㎡,建筑面积29645.73万㎡,配备了先进的设备设施,有教室36间、功能室36间,设有独立的多功能体育馆。
学校预计办学规模36个教学班,2020-2021学年共开设一年级4个班,学生总数将达200人。
深圳市宝安区兴围学校,九年一贯制学校
深圳市宝安区兴围学校项目用地位于福永街道,用地预审及选址意见书号440306202000040。
项目用地单位为宝安教育局,建2栋楼,分别为教学综合楼和教师宿舍楼。
总建筑面积35580.00㎡,计规定容积率建筑面积25755.00㎡,计容积率建 筑面积 2746 8.00㎡。
据了解,宝安区兴围学校为九年一贯制学校新建工程,位于区宝安区福永街道兴围社区怡安居与星航华府之间地块,计划2023年完工投用。
来源:深圳房地产信息网
声明:本文由入驻焦点开放平台的作者撰写,除焦点官方账号外,观点仅代表作者本人,不代表焦点立场。


