龙岗新盘紫和嘉园推658套住宅 备案均价约3.95万/㎡
扫描到手机,新闻随时看
扫一扫,用手机看文章
更加方便分享给朋友
紫和嘉园位于龙岗区龙岗街道,盐龙大道与龙城大道交汇处北侧龙西社区,现已获批预售,共推出673房源,预售总面积约58333.02㎡ ,其中住宅658套,商铺15套,位于1栋一、二、三、四、五单元。
住宅户型区间约66-98㎡,备案均价约3.95万/㎡,单价区间约3.5-4.3万/㎡,总价区间约237-419万/套,住宅物业费3.9元/㎡;
商业15套,户型面积约为50-209㎡,备案均价约5万/㎡,单价区间约为3.7-5.7万/㎡,总价区间约285-899万/套。

部分单位备案价展示
项目简介
项目占地面积约2.53万㎡,总建面110449.21㎡,容积率3.64,绿化率40.05%。
共规划两栋,其中1栋有6个单元,建筑为28-30层高住宅,2栋规划是一所12班幼儿园,总户数932户(其中商品房660户),全部都是2梯5户设计,停车位700个,车位比约1:0.75,停车位明显不足。
项目周边生活配套还有待改善,区域整体城市面貌较差,以民房和工业区为主,公共交通便利度不佳,距离地铁较远。
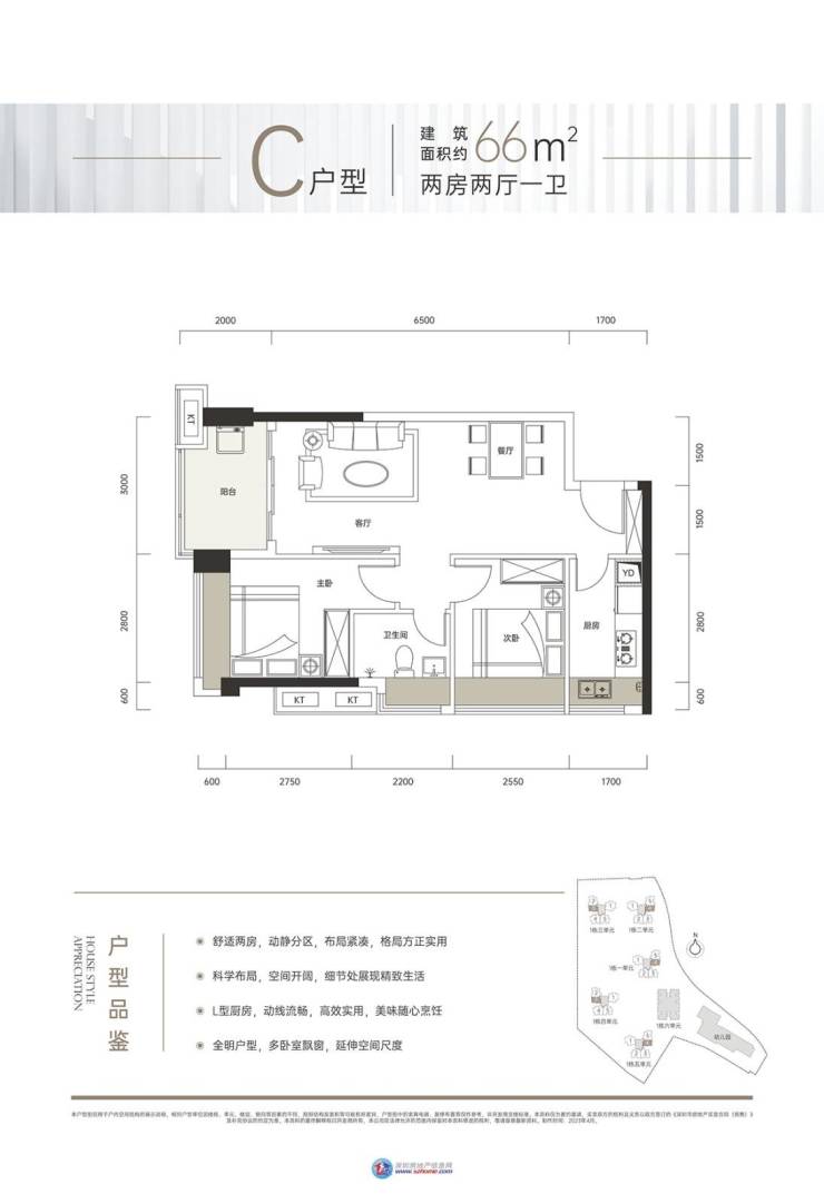
主推户型为66㎡两房两厅一卫、89㎡三房两厅两卫、94㎡三房两厅两卫、 98㎡四房两厅二卫,具体如下:
来源:咚咚找房
声明:本文由入驻焦点开放平台的作者撰写,除焦点官方账号外,观点仅代表作者本人,不代表焦点立场。


