撤销率超3成!宝中安居房瑞璟湾居9月29日起选房
扫描到手机,新闻随时看
扫一扫,用手机看文章
更加方便分享给朋友
今年深圳配售效率最高的安居房项目非瑞璟湾居莫属。
项目于9月20日发布配售通告,9月23日发布初审通告,9月27日发布选房通知,9月29-30日安排选房仅10天时间完成配售到选房一系列动作。
9月27日晚,深圳住建局公示瑞璟湾居选房通知,项目住房A队列(两房)和B队列(三房)同时开展选房,选房地点在宝安区西乡街道新安四路198号宝立方中心4楼多功能演播厅。
结合项目公示的初审结果和选房通知名单,项目的2房撤销率约34%,3房撤销率约38.4%。
两房户型房源283套,选房时间为9月29日下午及9月30日上午。
三房户型房源112套,选房时间9月29日下午及晚上
瑞璟湾居项目信息:
瑞璟湾居安居型商品房房源共400套,本次供应395套(5套住房暂作样板间,不纳入本次配售范围),其中:两房户型房源283套,建筑面积约68㎡;三房户型房源112套,建筑面积约88㎡。项目配售均价为45745.43元/㎡(按建筑面积计算,含装修)。本项目住宅塔楼为装配式建筑,室内为带装修交付,交房标准见样板房和售房说明书,预计交付使用时间为2026年6月30日前。
其中,单身居民及二至三人家庭可根据自身意愿认购本项目住房的两房户型。领军人才、四人及以上家庭可根据自身意愿认购本项目住房的两房户型或三房户型。
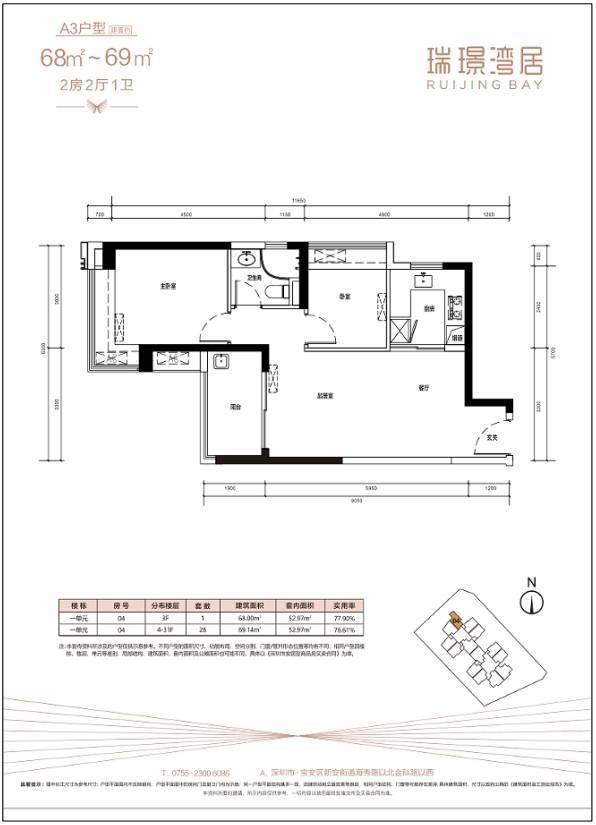
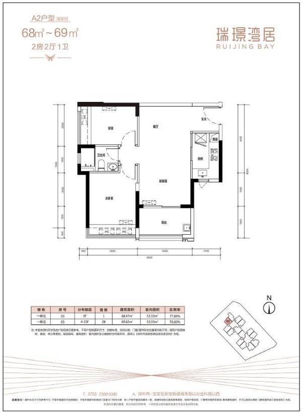
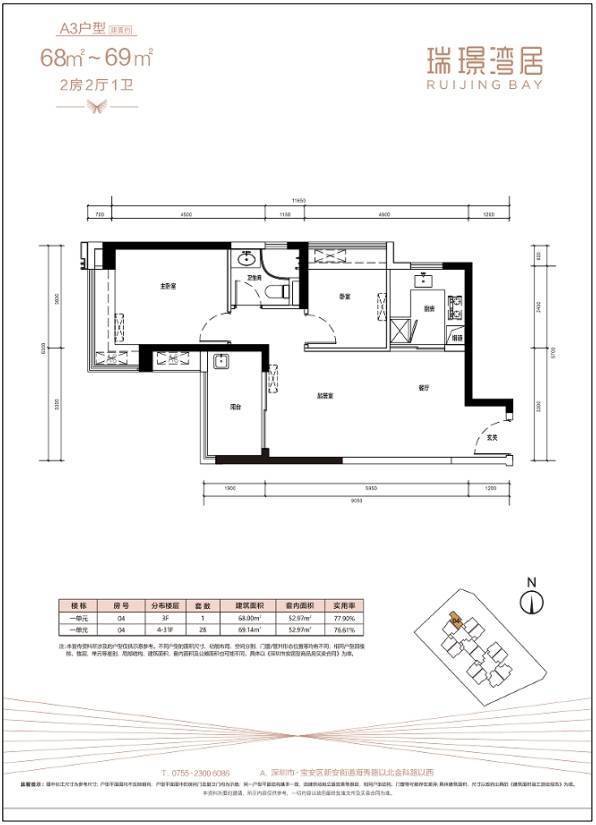
据备案信息显示,项目两房面积段为68-70㎡,总价区间302-324万元,首付最低约60.4万元。
两房共有3种户型,分别为A1/A2/A3户型,全部为竖厅格局,得房率在78%左右。
三房112套,面积段85-87㎡,总价区间387-409万元,首付最低约77.4万元。
3房2种格局,其中B1户型为竖厅设计,B2户型为横厅设计。房源分布在1单元07,2单,03/04/07号房。
瑞璟湾居位于宝中片区,邻近大铲湾,500米范围左右有滨海文化公园,还有预计明年投入使用的“湾区之眼”文化配套。1公里范围内,有前海壹方城、前海HOP天地等商业。
这么多“天花板”级别的配套加持,也难怪项目的定价会高于市场同类型产品。
瑞璟湾居所处的片区,是宝中目前最后一片连片待开发的片区。今年7月份入市的商品房中铁能建阅臻府,正位于项目的北部,阅臻府备案价8.6万/㎡,开盘折后价约8.33万/㎡。
与中铁能建阅臻府一路之隔的纯商品房地块A001-0219宗地,该地块不受“70/90户型”政策限制、无配建、建成后商品房不限售价,9月26日土地出让中保利以28.2亿元斩获该宗地,楼面价约5.22万/㎡。
而在瑞璟湾居南侧,也划拨出了一宗宝中南街坊地块,根据官方规划,南街坊地块将建成高端大平层住宅、顶奢度假酒店、精品酒店、高奢商业,以及艺术街区商业等。
南街坊地块建成后,会对瑞璟湾居的景观视野有所影响,但连片开发后,也会更加宜居
声明:本文由入驻焦点开放平台的作者撰写,除焦点官方账号外,观点仅代表作者本人,不代表焦点立场。


