大鹏保租房安居风铃府总平面修改公示,将提供473套房源
扫描到手机,新闻随时看
扫一扫,用手机看文章
更加方便分享给朋友
日前,深圳规自委公司大鹏保租房安居风铃府总平面修改公示。
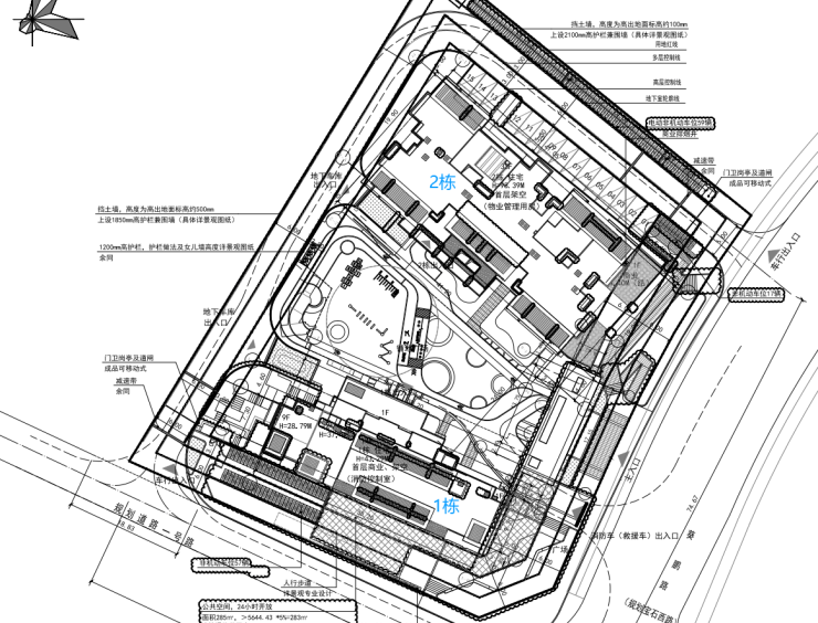
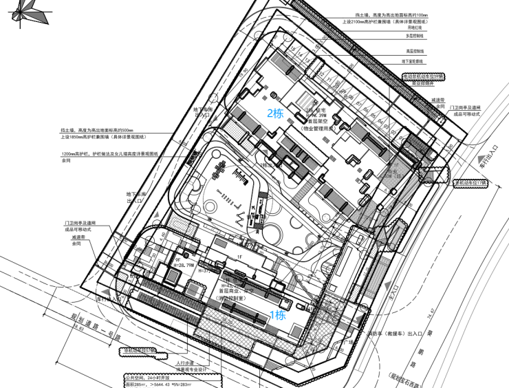
安居风铃府位于深圳市大鹏新区葵涌街道G15314-0087号宗地,用地面积5644.43㎡,于2022年6月取得《建设工程规划许可证》(深规划资源建许字DP-2022-0012号)。
现项目申请对该项目原已批总平面图进行局部修改,主要修改内容为:
调整规划道路标高;调整红线内局部场地设计、公共空间及机动车停车位布局;调整楼栋屋顶构架、2栋商业雨篷、小区大门;新增非机动车停车位;补充风井示意及图例说明;因设计方案修改相应调整经济技术指标表。

安居风铃府是大鹏的保租房项目,位于葵新社区金业南路南侧、葵鹏路北侧,为白石岗城市更新单元规划的03地块。

项目总建面约4.3万㎡,容积率5.1,计容建面约2.9万㎡,其中包括住宅2.8万㎡,另有部分商业和物业用房设施。

安居风铃府共建2栋高层,规划473套房源。


据悉,安居风铃府已经通过竣工验收,即将配租。对项目有想去的网友可关注大鹏住建局官网。
声明:本文由入驻焦点开放平台的作者撰写,除焦点官方账号外,观点仅代表作者本人,不代表焦点立场。


