折后单价5.83 万/㎡起 龙华迎玺花园首批642套房源今起登记
扫描到手机,新闻随时看
扫一扫,用手机看文章
更加方便分享给朋友
11月29日,位于龙华深圳北站超核商圈的中洲公示预售许可证,11月30日起进行意向登记。
项目本批共推出642套房源,房源位于1栋1-4单元,主推户型为建面约93-136㎡3-4房,备案单价约6.68-7.96万/㎡,整体均价约7.25万/㎡。

据了解,中洲迎玺开盘折扣为9折+(仅限开盘当天认购)七天准签折扣98折,公司40年周年庆99折,相当于开盘当天87折,折扣单价5.83-6.95万/㎡。
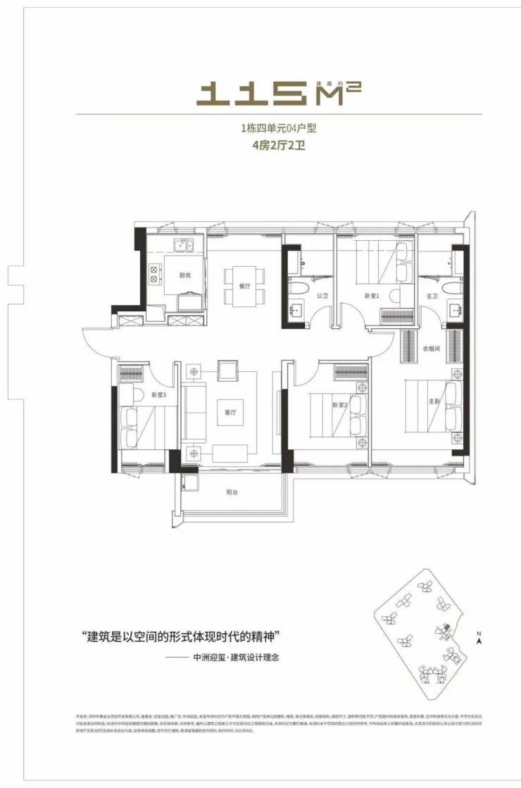
根据此折扣,约120㎡四房总价702-770万;约136㎡四房总价908-942万;约93㎡三房总价612-641万;约97㎡三房总价579-636万;约115㎡四房总价762-794万。
【查看一房一价】

中洲迎玺首批推售信息
中洲迎玺花园首批推出1栋1-4单元的644套住宅,主推户型建面约93-166㎡的3-4房。目前户型图和楼栋日照已经上线。(点击下图可看楼栋日照模拟)
中洲迎玺花园首批将推的楼栋户型分布示意图,均为靠南部的4栋超高层。将推的户型面积段主要有建面93㎡、97㎡、115㎡、120㎡、136㎡产品,其中97㎡、120㎡为主力户型。

中洲迎玺花园的户型设计以经典的竖厅和通透设计为主,目前共公示有6个户型图。
建面约93㎡与97㎡设计布局相近,3个卧室均带有飘窗,可有效地提高户型实用性。
建面约115㎡与120㎡设计相近,阔绰入户设计,预留较多的收纳空间;主卧步入式衣柜,保证主人生活的私密性;
建面约136㎡舒适4房双阳台设计,户型通透;且开间均带有飘窗,主卧带有阔绰衣帽间和主卫。
中洲迎玺项目介绍
中洲迎玺花园位于龙华大道与民丰路交汇,处位于超核中心润府的东南侧、龙华消防培训基地及龙华龙腾学校的西北侧。
中洲迎玺花园地块由两部分组成,总用地面积7.73万㎡,规划总建筑面积44.6万㎡。项目分三期5个批次开发,规划建设约17个单元住宅楼+1栋幼儿园,规划约2669户(以开发商最终公示数据为准)。
其中,一期即将入市;预计二期一批次约2024年9月份入市;三期约2027年入市。
首批推出的中洲迎玺花(A806-0397宗地),地块总建面用地面积约4万㎡,总建面约23.3万㎡,其中,住宅约16万㎡,商业建面约7300㎡。项目容积率4.44,规划总户数1395户,分为两期开发建设。
中洲迎玺花园首推部分建设用地1.84万㎡,总建面约13.4万㎡。其中住宅建面约7万㎡,总户数644户,主推户型建面约92-166㎡的3-4房,梯户比为2T4户。
中洲迎玺花园本地块规划有建面约1.6万㎡的园林,并打造泛会所。
再来看看周边配套方面:
轨道交通:距离深圳北站步行距离约900米,目前已经开通的地铁4/5/6号线三条地铁线直接在此接驳。
深圳地铁五期27号线樟坑站距离项目较近,未来可以便捷通达南山西丽、高新园、深圳湾、前海湾等核心区域。
教育方面:中洲迎玺目前学区划分属于深外龙+玉龙+龙腾初中大学区,小学是龙腾学校。(具体入学以当年区教育局划分为准)
此外,项目临近规划九年制格致学校,属于特色教育项目,据悉将重点引入航天特色。
商业方面:紧邻华润5星级万象商业(在建),附近有深圳北站缤果空间、星河Coco City、红山6979、龙华天虹购物中心等集中商业以及华南首家Costco旗舰店(今年四季度开业)。
休闲公园:附近有绿芯公园(在建),直线距离约1.5公里范围还拥有南园公园、北站中心公园、逸秀公园、白石龙音乐公园。
医疗配套:距离项目直线距离约800米有深圳市第二儿童医院,该院与福田儿童医院实行“一院二区制”,提供1500张床位(福田儿童医院的1.6倍),计划今年12月试运营。
地铁1站到红山,有在建的新华医院,该院总建面约50万㎡,未来将建成国内一流的三甲综合性医院,预计2024年3月试运营。
声明:本文由入驻焦点开放平台的作者撰写,除焦点官方账号外,观点仅代表作者本人,不代表焦点立场。


