近7000套房源!横岗信义金御山居首批推约80-119㎡3-4房
扫描到手机,新闻随时看
扫一扫,用手机看文章
更加方便分享给朋友
龙岗本土开发商信义在横岗又一大体量新盘即将入。
作为信义集团旗下深圳本土实力强劲的开发商,信义在龙岗打造了众多标杆项目,如信义嘉御山、信义金御半山、信义君御山等。当前多个项目在开发,其中,已经推出了位于百鸽笼的信义金御半山5期准现房,待推售的还有百鸽笼的信义金御半山·珑门、横岗的信义金御山居,以及坂田的信义君御山汇珑花园(准现房)。
今天要说的是信义位于横岗的大型旧改项目-信义金御山居,TA是信义在深圳打造的第三座百万城(另两座为信义嘉御山、信义金御半山),据悉首期将推的1栋组团已经封顶,主推户型为建面约80-119㎡的3-4房,已经开放样板间,预计近期入市。

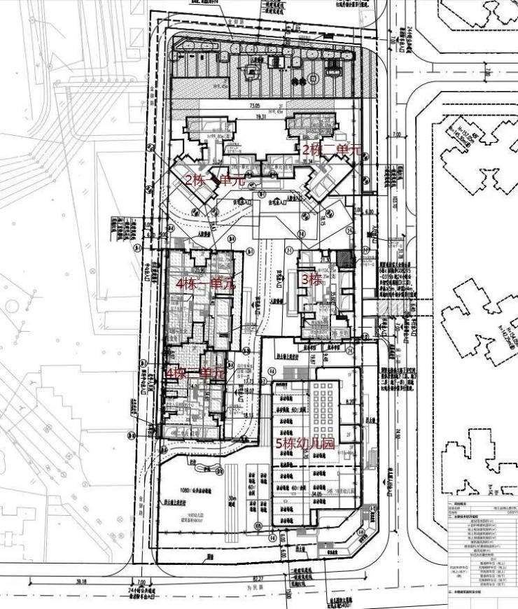
信义金御山居原为龙岗园山DY01片区旧改,项目总占地面积约11万㎡,规划总建面约115万㎡,总规划6909户,其中商品房5819户,保障房1090户(租赁型人才房496套、公租房338套,安居型商品房256套),停车位7500个。
信义金御山居共分6个组团(地块)开发,未来将有风雨连廊将各组团可连接,共规划25栋25栋32-54层住宅,3栋办公楼,1所18班幼儿园,1所9班幼儿园,周边地块还规划有1所九年制27班学校,1所36班高中,建成后将打造成为集住宅,商业,办公,教育于一体的大型综合体项目。
各组团详情信息如下:
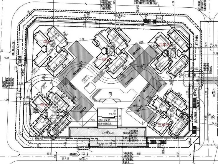
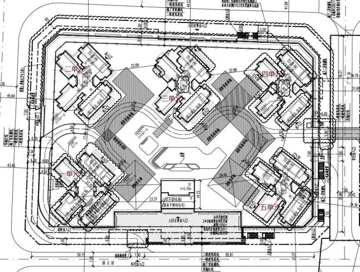
本期将推出的1栋组团(01-03地块),占地面积约1.7万/㎡,建筑面积约14.3万㎡,容积率6.31,绿化率40%,规划总户数990户,其中套内建筑面积<90㎡的有960户,规划停车位910个。
本组团共由5栋住宅组成,其中1栋1单元住宅49F,1栋2-5单元住宅32F,呈围合式布局。
2-5栋组团(01-04地块),以保障房为主。宗地占地面积约1.9万㎡,总建筑面积约15.5万㎡,容积率6.17,绿化率40%,总规划1485户(其中保障房1090套),其中套内建筑面积<90㎡的有1485户,规划停车位1030个(占比1:0.69)
本组团由3栋5个单元住宅+1所18班幼儿园组成,其中2栋1单元住宅32F,2栋2单元住宅53F,3栋住宅34F(保障房),4栋1/2单元住宅33F(保障房),5栋为18班幼儿园。
6栋组团(01-05地块)主要是住宅+办公。占地面积约1.82万㎡,总建筑面积约22.5万㎡,容积率9.37,绿化率40%。总规划1044户,均为套内建筑面积<90㎡的产品,规划停车位1460个(占比1:1.35)
本组团共由4栋47-48层住宅+1栋办公楼组成,其中6栋1/2单元住宅48F,6栋3/4单元住宅47F,6栋办公楼35F。
7栋组团(01-06地块)同样是普通商品房住宅+办公规划。本组团占地面积约1.73万㎡,建筑面积约20.8万㎡,容积率9.2,绿化率40%,总规划1116户,规划停车位1370个。
本组团共由4栋50-51层住宅+1栋办公楼组成,其中7栋1/2单元住宅51F,7栋3/4单元住宅50F,7栋5单元办公楼35F。
8-9栋组团(01-07地块)规划为普通商品房住宅+幼儿园。占地面积约1.8万㎡,建筑面积约15万㎡,容积率6.5,绿化率40%。总规划1000户,其中套内建筑面积<90㎡的有956户,规划停车位1000个。
本组团共由4栋47-48层住宅组成,其中8栋1/2单元住宅48F,8栋3/4单元住宅47F,另外配建1所9班幼儿园。
10-11栋组团(01-08地块)主要规划为普通商品房+办公。宗地占地面积约2.2万㎡,建筑面积约26.5万㎡,容积率8.96,绿化率40%,总规划1274户,其中套内建筑面积<90㎡的有1274户,规划停车位1730个。
共由5栋53-54层住宅+1栋办公楼组成,其中10栋1/2/3单元住宅54F,10栋4单元住宅53F,11栋办公楼36F。
信义金御山居主要以居住功能为主,从项目规划可以看出,项目的产品主要以刚需为主,虽然有办公楼,但无集中的大型综合体商业规划,各组团均有底层商业可以满足日常生活所需。
回到本期将推的1栋组团来看,主推建面约80-119㎡户型,主力户型为建面约80-96㎡的产品。
户型图如下,每个户型都有大景观阳台设计。
至于价格方面,目前园山片区有3个新盘在售分别是,星河盛境御府、绿海山河里、颐安雍悦华府,其中,星河盛境御府、绿海山河里的备案价约3.8-4.5万/㎡可供参考。
当前市场仍处于以价换量阶段,在售新盘的价格已经折扣拉满,新房市场再迎“劲敌”,说不定价格上还会空间。具体信义金御山居的价格会多少,以开发商最终公示为准。
横岗片区的城市面貌短期内多以工厂和城中村为主,未来城市更新建成后将大大"焕新"。
虽然信义金御山居没有规划过多体量的商业,但周边的商业规模已经不少,相对而言配套还是比较完善的。
地铁配套:信义金御山居位于地铁3号地铁线横岗站和永湖站之间,未来可以通过3号线前往福田或者大运交通枢纽。不过相对而言,从项目步行至地铁口的距离超800米,相对而言步行耗时较长。
教育配套:信义金御山居自带两所幼儿园:9班、18班幼儿园,旁边规划1所九年制27班学校,1所36班高中。
商业配套:项目自带底层商业可以满足日常生活所需,周边大型商业有沃尔玛购物中心,天虹商场,金沙摩尔,新世界广场等商业体,未来星河、绿海等项目也将带来较大规模的商业。
综合而言,信义在深圳市场的口碑还是挺不错,无论是产品质量还是后期物业都可圈可点,只不过当前东部新盘的供应量、库存量都处于高位状态,信义君御山居作为居住类大社区,除了规模,其他方面没有太明显的突出优势。
就当前市场而言,你觉得这个项目卖什么价位比较合适呢,欢迎评论留言。
声明:本文由入驻焦点开放平台的作者撰写,除焦点官方账号外,观点仅代表作者本人,不代表焦点立场。


