龙华万众城时尚创意园规划公布!总建面超24万平,总投约25亿
扫描到手机,新闻随时看
扫一扫,用手机看文章
更加方便分享给朋友
近日,龙华万众城时尚创意园《建设工程规划许可证》及总平面图对外通告。
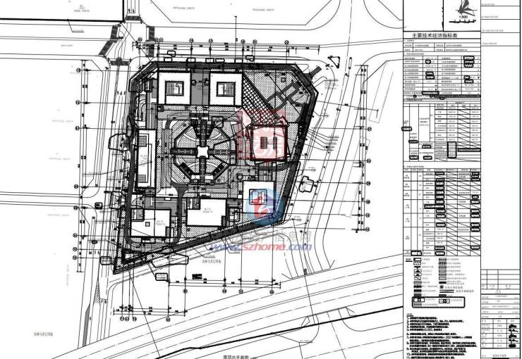
深圳市万众城科技有限公司建设的万众城时尚创意园项目位于龙华区大浪街道,宗地号A843-0034,项目名为尚座Spark,计容建面约15.6万平。
万众城时尚创意谷位于龙华区,用地面积32571㎡,总建筑面积约24万㎡,总投资25亿元,以“国潮跨境电商、大浪地标、建筑精品、时尚精品、艺术精品”为定位。
发展创意设计产业和时尚服饰与展销产业为核心,集产业功能、城市功能、生态功能于一体的文化创意产业园区。
园区内设时尚产业设计、时尚产业展示、时尚产业交易平台、时尚产业物流平台、时尚产业电子商务基地、品牌孵化中心、时尚产业院校产学研基地、时尚产业人才公寓、时尚产业设计师俱乐部、时尚产业公共服务平台、后勤设施及公共绿地等功能区。旨在整合政府与社会资源,吸纳、引进时尚企业总部和顶尖时尚设计师,为大浪时尚产业搭建一个高标准、国际化的服务平台。
园区的海绵城市、绿色建筑及装配式建筑设计由业内顶尖的咨询服务商中技绿建团队提供服务,团队紧密结合项目的设计需求,充分发挥自身的专业优势,为项目的成功实施提供强有力的技术支持和咨询服务,确保每一项设计都符合可持续发展的理念,助力龙华区乃至深圳市数字经济高质量发展。
目前此项目部分楼栋已投用。
据了解,项目由7栋特色楼宇组成,涵盖研发厂房、网红商学院、人才社区、产业配套等多元功能,精准匹配跨境电商、直播运营、品牌孵化等企业全周期发展需求,产业户型空间从120㎡起到整层约1500㎡,满足从初创到总部的全周期发展需求。
智造研发舰群(1-3栋)
1380-1570㎡整层无柱空间丨500KG/m²起荷载标准
直播产研一体化空间设计丨高速电梯峰值等候<35秒
轻生产母港(4-5栋)
17层垂直产业带丨1400㎡整层轻生产智造基地
3吨级货梯直连云仓丨72小时全球物流响应
人才社区(6栋)
涵盖单房/双房多元户型,配备智能家居与独立卫浴,楼下即享员工食堂、文化活动中心,构建“办公-居住-休闲”24小时生活圈,为直播电商人才提供高效舒适的栖息之所。
来源:咚咚找房
声明:本文由入驻焦点开放平台的作者撰写,除焦点官方账号外,观点仅代表作者本人,不代表焦点立场。


