402套住宅,价格8字头?福田京基宸悦府户型首曝光
扫描到手机,新闻随时看
扫一扫,用手机看文章
更加方便分享给朋友
今日,家在深圳网友爆料,福田梅林的京基宸悦府要开展示中心了。共402套,推建面约110-130平3-4房户型,预计价格8字头。
京基宸悦府位于梅华路北侧,东临中康路,西邻梅村路,其占地19874㎡,建筑面积229772㎡,是集住宅、办公、商务公寓、沿街商业及幼儿园为一体的高端综合型居住社区。
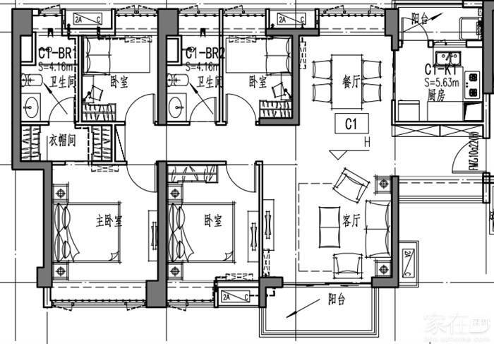
项目户型图首曝光
京基上梅林新盘所处区域范围内,已有较为成熟的社区配套。
东侧与重建中的梅林小学紧挨着,重建后规划规模不少于36班;西侧为上梅林新村,局部环境的商业、人群密度较高,从居家环境的舒适度来说,较为一般;
南面北环大道,与城市快速交通的接驳效率高;东北面即上梅林地铁站已形成区域小型商圈,拥有购物中心卓悦汇及天虹商场两大商业体坐镇。
由于梅林开发*较早,片区内部住宅相对老旧。但也带来接地气的居住环境,生活气息浓厚,是深圳人的“宵夜天堂”。商业,生活配套就社区氛围都不错。
但其它配套,相对来说要弱一些,以至于住宅物业价值没能有更大的突破。
来源:深圳房地产信息网
声明:本文由入驻焦点开放平台的作者撰写,除焦点官方账号外,观点仅代表作者本人,不代表焦点立场。


