首付12.8万起?光明新盘折后低至2字头,预计11月24日开盘
扫描到手机,新闻随时看
扫一扫,用手机看文章
更加方便分享给朋友
光明又一“3字头”新盘即将入市,折后单价约2.74万/㎡起。
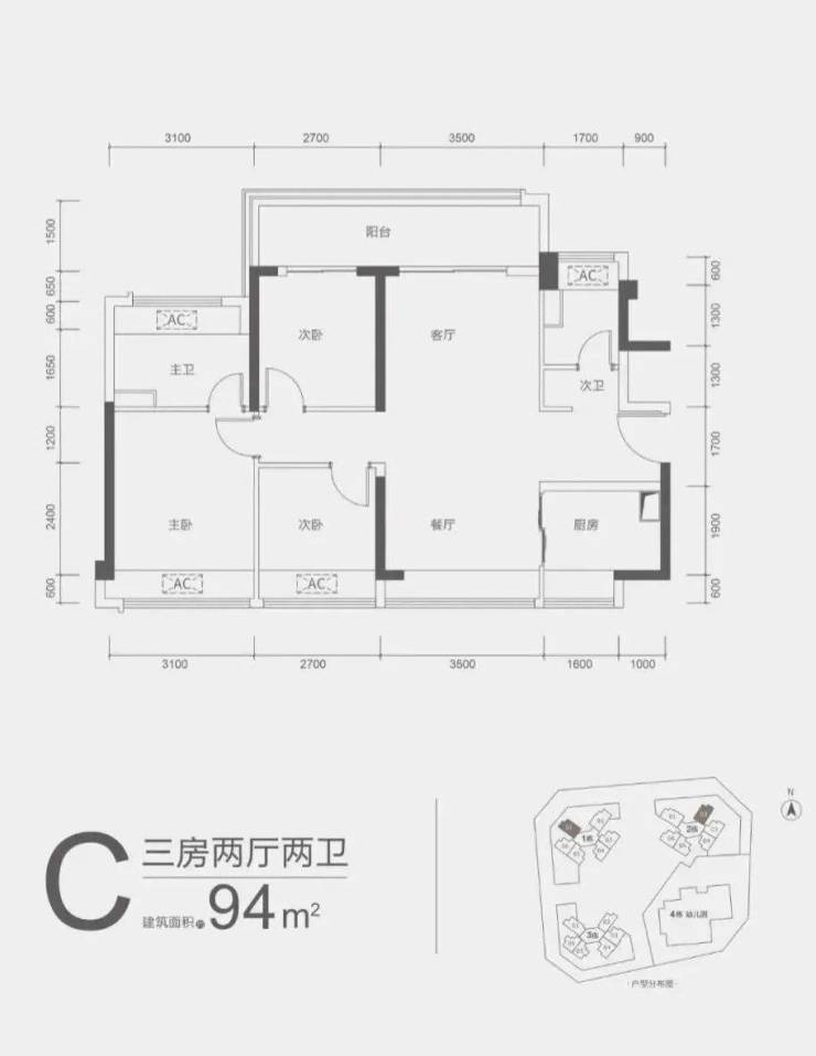
11月20日,位于光明玉塘街道的星辉兰玉庭获批预售许可证,本批推售186套房源,产品为建面约85-94-113㎡的3-4房,备案单价约3.3-3.9万/㎡,整体均价约3.6万/㎡,备案总价约282-437万/套起。项目于11月21日提交资料 + 诚意登记(诚意金5万),计划11月24日晚开盘选房。

据悉,项目开盘折扣约85折,折后总价约262万起,整区间如下:

而中介渠道透露,除开盘优惠外,项目还有“惊喜优惠礼包”,而礼包即为“返现”,交首付后返现金额28-35万不等,算下来的起步首付只需要13万不到。搜狐焦点致电售楼处,得到肯定的答复,不过这是否是合规操作,大家还需谨慎行事。

星辉兰玉庭位于光侨路南侧,项目南侧是玉律学校。
项目由3栋45层建筑+1所幼儿园组成,共规划558套房源,其中商品房474套,安居房84套,车位752个。
本批所推的186套房源位于1栋。

目前楼体已经是准现房状态,据悉项目预计2025年年底交付。
星辉兰玉庭的户型图已经流出,主打阔景阳台。
星辉兰玉庭周边生活配套少有欠缺,距离地铁口及商业有一定的距离。
不过项目还是从价格出发,在周边两个备案价在4.3万/㎡的情况下,兰玉庭备案价低不说,还有一个85折+“大礼包”
不过,这样“自杀式”走量能行得通吗,让我们拭目以待!
声明:本文由入驻焦点开放平台的作者撰写,除焦点官方账号外,观点仅代表作者本人,不代表焦点立场。


