深圳本周5盘超2000套住宅取证,房价最低仅3字头!
扫描到手机,新闻随时看
扫一扫,用手机看文章
更加方便分享给朋友
据深圳房地产信息平台公示,截至发稿前,本周已有5个住宅新盘取证,其中光明连续三天连发3张预售许可证,共批预售房源1688套;龙华北站也上新,单盘推出464套房源;而南山的香山道公馆,则是尾盘加推,共备案5套房源。

5盘备案信息如下:
01
满京华金硕华府共备案704套房源,房源位于2栋、3栋,主推户型建面约89-140㎡3-4房,备案单价约4.1-5.1万/㎡,整体均价约4.68万/㎡,总价区间约368-722万/套。
02
润曜府本次共备案487套住宅房源,位于2栋、3栋,主推户型建面约89-99㎡2-3房,备案单价约4.37-5.9万/㎡,整体均价约5.1万/㎡,总价区间约336-566万/套。
03
金地峰境誉府
金地峰境誉府本次共备案497套住宅房源,位于A、B、C、D座,主推户型建面约83-121㎡3-4房,备案单价约4.34-5.74万/㎡,整体均价约5.1万/㎡,总价区间约362-693万/套,带装修交付。
04
超核紫芸府
超核紫芸府本次推出464套住宅房源,位于1栋,主推户型建面约82-93平3房,备案单价约6.25-7.4万/㎡,整体均价约7.07万/㎡,总价区间约514-697万/套。
05
香山道公馆
香山道公馆本次备案5套住宅房源,主推户型建面约110-142㎡,备案单价约8.9-12.6万/㎡。
多盘齐发,价格必卷,本次也不例外。
满京华金硕华府官宣开盘5重优惠,折扣综合为(总价-9999元)*9折;峰境誉府官宣开盘6大重礼,开盘折扣约94折再有额外折扣以及装修、到访礼。润曜府是加推房源,前两批在售房源目前折扣为92折,甚至有推87折的工抵房,本批房源的折扣方案尚未公示,可参考折扣为92折。
而超核紫芸府的折扣力度更猛,据悉,开盘综合打到了91折,具体包括:诚意登记99折、冻资98折、认购98折、开盘97折、准签99折等。
拿证的5盘中,目前仅4盘开始认购中,而这4盘的折后起步单价如下:
金硕华府折后约3.8万/㎡起;
润曜府折后约4万/㎡起;
峰境瑞府折后约4.1万/㎡起;
超核紫芸府折后约5.69万/㎡起。
(以上仅供参考,具体优惠方案及价格以项目官方公示为准)。
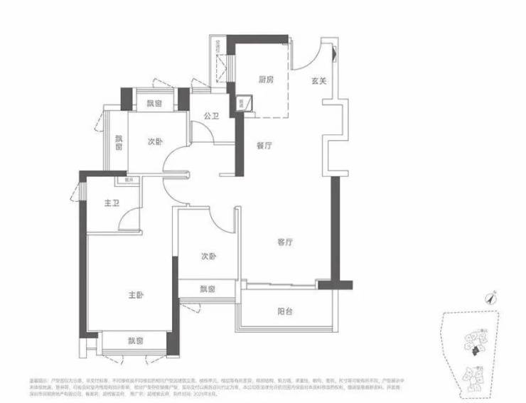
超核紫芸府
超核紫芸府位于龙华区民治街道民塘路与玉龙路交汇处,紧临深圳北站,周边还有多个大家关注的项目,位置相当不错。
据资料显示,项目土地面积8720.51㎡,建面69873㎡ ㎡,容积率5.76;住宅 46850 ㎡,机动车470 辆。
项目规划建设为一栋超高层住宅,分为2个单元,其中一个单元为45层,另一个单元为46层,总户数为552户,其中86户为保障性住房。
超核紫芸府前身为龙华A806-04030宗地,2022年11月25日,由华润以15.88亿元+竞配面积1200平拿下,建成后普通商品住房平均销售价格不高于72450元/平方米(不含室内装修价格),安居型商品房平均销售价格不高于36200元/平方米(不含室内装修价格)、最高销售价格不高于38000元/平方米(不含室内装修价格)。
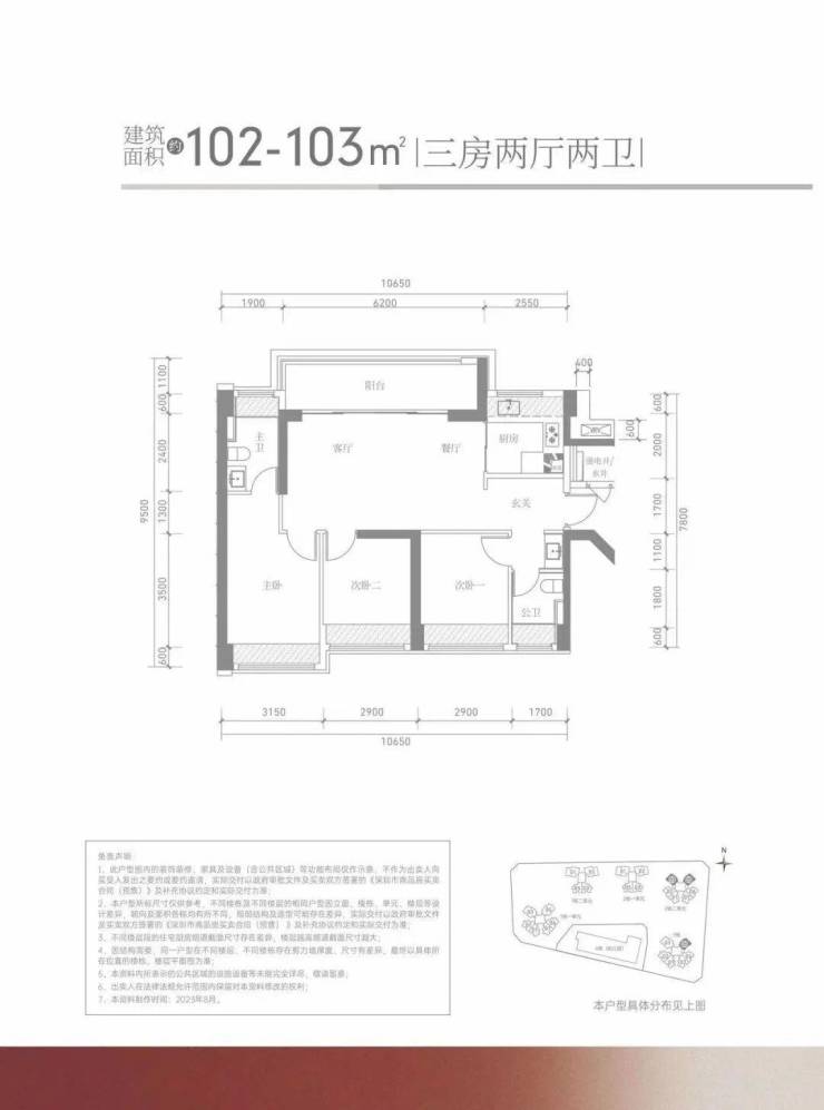
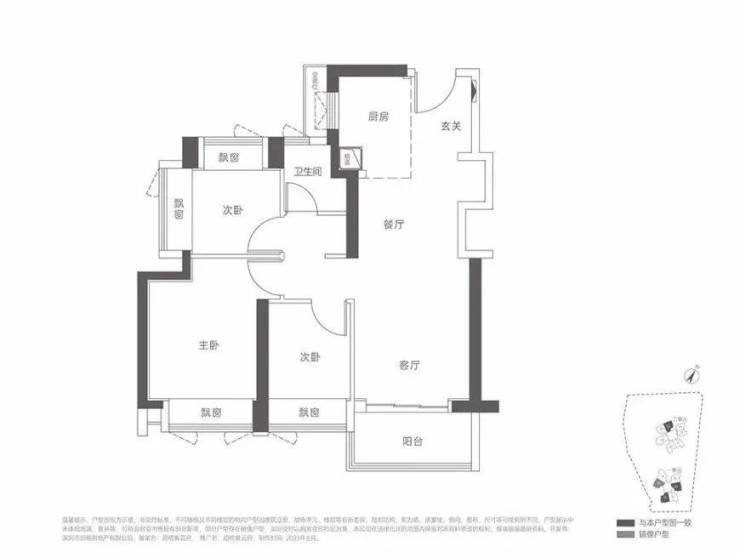
超核紫芸府此次推售464套住宅房源,户型建面约82-93平3房。
82㎡A户型
82㎡B户型
93㎡C户型
93㎡D户型
93㎡E户型
户型分布图
配套方面:
轨道交通:项目是北站片区距离深圳北站地铁站最近的一个楼盘,大概400米左右,深圳北站地铁目前就有4-5-6号线,在建中有27号线,还有一条深惠城际。
商业配套:目前深圳北站有缤果空间,附近还有星河Coco City、红山6979等集中商业,而由华润代建的万象系列的商业将进一步提升片区商圈。
教育资源:项目周边有龙腾学校、深圳外国语龙华学校,同时附近还有在建设的格致中学民治学校,具体学区划分以当年教育局公示为准。
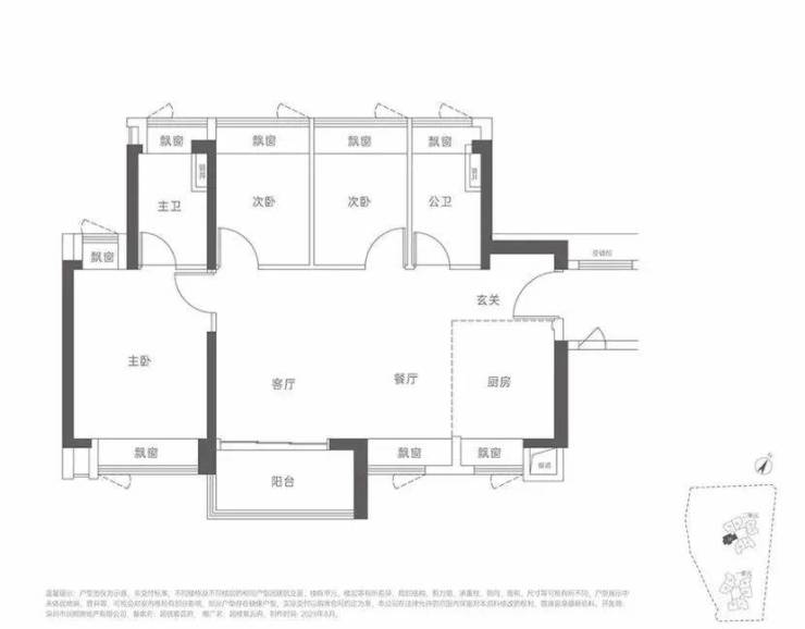
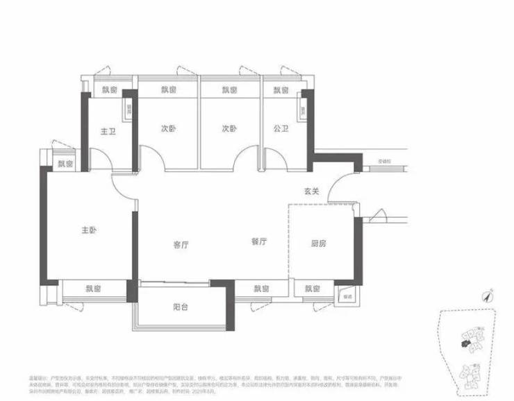
满京华金硕华府
满京华金硕华府位于光明中心光辉大道与狮山三街交汇,距离6号线光明站直线距离约850米(百度地图测距)。
所处板块目前以开发建设为主,其中,片区内最大的旧改项目-满京华狮山项目总占面约11万㎡,总建面约88万㎡,物业类型涵盖住宅、商业、办公,项目分多期开发,分别为满京华金硕华府、满京华金硕瑞府、满京华金硕臻府。
图|满京华楼村旧改整体效果图

图|源于网络
首期将推满京华金硕华府占地面积约2.28万㎡,建面约19.8万㎡,计容积率建面约14.4万㎡,容积率6.2,规划停车位1300辆。本期规划总住宅户数1138户,本期推出房源704套。
满京华金硕华府共由3栋5个单元的超高层住宅及1栋12班幼儿园组成,楼栋物理层高46-48层。现阶段户型面积段和楼栋分布已经流出,户型面积段有建面约88㎡、98㎡、103㎡、118㎡、141㎡五个户型,其中主力户型建面约98㎡为主。(具体以开发商最终公示为准)
图 |源于水印
满京华金硕华府样板间开放中,预计9月23日选房,或在9月15日上线I深圳诚意登记,感兴趣的网友可以预约看样板间。
左右滑动查看更多
配套方面:
轨道交通:满京华金硕华府临近地铁6号线光明站,经光明站可搭乘支线前往科学城板块;此外6号线南延线目前在建,建成后经2站可达光明城,可换成在建地铁13号线和光明城的高铁;经地铁6号线到凤凰城站,未来也可换乘地铁13号线(在建)。
商业配套:满京华金硕华府府自身规划约6416㎡商业,整个狮山项目自带超3万㎡创意街区,临近多个小区也配建有底层商业。
大型的商业配套还可前往光明大街-凤凰城一带,集中了绿地集中商业4.3万㎡(待建)、星河cococity6.3万㎡(在建)、龙光蓝鲸世界约10万㎡商业、万达广场约4.8万㎡。
教育资源:整个项目配建有3所幼儿园,其中一期的金硕华府配建为12班幼儿园;此外项目西侧和南侧规划为两宗教育用地,将建36班九年一贯制学校和36班中学(具体以最终规划公示为准)。
项目东侧在建一所小学(狮山小学),周边还有东周小学、光明小学、华师大附属光明星河小学、修远小学、深圳小学光明曙光学校等;
项目南侧规划一所初中,区域内还有光明中学、华夏中学等;
休闲生态景观:项目周边最大的市政休闲配套莫过于科学公园,这座地标性的公园约2.08平方公里,预计2023年开园。
除了科学公园,临近还有翠湖公园、东周文化公园、狮山公园、光明新城公园、虹桥公园、光明小镇欢乐田园等,片区休闲资源丰富。
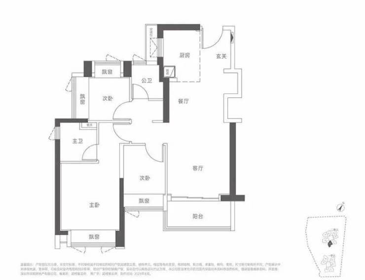
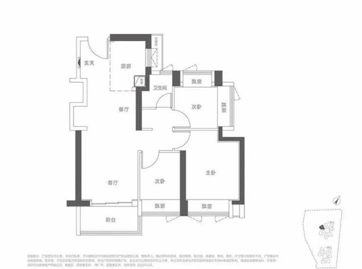
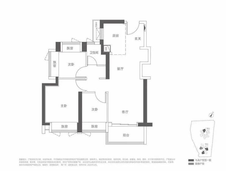
润曜府
润曜府位于光明区凤凰街道侨凯路与科林路交汇处西北侧,旁边就是润晖府,光明城高铁综合体范围内,与地铁13号线同观路站(建设中)及枢纽光明城站相邻。
项目占地面积约1.89万㎡,规划总建筑面积约16.33万㎡,计容积率建面约11.35万㎡。其中,住宅约10.37万㎡,由4座建筑组成:1栋、2栋、3栋是47-48层高的纯商品住宅楼;5栋29层高的普通商品住宅+自持保障租赁住宅楼;4座是3层高的18班幼儿园教学楼;
润曜府首批5栋于4月入市,共162套房源,随后5月加推1栋,共推出304套房源,前两批总货量加起来共466套。主推户型建面约69㎡、81㎡、89㎡、95㎡、99㎡,目前除了69㎡房源所剩不多外,其余户型均有在售,而本次推出的主力户型为89-99㎡房源。
周边配套:
交通配套:临近光明城站13号线,连接光明主干道光侨路,紧邻高铁站光明城站;
教育配套:项目配建18班制幼儿园,旁边有规划九年制学校,周围汇聚光明外国语学校、南方科技大学附属光明(凤凰)学校;
商业配套:蓝鲸世界,万达广场等多商业集萃,规划打造约66万㎡高铁商圈;
生活配套:600米左右能到达百花园公园,1公里左右到达虹桥公园,毗邻光明文化艺术中心、集中演艺中心、美术馆、图书馆、城市规划展览馆于一体。
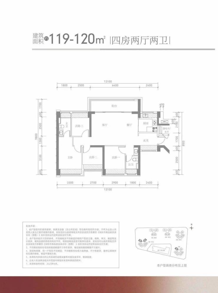
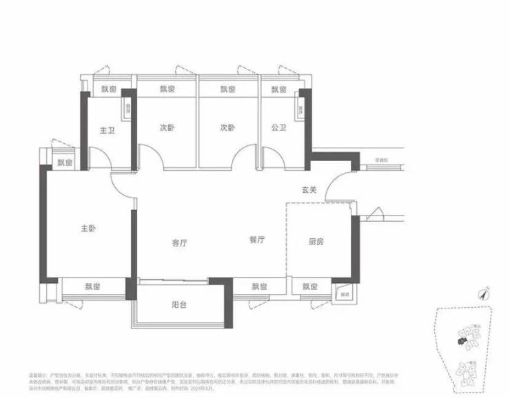
峰境誉府
金地峰境誉府位于光侨路西侧、规划碧竹二路北侧,项目占地面积1.5万㎡,建筑面积约7.9万㎡,规划为4栋高层共500户,停车位610辆。
项目规划由4座高层建筑组成,四个角落各坐落一栋,其中1A座、1B座、1C座是32层高的住宅楼、1D座是30层高的住宅楼,四座建筑底部设置有1层裙楼商业。
推出建面约83-120㎡3-4房单位,约 500套住宅,目前已开放展厅和实体样板房。
*点击查看大图
配套方面:
轨道交通:距离6号线光明大街站约1公里,距离6号线支线南延的光明小镇站约500米,开通后经两站可达光明城高铁站或换乘地铁13号线。
教育资源:项目1.5公里范围内现分布有光明中学、光明小学、东周小学、华南师范附属星河小学、修远小学、华夏中学等学校。
根据光明区教育公布的2022年学区划分,项目小学学区为:光明小学、东周小学、星河小学、修远小学、凤凰学校、中山大学深圳附属学校;初中学区为:深圳实验光明学校、光明区高级中学、光明中学、华夏中学、凤凰学校、中山大学深圳附属学校。具体以区教育局当年的学区划分为准。
商业配套:深房光明里自带有1.5万㎡商业,隔壁的安居项目配建有裙楼集中商业,周边成熟社区的底商也可以共享。1.5公里左右的凤凰城,龙光蓝鲸世界、万达广场已经开业,商业配套醇熟。
声明:本文由入驻焦点开放平台的作者撰写,除焦点官方账号外,观点仅代表作者本人,不代表焦点立场。


