超级体量旧改!天安云谷3期细节曝光,共5886套住宅
扫描到手机,新闻随时看
扫一扫,用手机看文章
更加方便分享给朋友
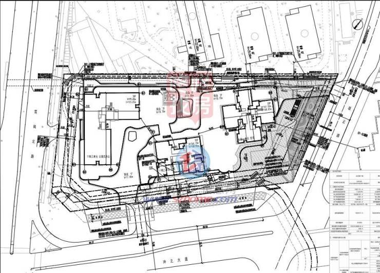
近日,龙岗区城市更新和土地整备局公布了坂田街道云谷里1栋—13栋的《深圳市建设工程规划许可证》和屋顶总平面图。
天安云谷项目是目前坂田北最大体量的旧改,总体量289万㎡,比佳兆业城市广场(180万㎡)和星河银湖谷(160万㎡)都要大,相当于华润大冲旧改的规模。
这里的天安云谷里1栋-13栋就是天安云谷三期中的一部分,项目总体分为六期,一二期的产业研发用房已于2018年对外开售。如今,进度缓慢的三期也迎来了实质性进展,1-13栋已经拿下建设许可证。
根据本次公布资料显示,本次三期的1-13栋,包含住宅、商业公寓、商业、酒店以及两所幼儿园,其中,提供住宅共5886套(不含保障房),保障房共640套。
深圳天安云城投资发展有限公司开发建设的云谷里1栋、2栋(宗地号:G03302-0142)项目位于龙岗区坂田街道智慧路与坂李大道交汇处。
建设用地面积25047.06平方米,用地性质为二类居住用地,新建建筑1栋,1栋项目建设规定总建筑面积为64891平方米,其中住宅58991平方米、社区管理用房300平方米、社区服务中心400平方米、文化活动室1500平方米、社区健康服务中心2000平方米、社区警务室100平方米、邮政所100平方米、社区老年人日间照料中心1500平方米。
建设用地面积25047.06平方米,用地性质为二类居住用地,新建建筑1栋,2栋项目建设规定总建筑面积为93259平方米,其中住宅76009平方米、商业15133平方米、物业服务用房317平方米、图书馆1800平方米。
根据1栋、2栋指标表显示,1栋分为两个单元,,其中一单元45层,二单元52层,2栋分为三个单元,均为45层。社康等设在1栋裙楼下,商业和图书馆等设在2栋裙楼下。
根据建筑许可证显示,1栋448户,2栋有732户,均全部为商品房。
云谷里3-8栋(宗地号:G03302-0145)项目位于龙岗区坂田街道冲之大道与坂李大道交汇处,紧挨1栋、2栋并在其北面。
建设用地面积29792.21平方米,用地性质为二类居住用地,新建建筑6栋,建设规定总建筑面积为181810平方米,其中住宅176710平方米、商业1436平方米、物业服务用房364平方米、12班幼儿园3300平方米(占地3600平方米)。
根据经济指标表显示,3栋、5栋、6栋、8栋均未分单元,3栋、5栋楼下有商业,7栋分为一单元和二单元,4栋为幼儿园,住宅的楼层在48层-54层之间。
根据建设许可证显示,总户数1420户,均为商品房。
云谷里9栋、10栋(宗地号G03201-0027)项目位于龙岗区坂田街道坂李大道和冲之大道交会处西侧。
建设用地面积34550.12平方米,用地性质为二类居住用地+商业用地,新建建筑2栋,建设规定建筑面积227410平方米,其中住宅156000平方米(其中保障性住房34930平方米),商业17985平方米(含商业文化设施3170平方米),酒店45000平方米,物业服务用房455平方米,社区管理用房300平方米,社区服务中心400平方米,文化活动室1500平方米,社区警务室100平方米,邮政所100平方米,幼儿园5000平方米(用地面积5400平方米,班数18个),公共厕所120平方米,小型垃圾转运站300平方米,地下通信机房150平方米。
根据经济指标表显示,9栋分为7个单元,包含保障房、住宅和酒店,其中,一单元是保障房,二三单元和四五单元都是住宅楼,层高53-54层,六单元和七单元都是酒店,分别层高16层、27层,10栋是一个18班幼儿园。
根据建筑许可证显示,9栋、10栋总户数有1875户,其中保障房有640户,也就是商品房有1235户。
云谷里11栋(宗地号G03302-0141)项目位于龙岗区坂田街道坂李大道和冲之大道交会处西侧。
用地面积15021.55平方米,用地性质为二类居住用地+商业用地,新建建筑1栋,建设规定建筑面积104080平方米,其中住宅57850平方米,商业16021平方米(含商业文化设施815平方米),公寓式办公(商务公寓)30000平方米,物业服务用房209平方米。
根据经济指标表显示,11栋共有三个单元,其中一二单元为住宅,均为50层层高,三单元为商务公寓,为28层。
根据建设许可证显示,住宅总共有675户,不含保障房。
云谷里12栋项目(坂田街道天安岗头城市更新单元三期02-03地块,宗地号:G03302-0143)位于龙岗区坂田街道岗头社区雪岗北路(环城路)与规划冲之大道交会处。
用地面积16662.94平方米,土地性质为二类居住用地+商业用地,新建建筑1栋,允许建设总规定建筑面积113710平方米,其中:住宅70210平方米、公寓式办公(商务公寓)20000平方米、商业22272平方米(含商业文化设施1125平方米)、社区菜市场1000平方米、物业服务用房228平方米。
根据经济指标表显示,12栋分为一二三单元,其中一二单元为住宅,三单元为商业公寓。
根据建筑许可证显示,住宅总共920户,无保障房。
云谷里13栋项目(坂田街道天安岗头城市更新单元三期02-05地块,宗地号:G03302-0144)位于龙岗区坂田街道岗头社区雪岗北路(环城路)与规划天安路交会处。
用地面积10571.33平方米,土地性质为二类居住用地,新建建筑1栋,允许建设总规定建筑面积63425平方米,其中:住宅46175平方米、商业17123平方米、物业服务用房127平方米。
根据经济指标显示,13栋共有两个单元,均为住宅,层高是项目中较矮的,两个单元都是44层。
13栋住宅总共有456户。
来源:咚咚找房
声明:本文由入驻焦点开放平台的作者撰写,除焦点官方账号外,观点仅代表作者本人,不代表焦点立场。


