1466套房,龙岗星河盛境两地块规划公示,3期已开展厅
扫描到手机,新闻随时看
扫一扫,用手机看文章
更加方便分享给朋友
近日 ,位于龙岗的星河盛境(窝肚村旧改),盛境御府(宗地号:G08216-0221)及盛境瑞府(宗地号:G08217-0249)建设工程规划许可证及屋顶总平面图对外公布。
项目位于龙岗区园山街道,由深圳市巨源恒名房地产开发有限公司建设开发,为窝肚村旧改其中两地块,两个地块共计1466套住宅房源。
据了解,盛境御府作为星河盛境三期产品,目前已开放展厅, 推83-113平3-4房单位。据住建局第四季度新盘计划显示,盛境御府将推486套住宅房源,288套商务公寓。
据了解,项目总建筑面积约54万㎡,集住宅、商业、公寓、办公等于一体的综合体。
盛境御府(宗地号:G08216-0221)为三期产品,建设用地面积18206.65平方米,总建面134174.82平方米,住宅建筑54400平方米,规划618套住宅(其中保障性住房150户)。
另一地块,盛境瑞府(宗地号:G08217-0249),建设用地面积18321.57平方米,新建3栋建筑,建设规定总建筑面积为94700平方米,其中住宅85600平方米,规划848套住宅。
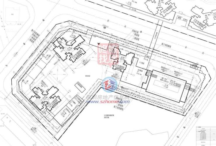
盛境御府(宗地号:G08216-0221)
盛境御府位于龙岗区园山街道,项目建设用地面积18206.65平方米,用地性质为二类居住用地+商业用地,新建建筑2栋,建设规定总建筑面积为97660平方米。规划618套住宅(其中保障性住房150户)。
其中住宅43480平方米、商业2204平方米、物业服务用房196平方米、办公(含母婴室44㎡)22000平方米、商务公寓13000平方米、社区健康服务中心1500平方米、社区老年人日间照料中心1500平方米、文化活动室1000平方米、便民服务站500平方米、再生资源回收站60平方米、小型垃圾转运站300平方米、公共厕所120平方米、环卫工人休息房30平方米、社区警务室50平方米、邮政所100平方米、安居型商品房10920平方米、地下公共充电站700平方米。,规划618套住宅(其中保障性住房150户)。
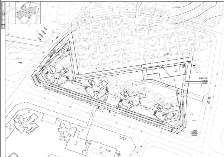
盛境瑞府(宗地号:G08217-0249)
项目位于龙岗区园山街道,建设用地面积18321.57平方米,用地性质为二类居住用地,新建建筑3栋;
建设规定总建筑面积为94700平方米,其中住宅85600平方米,商业6510平方米,9班幼儿园2400平方米(用地面积2700㎡),物业服务用房190平方米,社区体育活动场地(占地1500㎡)0平方米。
项目47/3层(149.99米),容积率5.36,车位766辆,住宅848套,套内小于90平760套,占比89.62%
关于开发商
据工商信息查询,深圳圳市巨源恒名房地产开发有限公司实际由星河控股集团控股。
星河控股集团成立于1988年。
旗下现有地产、金融、产业、置业、物业五大业务集团,业务涉及地产开发、城市更新、酒店管理、物业服务、金融投资、产业运营等多元领域,已成为国内大型综合性投资集团。
来源:咚咚找房
声明:本文由入驻焦点开放平台的作者撰写,除焦点官方账号外,观点仅代表作者本人,不代表焦点立场。


