4号线牛湖站旁“大城”,牛湖北旧改规划获批!龙华三旧改新进展
扫描到手机,新闻随时看
扫一扫,用手机看文章
更加方便分享给朋友
龙华三个城市更新单元有规划新进展!
其中包括龙华观澜旧改的两个“体量大城”项目,一个是牛湖北片区旧改获批,另一个是大布巷片区旧改规划修改!都是靠近地铁的旧改,特别是牛湖北项目,紧挨4号线牛湖站,体量也不小;大布巷旧改规划总容积753810㎡,体量也是很大的项目。
另外,龙华街道桓鸿铧地块城市更新单元规划也获批,建设一栋23层的产业研发大楼和一栋29层的宿舍。
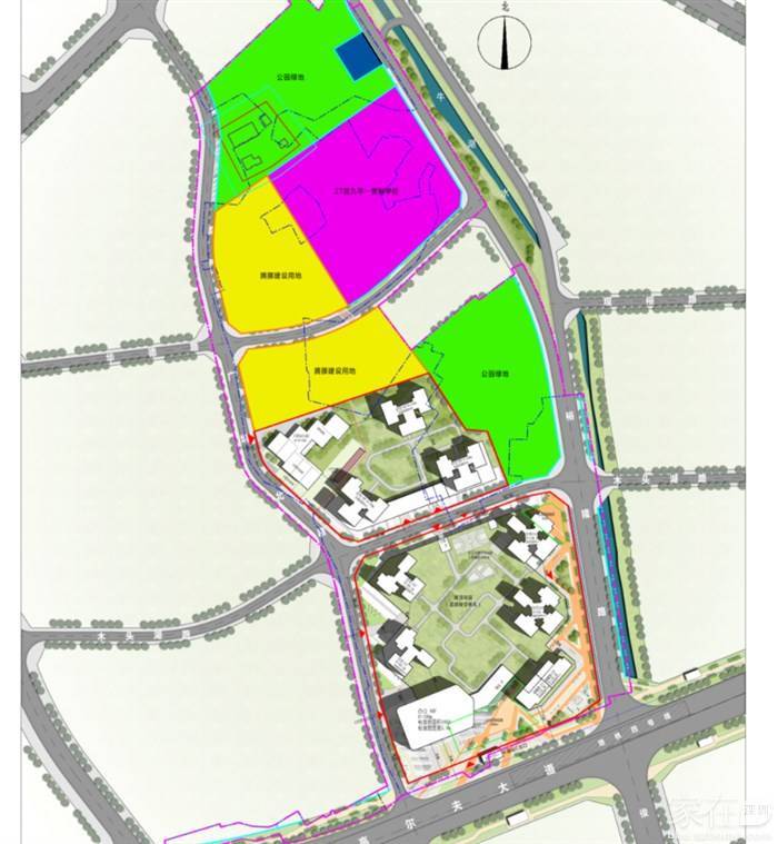
1月5日,龙华区城市更新和土地整备局发布《龙华区观澜街道牛湖北片区城市更新单元规划》。
项目拆除范围约8.1万平,规划总容积35.48万平。项目体量具有一定规模,但同时也意味旧改的难度增加,后续推进或许并不容易。
据公示的规划图显示,项目有3块住宅用地,住宅建筑面积约24.27万平(含公共租赁住房约4万平),配建2个公园,一个27班九年制公立学校,一个幼儿园。
据家在深圳网友爆料,项目最先对外卖的有7栋住宅,层高为49-57层。项目就在4号线牛湖站旁边,出行较为便利。
2022年1月,龙华区城市更新和土地整备发布《观澜街道牛湖北片区城市更新单元规划(草案)》。
项目位于观澜街道牛湖地区,高尔夫大道与广培北路交汇处的东北侧。
更新单元用地面积112611.6平方米,拆除范围用地面积81394.1平方米,开发建设用地面积40633.5平方米。
规划总容积354880平方米,其中住宅242740平方米(含公共租赁住房40320平方米),商业、办公及旅馆业建筑83080平方米,地下商业5000平方米,公共配套设施(含地下)24060平方米(含15班幼儿园建筑面积6810平方米,占地面积4000平方米;综合文化中心8470平方米;公交首末站2900平方米;社区警务室100平方米;社区健康服务中心1500平方米;社区服务中心400平方米;社区老年人日间照料中心750平方米;公共充电站700平方米;社区管理用房300平方米;社区菜市场500平方米;邮政所100平方米;社区级公共配套用房1530平方米)。另配建社区体育活动场地1500平方米。
1月3日,龙华区城市更新和土地整备局发布《龙华区观澜街道大布巷片区城市更新单元规划修改》。
地上地下空间控制图:
分期实施规划图显示,整个项目将分为4期开发。
项目位于龙华区观澜街道,西临龙华大道及梅观高速,东望观澜河,南近观澜大道。

该更新单元用地面积268401.4㎡,拆除范围用地面积219293.2㎡,开发建设用地面积117394. 4㎡(其中1275. 1㎡国有未出让的零星用地按照城市更新办法及其实施细则一并出让给单元实施主体)。规划总容积753810㎡,规划容积率6.4。
其中住宅599040㎡(含公共租赁住房79670㎡),商业、办公及旅馆业建筑101700㎡,公共配套设施(含地下) 53070㎡(含18班幼儿园建筑面积7800㎡,占地面积5400㎡; 15班幼儿园建筑面积6810㎡,占地面积4500㎡;文化活动中心20000㎡;公交首末站7200㎡;社区警务室100㎡;社区健康服务中心2000㎡;社区老年人日间照料中心2000㎡;小型垃圾转运站300㎡;环卫工人作息房40㎡;公共厕所120㎡;再生资源回收站100㎡;公共充电站1100㎡;社区管理用房600㎡;便民服务站800㎡;社区菜市场1050㎡;邮政所300㎡;社区级公共配套用房2750㎡)。另配建社区体育活动场地7000㎡。

1月5日,龙华区城市更新和土地整备局发布《龙华区龙华街道桓鸿铧地块城市更新单元规划》。
2023年3月,龙华区城市更新和土地整备局发布《龙华区龙华街道桓鸿铧地块城市更新单元规划(草案)》。
项目位于东环一路与油松路交界处东南侧。
更新单元用地面积13655.8平方米,拆除范围用地面积13127.6平方米,其中开发建设用地面积6238.7平方米。规划容积55250平方米,其中产业研发用房38680平方米(含创新型产业用房4650平方米),产业配套用房14570平方米(含小型商业服务设施800平方米,配套宿舍13770平方米),公共配套设施(含地下)2000平方米(含文化活动室1000平方米,社区级公共配套用房1000平方米)。
该项目规划建设一栋23层的产业研发大楼和一栋29层的宿舍。
来源:深圳房地产信息网
声明:本文由入驻焦点开放平台的作者撰写,除焦点官方账号外,观点仅代表作者本人,不代表焦点立场。


