宝安灵芝地铁站旁,中南25区旧改新名字“珺悦名都”,377套住宅
扫描到手机,新闻随时看
扫一扫,用手机看文章
更加方便分享给朋友
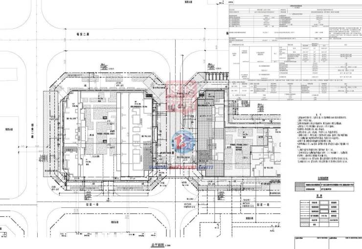
近日,深圳市宝安区城市更新和土地整备局公布新安街道珺悦名都(A007-0585、A007-0586)两地块《建设工程规划许可证》及总平面图的通告。
珺悦名都位于新安街道前进一路与裕安二路交汇处南侧,由深圳市金中盛投资有限公司开发建设,项目分为01、02地块,共规划377套住宅。
其中,01地块(宗地:A007-0585),总建筑面积68599.02平方米,住宅面积15210平方米,总户数203户(商品住宅70户,保障性住房116户,回迁房房17户)。
02地块(宗地:)A007-0586,总建筑面积71414.13平方米,住宅面积16950平方米,商业2031平方米,总户数174户。
珺悦名都(宗地号:A007-0585)
01地块总建筑面积68599.02平方米,住宅面积15210平方米,商业1744平方米,总户数203户(商品住宅70户,保障性住房116户,回迁房房17户),新建1栋建筑,含一单元31层住宅楼及二单元37层办公楼。
珺悦名都(宗地号:A007-0586)
02地块(宗地:)A007-0586,总建筑面积71414.13平方米,住宅面积16950平方米,商业2031平方米,总户数174户,新建1栋建筑,含二单元31层住宅楼及二单元30层办公楼。
据了解,宝安区新安街道宝城25区及新安25区城市更新单元(范围调整)规划项目位于宝安区新安街道25区,前进一路与创业二路交汇处西北侧,被纳入《2015年深圳市城市更新单元计划第二批计划》,2016年9月进行专规草案公示。
宝城25区及新安25区城市更新单元拆除用地面积152030.4㎡,开发建设用地面积106344.1㎡,计容积率总建筑面积785000㎡(含地上、地下)。
其中:住宅256000㎡(含保障性住房53430㎡),商业、办公及酒店合计434760㎡(含地下商业31100㎡),商务公寓77100㎡,公共配套设施17140㎡(含12班幼儿园一所,独立占地3600㎡,建筑面积3200㎡,公交综合车站建筑面积6000㎡,110KV变电站建筑面积2500㎡),设置一处地下公共充电站1100㎡。
宝城25区及新安25区城市更新项目分期实施,一期A项目和二期A项目、三期A项目实施主体同样为中粮地产发展(深圳)有限公司,一期B项目实施主体为中国中电国际信息服务有限公司。
宝城25区及新安25区城市更新项目一期C项目位于宝安区新安街道前进一路与裕安二路交汇处。拆除用地面积17178.2㎡,开发建设用地面积11299.9㎡。
一期C项目实施主体为深圳市金中盛投资有限公司。查询工商信息显示,该公司的实际控制人为中南集团。

中南集团成立于1988年,2020年全集团实现综合营收3165亿元,下有上市公司中南建设(SZ000961),形成“4+1”业务布局——中南置地、中南建筑、中南高科、中南实业投资和中南教育。
旗下中南置地是中南集团旗下房地产旗舰品牌,依托母公司多产业链融合联动的优势,中南置地已打造出精品住宅、商业地产、特色小镇、旅游养生、产业园区五大业态。目前土地储备约4500万㎡,先后开发过300个项目。
来源:深圳房地产信息网
声明:本文由入驻焦点开放平台的作者撰写,除焦点官方账号外,观点仅代表作者本人,不代表焦点立场。


