484套住宅,光明深物业御棠上府规划出炉,限售价4.34万/㎡
扫描到手机,新闻随时看
扫一扫,用手机看文章
更加方便分享给朋友
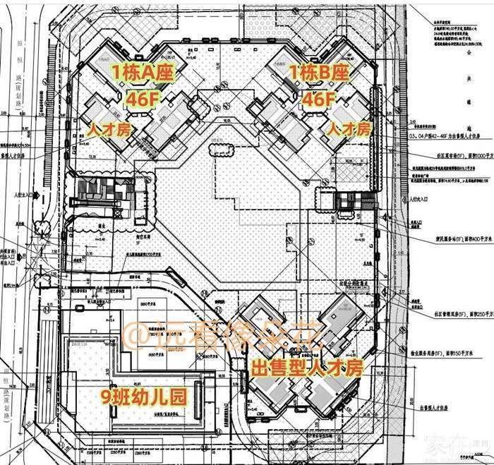
网友爆料称,光明的深物业御棠上府总平面图已经出炉,项目由两栋住宅+一栋出售型人才房+9班幼儿园组成。
项目位于光明区玉塘街道松白路与长岗三路交汇处西南角,土地使用面积为14901.8平米,该地块挂牌起始价141000万元,最高限制地价162100万元,竞可售公共住房面积最高限制20700平方米,土地使用年限70年。
2021年11月25日,10家企业参与竞拍,最后由深物业集团竞得;建成后商品房限售4.34万/㎡,人才房最高限售2.73万/㎡。
根据规划显示,项目普通商品房484户,出售型人才房388户,停车位为1050个。
项目规划总用地面积约1.5万㎡,总建面约12万㎡,规定计容建面约8.2万㎡,建筑容积率≤5.5。
其中,住宅约7.5万㎡,包含出售型人才住房约2.1万㎡;物业服务用房150万㎡;商业2000㎡;社区管理用房250㎡;便民服务站400㎡;社区菜市场1000㎡;以及一所9班幼儿园3000㎡(占地面积不小于2700㎡)。
从现阶段公示的效果图来看,项目主体除独立占地的9班幼儿园外,由三栋超高层住宅塔楼及沿街商业裙楼构成。
另规划了机动车泊位数不少于1050辆,充电桩设置比例应不低于泊车位数量的 30%。
项目周边以产业、居住为主,和松白路一路之隔的为光明高新技术产业园,目前形成了一定的产研规模。
沿着光侨路,布局有普联科技、迈瑞、欣旺达、华星光电、深圳湾实验室等高新技术企业及研发平台。
此外,项目离勤诚达正大城较近,可享有其综合社区配套,周边亦有卓越、佳兆业等旧改项目储备中。
交通方面,目前离地铁较远,最近的地铁6号线长圳站2.4公里。
来源:深圳房地产信息网
声明:本文由入驻焦点开放平台的作者撰写,除焦点官方账号外,观点仅代表作者本人,不代表焦点立场。


