13号线月亮湾站,深铁阅洺境花园平面图公示!分两期开发
扫描到手机,新闻随时看
扫一扫,用手机看文章
更加方便分享给朋友
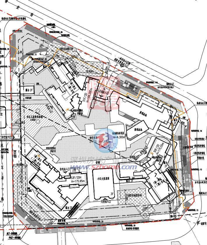
光明13号线车辆段综合开发项目—深铁阅洺境花园平面图已出!
近日,深圳市规划和自然资源局光明管理局公示阅洺境花园项目《建设工程规划许可证》及总平面图。
深圳市地铁集团有限公司建设的“阅洺境花园”项目(宗地号:A614-0522)位于光明区凤凰街道东明大道与松白路交汇处东北侧。
项目分为一期、二期开发,东西两个地块开发,中间用空中廊桥相连,总共7栋超高层住宅,计划于下半年入市。
阅洺境花园项目建设用地面积36471.92平方米,其中一期22091.95平方米,二期14379.97平方米;总建筑面积313722平方米,一期189760平方米,二期123962平方米。
机动车停车位2018个其中(680个/1338个),含充电车位607个,含商业配套车位82个。
住宅建筑面积199290平方米,其中,商品房179360平方米,保障性租赁住房19930平方米。商业建筑面积(含消防控制室)8840平方米。
住宅总户数1734 户,其中:保障房386户,商品房1348户。其中一期1184户,其中保障房386户、商品房798户,二期550户,其中商品房550户。楼层在49层-54层之间。
一期包括2栋一单元、2栋二单元、2栋三单元和2栋四单元。还包括一期幼儿园以及社区儿童游戏场地。
二期包括1栋一单元、1栋二单元、1栋三单元。还包括一个景观游泳池。
一期住宅建筑面积118470平方米,其中商品房98540平方米,保障性租赁住房19930平方米;二期住宅建筑面积80820平方米,其中,商品房80820平方米。
深铁阅洺境位于光明凤凰街道13号线车辆,紧邻在建的地铁13号线的月亮路站,1站可到凤凰城,3站可到光明城高铁站,11站到南山。
周边有东坑湿地公园、鹅颈水湿地公园,以及明湖城市公园等。
来源:咚咚找房
声明:本文由入驻焦点开放平台的作者撰写,除焦点官方账号外,观点仅代表作者本人,不代表焦点立场。


