比周边便宜近1万/㎡!总价2字头起!龙华又一低价新盘取证
扫描到手机,新闻随时看
扫一扫,用手机看文章
更加方便分享给朋友
龙华再上低总价上车盘,折后总价2字出头起!
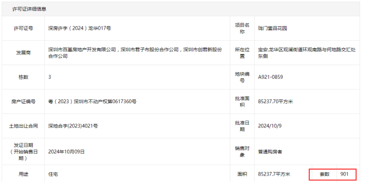
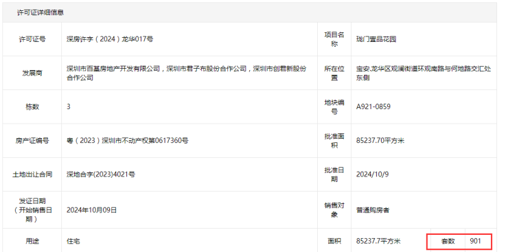
10月9日,位于龙华观澜街道的珑门壹品获批预售许可证,共备案901套住宅房源,项目主推建面约69-116㎡2-4房产品,备案均价约3.88万/㎡,总价区间约231-574万/套。

根据取证公告,项目项目包含股份公司所有物业住宅185套、回迁安置物业住宅61套。
截至发稿,项目公众号尚未发布开盘公告,优惠折扣暂不明,目前来看珑门壹品的起步总价是龙华商品房住宅的最低上车门槛。
珑门壹品的备案价3.88万/㎡的价位在区域内还算有优势。与项目同板块的山水华庭,2021年入市备案价均价约4.76万/㎡,与珑门壹品有将近1万/㎡的价差(优惠前),相对而言有一定的价格优势。
不过,珑门壹品所处地段偏远,与东莞凤岗相邻,周边商业配套缺失,虽然临近高速路口,但短期内临近无地铁线路规划,生活较为不便。此外,珑门壹品的住宅除了商品房外,还有回迁房、保障房、股份公司返还物业,小区业主圈层不纯粹。这些硬伤是价格难以掩盖的。
项目介绍:
珑门壹品位于龙华区观澜街道君子布社区,环观南路与平大路交汇处,东侧是观澜山水田园,南侧为龙华观澜实验学校,大区域临近龙岗平湖。
珑门壹品规划住宅建筑面积11.7万㎡,含保障房3806㎡;商业、办公、旅馆业建筑面积3.3万㎡;公共配套设施1.2万㎡,含9班幼儿园建筑面积3000㎡。
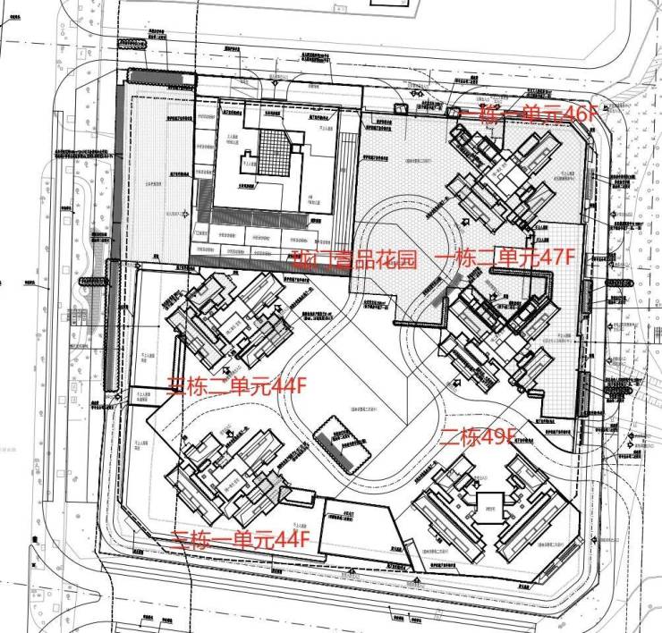
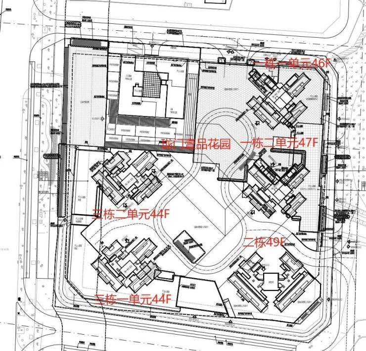
项目共规划5栋超高层单元楼及一栋幼儿园,整体围合式布局。其中,1栋1单元住宅46F,1栋2单元住宅47F,2栋住宅49F,3栋1/2单元住宅44F,4栋规划1所幼儿园
总住宅量1203套,可售商品房有901套,保障房56套,回迁房246套(股份公司物业185套、回迁安置物业住宅61套。),1栋1单元3梯5户设计,其余栋数都是3梯6户设计,规划停车位1292个,车位占比约1:1.07。。
目前珑门壹品产品户型为建面约68-84-90-114-116㎡2-4房产品,
其中,68㎡的2房2厅1卫位于3栋1单元02户型,仅14套。
84-85㎡的3房2厅2卫是项目的主力户型,共有357套
101㎡、116㎡同为4房2厅2卫户型.
编辑
配套方面:
商业配套:项目配建有部分商业,但步行范围内无大型商业配套,需前往直线距离3公里左右的观澜湖新城MH MALL,或者龙岗平湖片区的融悦世方里,融湖广场,万达广场等商业。
轨道交通:目前项目距离最近的4号地铁线牛湖站步行距离约2.6公里(百度测距),需公交或电动车换乘到地铁口。
不过项目临近清平高速出入口,自驾前往市区相对便捷。
教育配套:项目自带1所幼儿园,根据2024年龙华区教育局学区划分,项目小学学区划分在德风小学、龙华观澜实验学校小学部、龙华教科院第二附属学校小学部;
初中学区划分在龙华观澜实验学校初中部、龙华教科院第二附属学校初中部;另外还有龙华高级中学教育集团观澜校区针对全龙华区招生的。
声明:本文由入驻焦点开放平台的作者撰写,除焦点官方账号外,观点仅代表作者本人,不代表焦点立场。


