龙华公租房、宝安人才房规划公布!沙湖保租房封顶,有2671套房
扫描到手机,新闻随时看
扫一扫,用手机看文章
更加方便分享给朋友
近日,深圳多个保障房又迎来新进展,其中,包括龙华的润湖苑,宝安的人才房安居福厦里。
另外,坪山沙湖保障性租赁住房项目主体也封顶了,此项目未来有2671套房。
润湖苑:917户(保障性住房)
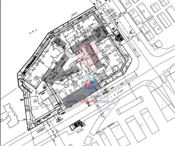
润湖苑近日公布了规划许可及平面图,此项目位于观湖街道翠幽路与大和路交会处,东侧紧邻有轨电车文澜站,西行800米为地铁4号线竹村站。
项目建设用地15161.87平方米,总建筑面积79348.47平方米,计划建设4栋34层的高层住宅,并配建社区其他配套用房、社区文化室、社区健康服务中心、老年人日间照料中心、物业管理用房等。
项目共有917套保障性住房,其中户型面积35平方米的327套,户型面积65平方米的457套,户型面积85平方米的133套。
项目由居住建筑围合而成的室外广场则搭配庭园绿化丰富小区的景观空间层次,在打造上有多重亮点。
一是车行步道和人行步道完全分开,结合地形状况和交通消防环路,将地下车库出入口布置在小区组团的外侧。步行系统则由小区大门直伸社区内部,做到各成体系、互不干扰。这样的设置,令车行系统最大限度减少对居住区秩序和居住环境的干扰,并为形成连贯的步行系统提供了条件。
二是项目充分考虑了残障人士、老年人等行动不便者的需求,人行道均按照规定设置了道路纵坡、路口坡道及提示盲道等,在建筑入口、入口平台、候梯厅、电梯轿厢及公共走道等区域均考虑了行动不便人士行动的需求,消除了各种障碍。
三是生态环保设计理念 。润湖苑在建设中尽量选择自然采光、通风的建筑形式,采用天然、环保的材料,以实现材质耐久、易维护。项目采用地面绿化、空中绿化、屋顶花园立体绿化系统,提高绿地率和绿化率,起到遮阳、降温、导风的作用;利用繁茂的攀爬植物形成“绿墙”,有效遮挡西面阳光。
安居福厦里:商业面积有所调整
近日,安居福厦里项目总平面图修改对外公示。
“安居福厦里”(宗地号:A213-0386)位于福永街道,土地面积为18187.24㎡,容积率≤3.4,规定建筑建筑面积61830㎡,于2024年1月变更《建设工程规划许可证》(建字第4403062024GG0020499(改1)号)。
这次主要修改内容(详见图中云线圈示部分)为:经济技术指标中规定建筑面积地上商业面积由1415.43㎡修改为639.2㎡,地下商业面积由10794.57㎡修改为11570.8㎡,其它相关建筑面积对应修改。
安居福厦里项目位于宝安区福永街道下十围路与立新南路交汇处,总建筑面积约9.1万㎡,由4栋住宅塔楼和1所幼儿园组成,建成后可提供人才住房850套。
项目与地铁12号线无缝接驳,为典型的TOD模式人才住房。
2023年9月,有网友留言问,此项目什么时候可认购申请。
宝安住建回复称,经核实,该项目的分配单位为深圳市住房保障署。如有保障性住房推出公开配售,将会在政府网站发布通告,具体项目、套数、认购条件、房源性质等信息,以实际发布为准,有认购意向的人才可根据相应配售通告的要求及时提交认购申请,建议您耐心等待并关注政府网站后续发布的配售信息。
沙湖保障性租赁住房项目:主体封顶
据深圳安居集团消息,3月25日,坪山沙湖保障性租赁住房项目Ⅱ标段完成主体结构封顶。
标志着深圳市首个云端建造工厂及建筑机器人系统化应用项目整体进入装饰装修阶段,向竣工验收迈进坚实一步。
坪山沙湖保障性租赁住房项目位于坪山区碧岭街道振碧路同黄竹坑路交汇处,由市人才安居集团旗下坪山人才安居公司开发建设,项目建设用地面积约为4.7万平方米,总建筑面积约为28万平方米,主要包含9栋住宅塔楼及1栋幼儿园。
建成后将提供2671套保障性租赁住房,将有效满足新市民、青年人等群体保障性住房需求。
针对本项目,坪山人才安居公司采用全阶段8+9+N点面机器人体系化应用模式,引进BIM协同平台,实现BIM模型异地协同,助力一模到底。项目综合“BIM+AR”技术进行可视化交底,结合先进的无人值守建造监测及智能安全帽立体定位等智能技术,为工程建设装上“智慧大脑”,实现工期、安全、质量等要素的全周期数字化管理,提高建设效能,助力项目建设提质增效。
同时,项目首创保障性住房智能建造技术的集成应用,实现管理模式、管理技术、建造技术的创新,已公示为“深圳市科技计划项目”“深圳市智能建造试点项目”。
来源:深圳房地产信息网
声明:本文由入驻焦点开放平台的作者撰写,除焦点官方账号外,观点仅代表作者本人,不代表焦点立场。


