多了15套房源!南山一保障房最新调整公示
扫描到手机,新闻随时看
扫一扫,用手机看文章
更加方便分享给朋友
南山配售型保障房性住房又多新增了房源!栖河丽岛公馆房源由535套变为550套!
日前,深圳市规划和自然资源局公示栖河丽岛公馆项目总平面图变更。

公示的变更内容如下:
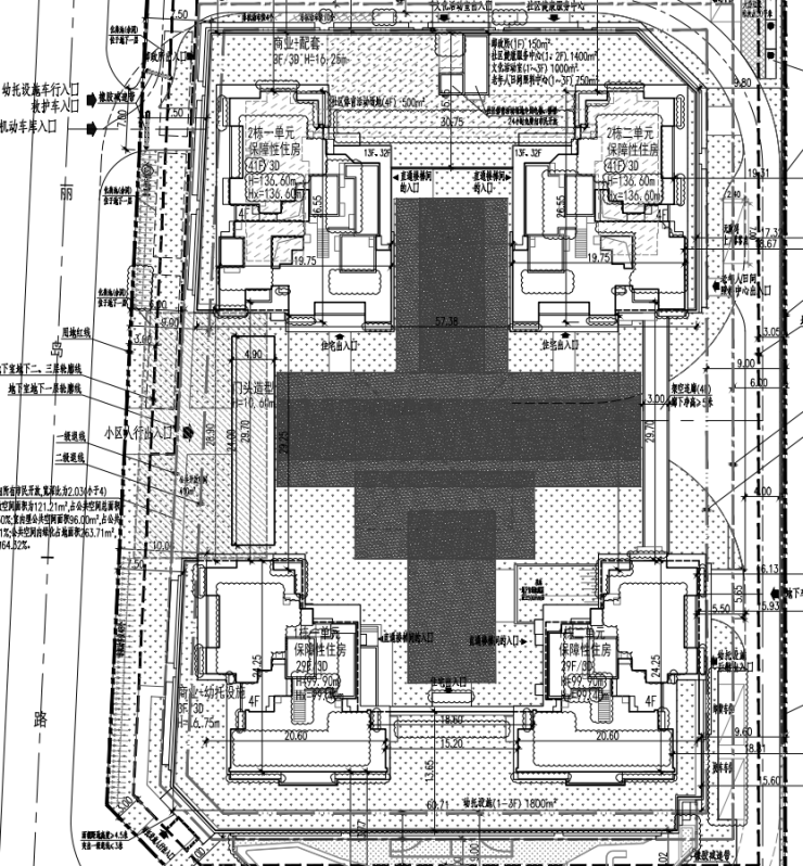
1、总平面图主要变更
1栋一单元、1栋二单元建筑高度由100.4米变更为99.9米;2栋一单元的层数由40层变更为41层,建筑高度由133.9米变更为136.6米,2栋二单元的层数由39层变更为41层,建筑高度由130.9米变更为136.6米 。塔楼轮廓微调、屋顶机房调整、凸窗调整。托幼设施局部优化,自行车停车位调整,绿化范围调整。
2、主要技术经济指标表调整
项目容积率由6.34变更为6.49,总建筑面积由72777.92㎡变更为74057.77㎡,计容积率建筑面积由51542.38㎡变更为52771.61㎡,不计容积率建筑面积由21235.54㎡变更为21286.16㎡,地上核增建筑面积由4164.38㎡变更为5393.61㎡,地下核增建筑面积由21235.54㎡更为21286.16平㎡。其余指标相应调整。
根据最新的经济技术指标,栖河丽岛公馆的房源量由原来的535套变成550套,机动停车位由原来的448辆变为460辆。

更新后的楼栋平面图如下:

项目介绍
栖河丽岛公馆是丽岛花园棚改项目,保障房部分规划为配售型保障性住房。
栖河丽岛公馆位于南山区桃源街道大学城社区,紧靠德意名居小区,东靠大学城,西邻大沙河和西丽水库,拥有较佳的生态环境优势。

项目建设用地约8130.84㎡,总建面约74057.77㎡,容积率6.49,计容建面约52771.61㎡。其中保障性住房约41278㎡,商业900㎡,文化活动室1000㎡,以及幼托设施1800㎡等社区配套。
据悉,栖河丽岛公馆已建至20层以上。按现房配售条件的话,可能最快也要明年才能配售。
栖河丽岛公馆的配套和居住环境在保障房市场上可以算是高标准的。
交通方面,栖河丽岛公馆距离地铁7号线西丽湖站直线距离约600米,步行距离约800米左,经地铁7号线可通达西丽中心、福田等核心板块。经地铁1站到西丽,可换乘5号线;
商业方面,栖河丽岛公馆处于居住区,可借享周边底商或经地铁1站到西丽享受成熟商业配套,或前往西丽目前已经成熟商业区如益田假日里、万科云城等区域;
教育方面,现阶段栖河丽岛公馆小学学区为南山区第二外国语学校(集团)平山学校(小学部),初中学区为南山区深圳大学城丽湖实验学校(初中部)|南山区第二外国语学校(集团)平山学校(初中部),具体以当年区教育局入学政策为准。
生态环境方面,栖河丽岛公馆所处的板块非常具有优势,周边有西丽动物园、西丽水库、大沙河碧道等等,还有低密度的大学城校区,自然生态资源非常好,环境宜居。
声明:本文由入驻焦点开放平台的作者撰写,除焦点官方账号外,观点仅代表作者本人,不代表焦点立场。


